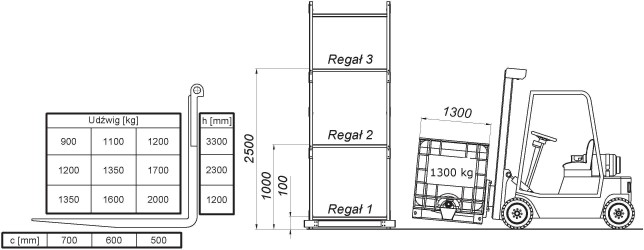
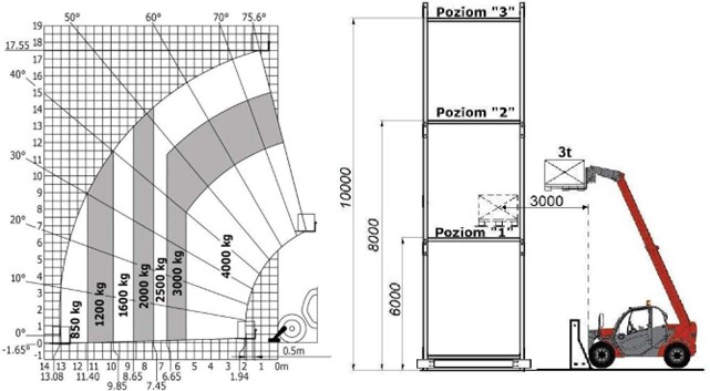
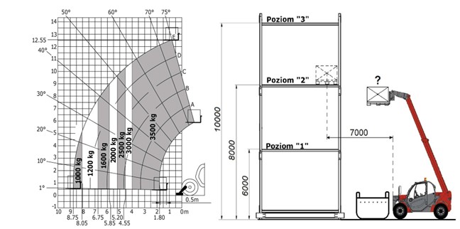
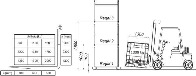
Testy egzaminacyjne UDT Testy na wózki - II WJO Testy na wózki specjalizowane - I WJO Testy na podesty ruchome przejezdne Testy na żurawie przewoźne i przenośne - HDS 1. Urządzenie techniczne objęte dozorem technicznym może być eksploatowane na podstawie: a) zezwolenia ustnego lub pisemnego wydanego przez upoważnionego konserwatora b) ważnej decyzji zezwalającej na eksploatację wydanej przez organ właściwej jednostki dozoru technicznego c) oznaczenia CE zamieszonego na urządzeniu d) deklaracji zgodności wystawionej przez wytwórcę 2. Które z wymienionych czynności nie należą do zakresu obowiązków obsługującego UTB: a) wykonywanie niewielkich napraw urządzenia w ramach posiadanego wykształcenia i umiejętności b) przestrzeganie instrukcji eksploatacji w zakresie obsługi UTB c) zapoznanie się z planem pracy i wielkością przenoszonych ładunków d) wszystkie odpowiedzi są poprawne 3. Terminy przeglądów konserwacyjnych urządzeń technicznych: a) są zawarte w instrukcji eksploatacji urządzenia b) określa konserwator urządzenia c) określa w protokole inspektor wykonujący badanie d) wszystkie odpowiedzi są poprawne 4. Dozorem technicznym nazywamy: a) określone ustawą działania zmierzające do zapewnienia bezpiecznego funkcjonowania urządzeń technicznych i urządzeń do odzyskiwania par paliwa oraz działania zmierzające do zapewnienia bezpieczeństwa publicznego w tych obszarach b) instytucje kontrolujące stan techniczny urządzeń c) Urząd Dozoru Technicznego d) UDT, WDT,TDT 5. Dozór techniczny nad urządzeniami technicznymi wykonuje: a) Urząd Dozoru Technicznego oraz specjalistyczne jednostki dozoru technicznego b) Urząd Dozoru Technicznego oraz upoważnione przez UDT organizacje c) Urząd Dozoru Technicznego i zagraniczne jednostki dozoru technicznego d) wszystkie odpowiedzi są poprawne 6. Zmiana parametrów technicznych lub zmiana konstrukcji urządzenia technicznego traktowana jest jako: a) modernizacja urządzenia technicznego b) naprawa urządzenia technicznego c) usuwanie usterek i innych nieprawidłowości urządzenia technicznego d) wytworzenie nowego urządzenia 7. Uzgodnioną naprawę lub modernizację urządzeń technicznych może wykonać: a) naprawiający lub modernizujący, który posiada uprawnienie wydane przez organ właściwej jednostki dozoru technicznego b) eksploatujący urządzenie techniczne posiadający odpowiednie doświadczenie w zakresie napraw lub modernizacji c) konserwator posiadający odpowiednie doświadczenie w zakresie napraw lub modernizacji d) w niewielkim zakresie kompetentny operator 8. Ustawa o dozorze technicznym określa następujące formy dozoru technicznego: a) całkowita, częściowa, ograniczona b) pełna, ograniczona, uproszczona c) pełna, cykliczna, sporadyczna d) UDT, WDT, TDT 9. Decyzję zezwalającą na eksploatację urządzenia technicznego wydaje: a) konserwator po wykonaniu przeglądu z wynikiem pozytywnym b) organ właściwej jednostki dozoru technicznego lub eksploatujący urządzenie techniczne z upoważnienia organu właściwej jednostki dozoru technicznego c) organ właściwej jednostki dozoru technicznego lub organ administracji publicznej z upoważnienia organu właściwej jednostki dozoru technicznego d) organ właściwej jednostki dozoru technicznego 10. Obsługujący urządzenie techniczne może podjąć pracę gdy: a) urządzenie posiada ważną decyzję zezwalającą na eksploatację jeżeli wymagają tego odpowiednie przepisy b) posiada zaświadczenie kwalifikacyjne odpowiedniej kategorii c) urządzenie posiada aktualny pozytywny wynik przeglądu konserwacyjnego d) wszystkie powyższe warunki muszą być spełnione jednocześnie 11. Obsługujący urządzenie techniczne może podjąć pracę gdy: a) urządzenie posiada aktualny wpis w dzienniku konserwacji potwierdzający sprawność urządzenia b) przeszedł odpowiednie szkolenie stanowiskowe c) urządzenie posiada ważną decyzję zezwalającą na eksploatację d) wszystkie powyższe warunki muszą być spełnione jednocześnie 12. W przypadku nieprzestrzegania przez eksploatującego przepisów o dozorze technicznym eksploatujący: a) otrzymuje pisemne upomnienie b) otrzymuje zalecenia pokontrolne c) podlega grzywnie lub karze ograniczenia wolności d) odpowiedź a i b jest prawidłowa 13. W przypadku stwierdzenia zagrożenia dla życia lub zdrowia ludzkiego oraz mienia i środowiska inspektor: a) wydaje decyzję wstrzymującą eksploatację urządzenia technicznego b) wystawia mandat karny c) pisemnie poucza eksploatującego d) wszystkie odpowiedzi są poprawne 14. W przypadku niebezpiecznego uszkodzenia urządzenia technicznego lub nieszczęśliwego wypadku eksploatujący: a) niezwłocznie powiadamia UDT o zaistniałym zdarzeniu b) powiadamia producenta urządzenia o przyczynach powstałego zdarzenia c) niezwłocznie dokonuje naprawy urządzenia i przekazuje do dalszej eksploatacji d) zgłasza urządzenie do wykonania naprawy 15. Zaświadczenie kwalifikacyjne do obsługi może zostać cofnięte przez: a) organ właściwej jednostki dozoru technicznego b) eksploatującego urządzenie techniczne c) inspektora bhp d) Państwową Inspekcję Pracy 16. Urządzenia techniczne nieobjęte dozorem technicznym to: a) żurawie o udźwigu do 3,2 t b) wciągniki i wciągarki oraz suwnice c) wózki jezdniowe podnośnikowe oraz podesty ruchome d) zawiesia transportowe 17. Urządzenia techniczne objęte dozorem technicznym to: a) przenośniki kabinowe i krzesełkowe b) układnice magazynowe oraz urządzenia dla osób niepełnosprawnych c) wyciągi towarowe i wyciągi statków d) wszystkie odpowiedzi są poprawne 18. Niebezpieczne uszkodzenie urządzenia technicznego to: a) każda usterka UTB b) nieprzewidziane uszkodzenie, w wyniku którego urządzenie nadaje się do częściowej eksploatacji c) nieprzewidziane uszkodzenie, w wyniku którego nadaje się do eksploatacji tylko przy obniżonych d) nieprzewidziane uszkodzenie, w wyniku którego urządzenie nie nadaje się do eksploatacji lub jego dalsza eksploatacja stanowi zagrożenie 19. Nieszczęśliwy wypadek to: a) nagłe zdarzenie, które spowodowało obrażenia ciała lub śmierć b) nagłe zdarzenie, które spowodowało przerwę w pracy c) nagłe zdarzenie, które skutkuje wyłączeniem urządzenia technicznego z eksploatacji d) każda usterka UTB spowodowana przyczyną losową 20. Podnoszenie i przenoszenie osób przez urządzenie techniczne przeznaczone wyłącznie do transportu ładunków wymaga: a) uzgodnienia z organem właściwej jednostki dozoru technicznego b) uzgodnienia z przełożonym c) uzgodnienia ze służbą BHP d) jest możliwe przy zachowaniu szczególnej ostrożności i pod nadzorem inspektora 21. Odpowiedzialnym za zapewnienie właściwej obsługi i konserwacji urządzenia technicznego jest: a) eksploatujący urządzenie techniczne b) organ właściwej jednostki dozoru technicznego c) Państwowa Inspekcja Pracy d) inspektor UDT 22. Wymagane przepisami prawa przeglądy konserwacyjne wykonuje: a) osoba posiadająca zaświadczenie kwalifikacyjne do konserwacji b) pracownik autoryzowanego serwisu producenta urządzenia (pod warunkiem posiadania zaświadczeń kwalifikacyjnych do konserwacji) c) zakładowe służby utrzymania ruchu d) odpowiedź a i b jest prawidłowa 23. Dziennik konserwacji urządzenia technicznego prowadzi: a) inspektor UDT w księdze rewizyjnej urządzenia b) uprawniony operator c) zwyznaczony pracownik eksploatującego d) konserwator urządzenia technicznego 24. Badania odbiorcze przeprowadza się dla urządzeń technicznych: a) w terminach zgodnych z zapisami rozporządzenia w sprawie warunków technicznych dozoru technicznego b) przed wydaniem pierwszej decyzji zezwalającej na eksploatacje c) po naprawie urządzenia technicznego d) po każdej zmianie eksploatującego 25. Badania okresowe przeprowadza się dla urządzeń technicznych objętych dozorem: a) ograniczonym b) pełnym c) uproszczonym d) wszystkie odpowiedzi są poprawne 26. Nieobecność konserwującego na badaniu urządzenia technicznego wymaga min.: a) wcześniejszego uzgodnienia tego faktu z organem właściwej jednostki dozoru technicznego b) przedstawienia pisemnego usprawiedliwienia nieobecności konserwatora c) przedstawienia zwolnienia lekarskiego potwierdzającego niezdolność konserwatora do pracy d) wszystkie odpowiedzi są prawidłowe 27. Kandydat na obsługującego urządzenie techniczne musi: a) mieć ukończone 18 lat b) posiadać przynajmniej wykształcenie zawodowe c) posiadać przynajmniej 1 rok stażu pracy d) wszystkie odpowiedzi są prawidłowe 28. Obsługujący urządzenie techniczne ma obowiązek przerwać pracę gdy: a) jego stan fizyczny i psychiczny w dniu pracy jest nieodpowiedni b) stwierdzi, że dalsza praca urządzeniem stwarza zagrożenie c) urządzenie jest niesprawne d) wszystkie odpowiedzi są prawidłowe 29. Terminy przeglądów konserwacyjnych urządzenia mogą być określone: a) w instrukcji eksploatacji urządzenia b) w ustawie o dozorze technicznym c) w rozporządzeniu określającym warunki techniczne dozoru technicznego d) odpowiedź a i c jest prawidłowa 30. Terminy badań okresowych i doraźnych kontrolnych UTB określone są: a) w ustawie o dozorze technicznym b) w rozporządzeniu określającym warunki techniczne dozoru technicznego c) w dokumentacji konstrukcyjnej urządzenia d) w dzienniku konserwacji 31. Obowiązkiem obsługującego urządzenie techniczne jest: a) przestrzeganie instrukcji eksploatacji w zakresie obsługi urządzenia b) przestrzeganie instrukcji eksploatacji w zakresie konserwacji urządzenia c) wykonywanie napraw urządzenia d) wszystkie odpowiedzi są poprawne 32. Urządzenie techniczne można eksploatować na podstawie: a) aktualnej naklejki organu właściwej jednostki dozoru technicznego określającej termin kolejnego badania b) aktualnego wpisu konserwatora urządzenia w dzienniku konserwacji c) ważnej decyzji zezwalającej na eksploatację wydanej przez organ właściwej jednostki dozoru technicznego d) pozytywnego protokołu z badania okresowego lub odbiorczego 33. Po wykonanych czynnościach przy urządzeniu technicznym inspektor sporządza: a) instrukcję eksploatacji urządzenia b) decyzję i protokół z wykonanych czynności c) deklarację zgodności CE d) wszystkie odpowiedzi są poprawne 34. Naprawę i modernizację urządzenia technicznego wykonuje: a) operator w ramach posiadanych umiejętności b) konserwator c) zakład uprawniony d) eksploatujący 35. Bezpośrednio odpowiedzialnym za bezpieczną eksploatację urządzenia technicznego jest: a) obsługujący urządzenie b) producent urządzenia c) zakładowy inspektor BHP d) inspektor UDT 36. Informacje dotyczące zasad bezpiecznej obsługi urządzenia są zawarte w: a) instrukcji eksploatacji urządzenia b) ustawie o dozorze technicznym c) dzienniku konserwacji d) protokole z badania wykonanego przez inspektora UDT 37. W ramach czynności przed rozpoczęciem pracy obsługujący: a) sprawdza stan techniczny urządzenia poprzez oględziny b) wykonuje próby statyczną i dynamiczną c) wykonuje próby ruchowe urządzenia d) odpowiedź a i c jest prawidłowa 38. Zaświadczenia kwalifikacyjne do obsługi urządzeń technicznych podlegających dozorowi technicznemu wydaje: a) firma szkoleniowa po pozytywnym wyniku egzaminu sprawdzającego b) inspektor BHP na podstawie zaświadczenia o ukończeniu kursu c) pracodawca na podstawie zdanego egzaminu d) organ właściwej jednostki dozoru technicznego 39. Przeciążanie UTB w trakcie pracy: a) jest zabronione b) jest dopuszczalne c) jest dopuszczalne ale tylko do 125% udźwigu nominalnego d) jest dopuszczalne ale tylko do 110% udźwigu nominalnego 40. Badania doraźne eksploatacyjne wykonuje się m.in.: a) po każdym usunięciu usterki przez konserwatora b) po wymianie cięgien nośnych c) raz na rok d) po wypadku na urządzeniu 41. Obowiązki obsługującego określone są: a) w instrukcji eksploatacji urządzenia b) w dzienniku konserwacji c) w ustawie o dozorze technicznym d) wszystkie odpowiedzi są poprawne 42. Badania okresowe urządzenia technicznego są wykonywane przez: a) konserwatora posiadającego odpowiednie zaświadczenie kwalifikacyjne b) inspektora organu właściwej jednostki dozoru technicznego c) pracownika serwisu producenta d) operatora 43. Jednostką dozoru technicznego jest: a) Urząd Dozoru Technicznego b) Wojskowy Dozór techniczny c) Transportowy dozór Techniczny d) wszystkie odpowiedzi są prawidłowe 44. Zaświadczenia kwalifikacyjne uprawniające do obsługi urządzeń technicznych ważne są na terenie: a) Rzeczypospolitej Polskiej b) Unii Europejskiej c) nie mają określonego obszaru ważności d) krajów strefy Schengen 45. Obowiązek stosowania środków ochrony indywidualnej przez operatorów urządzeń technicznych wynika z: a) instrukcji eksploatacji producenta b) przepisów BHP c) przepisów wewnątrzzakładowych d) wszystkie odpowiedzi są poprawne 46. Zgodnie z rozporządzeniem Rady Ministrów w sprawie rodzajów urządzeń technicznych podlegających dozorowi technicznemu przepisom dozoru technicznego podlegają: a) dźwigi, żurawie, suwnice, wciągarki i wciągniki b) wózki jezdniowe podnośnikowe z mechanicznym napędem podnoszenia, podesty ruchome c) dźwignice linotorowe, przenośniki kabinowe i krzesełkowe d) wszystkie odpowiedzi są poprawne 47. Instrukcja eksploatacji może nie zawierać: a) informacji o terminach i zakresie przeglądów konserwacyjnych UTB b) podstawowych parametrów i przeznaczenia UTB c) terminów badań technicznych wykonywanych przez jednostkę inspekcyjną d) informacji o sposobie obsługi urządzenia 48. Księga rewizyjna urządzenia musi zawierać: a) zbiór protokołów z badań wykonywanych przez jednostkę inspekcyjną b) dokument, w którym odnotowywane są przeglądy konserwacyjne c) treść aktualnych aktów prawnych d) wykaz uprawnionych operatorów 49. Decyzja wydana przez UDT: a) nie podlega odwołaniu b) może zostać zmieniona przez inspektora PIP c) podlega możliwości odwołania się przez eksploatującego d) każda odpowiedź jest niepoprawna 50. Do egzaminu sprawdzającego kwalifikacje może przystąpić osoba, która: a) złożyła wniosek o sprawdzenie kwalifikacji b) ukończyła 18 lat c) nie ma przeciwwskazań zdrowotnych do obsługi urządzeń technicznych d) wszystkie odpowiedzi są poprawne 51. Po zakończonym badaniu technicznym z wynikiem pozytywnym inspektor UDT: a) przedłuża ważność świadectwa kwalifikacji operatora b) oznakowuje urządzenie naklejką, która jest zezwoleniem na użytkowanie urządzenia c) informuje użytkownika pisemnie w dzienniku konserwacji, że wyraża zgodę na eksploatację urządzenia d) sporządza protokół z wykonanych czynności i wydaje decyzję administracyjną zezwalającą na eksploatację 52. Zaświadczenia kwalifikacyjne: a) są ważne bezterminowo b) są terminowe z okresem ważności uzależnionym od ilości uzyskanych punktów na egzaminie c) są terminowe z okresem ważności zgodnym z zapisami rozporządzenia w sprawie trybu sprawdzenia kwalifikacji d) są ważne przez okres 15 lat 53. Dokonujący przeróbek urządzenia technicznego bez uzgodnienia z organem właściwej jednostki dozoru technicznego: a) podlega karze grzywny lub ograniczenia wolności b) podlega ukaraniu mandatem karnym c) nie podlega karze d) wszystkie odpowiedzi są niepoprawne 54. Kto dopuszcza do eksploatacji urządzenie techniczne bez ważnej decyzji zezwalającej na eksploatację: a) podlega karze grzywny lub ograniczenia wolności b) nie podlega karze, jeżeli nie dojdzie do wypadku c) podlega wyłącznie karze grzywny d) podlega karze więzienia 55. Instrukcja eksploatacji to: a) zbiór informacji niezbędnych do bezpiecznej eksploatacji urządzenia udostępniany przez producenta b) zbiór zaleceń wydawanych przez Urząd Dozoru Technicznego c) instrukcja, którą musi stworzyć użytkownik urządzenia d) wszystkie odpowiedzi są poprawne 56. Zaświadczeń kwalifikacyjnych do obsługi nie wymaga się: a) jeżeli urządzenie jest obsługiwane przez jego właściciela b) jeżeli wszystkie mechanizmy urządzenia mają napęd ręczny c) jeśli urządzenie jest wykorzystywane do celów prywatnych, nie zarobkowych d) od osób po 60 roku życia 57. Osoba posiadająca zaświadczenia kwalifikacyjne może obsługiwać: a) tylko urządzenia wymienione w zakresie uprawnienia b) wszystkie urządzenia podlegające dozorowi technicznemu c) inne urządzenia podlegające dozorowi technicznemu za zgoda pracodawcy d) wszystkie UTB o udźwigu do 3,2 t 58. Obowiązkiem obsługującego urządzenie techniczne jest: a) odmówić obsługi urządzenia, jeżeli wygasła decyzja zezwalająca na eksploatację tego urządzenia b) zawsze stosować się do poleceń przełożonego nakazujących eksploatację urządzenia c) stosować się do zapisów zawartych w instrukcji eksploatacji d) odpowiedź a i c jest prawidłowa 59. Zaświadczenie kwalifikacyjne do obsługi urządzeń technicznych są: a) ważne na terenie Unii Europejskiej b) ważne z dowodem tożsamości c) bezterminowe d) wszystkie odpowiedzi są poprawne 60. Obsługujący który jest świadkiem wypadku ma obowiązek: a) udzielić pomocy ofierze (lub ofiarom) wypadku b) zabezpieczyć miejsce zdarzenia c) powiadomić przełożonego d) wszystkie odpowiedzi są poprawne 61. Obsługującemu nie wolno: a) podnosić ładunków, których masy nie potrafi określić b) kontrolować stanu technicznego urządzenia c) stosować się do zapisów zawartych w instrukcji eksploatacji d) dokonywać oględzin zewnętrznych urządzenia 62. Formami dozoru technicznego są: a) dozór pełny, dozór uproszczony, dozór ograniczony b) badanie odbiorcze, badanie okresowe i badanie doraźne c) wszystkie odpowiedzi są poprawne d) dokonywać oględzin zewnętrznych urządzenia 63. Podnoszenie osób urządzeniami, które zostały zaprojektowane i wykonane wyłącznie do podnoszenia ładunków: a) jest dopuszczalne, po zapewnieniu odpowiedniego poziomu bezpieczeństwa b) jest zabronione c) jest dopuszczalne, po uzgodnieniu z organem właściwej jednostki dozoru tchnicznego szczegółowych warunków eksploatacji d) jest dopuszczalne jednorazowo na pisemne polecenie przełożonego 64. Podnoszenie ładunków za pomocą dwóch lub więcej UTB: a) jest dopuszczalne, pod warunkiem opracowania przez eksploatującego szczegółowych warunków eksploatacji, opisujących czynności organizacyjno-techniczne minimalizujące ryzyko b) jest zawsze dopuszczalne jeżeli masa ładunku nie przekracza sumy udźwigów wykorzystywanych urządzeń c) jest dopuszczalne jeżeli masa ładunku nie przekracza połowy udźwigu każdego z wykorzystanych urządzeń d) nie jest nigdy dopuszczalna 65. Przebywanie osób pod ładunkiem przenoszonym jest: a) zawsze niedozwolone b) dozwolone dla osób kontrolującej spód ładunku c) dozwolone jeżeli współczynnik bezpieczeństwa cięgien wynosi nie mniej niż 5 d) dozwolone jeżeli współczynnik bezpieczeństwa cięgien wynosi nie mniej niż 7 66. Przenoszenia ładunków nad osobami jest: a) dozwolone pod warunkiem uzyskania pisemnego zezwolenia od osoby kierującej transportem b) dozwolone, po zapewnieniu współczynników bezpieczeństwa dla cięgien i urządzeń chwytnych większych niż 10 c) dozwolone pod warunkiem powiadomienia osób i wyposażeniu ich w środki ochrony indywidualnej d) wszystkie odpowiedzi są niepoprawne 67. Zaświadczenia kwalifikacyjne do obsługi urządzeń technicznych podlegających dozorowi technicznemu wydaje: a) właściciel urządzenia b) UDT, TDT, WDT c) PIP d) wszystkie odpowiedzi są niepoprawne 68. Komisja egzaminacyjna powiadamia osobę zainteresowaną o wyniku egzaminu: a) w ciągu 7 dni po egzaminie w formie pisemnej b) bezpośrednio po egzaminie c) w ciągu 14 dni po egzaminie w formie elektronicznej d) listem poleconym lub pocztą elektroniczną po upływie 30 dni roboczych od daty egzaminu 69. Dziennik konserwacji powinien być prowadzony: a) tylko w formie papierowej b) w formie elektronicznej lub papierowej c) tylko w formie elektronicznej d) przez obsługującego 70. Instrukcja stanowiskowa: a) jest zawsze dostarczana wraz z instrukcją obsługi przez producenta urządzenia b) stanowi niepisany zbiór zwyczajów przyjętych w zakładzie pracy c) jest wydawana przez pracodawcę i zawiera szczegółowe wskazówki dotyczące bhp na stanowisku pracy d) nie dotyczy operatorów urządzeń mobilnych 71. Po upływie terminu ważności zaświadczenia kwalifikacyjnego do obsługi urządzenia obsługujący: a) może obsługiwać UTB o ile kontynuuje pracę u tego samego pracodawcy b) może obsługiwać UTB o ile złoży wniosek o wydanie kolejnego zaświadczenia c) może obsługiwać UTB dopiero po uzyskaniu nowego zaświadczenia kwalifikacyjnego d) składa wniosek o przedłużenie terminu ważności zaświadczenia kwalifikacyjnego 72. Przedłużenie ważności zaświadczenie kwalifikacyjnego następuje: a) na pisemny wniosek obsługującego b) automatycznie po upływie terminu ważności zaświadczenia c) na pisemne zgłoszenie pracodawcy obsługującego d) po wcześniejszym zgłoszeniu telefonicznym 73. Udźwig UTB to parametr urządzenia bezpośrednio związany z: a) maksymalną wysokością podnoszonego ładunku b) maksymalną objętością podnoszonego ładunku c) maksymalną masą podnoszonego ładunku d) iloczynem masy i objętości podnoszonego ładunku 74. Masa netto 1000 l wody wynosi ok: a) 800 kg b) 900 kg c) 1000 kg d) 1100 kg 75. Masa ładunku składającego się z 40 opakowań po 25 kg każdy wynosi a) 800 kg b) 1000 kg c) 1100 kg d) 900 kg 76. Masa 60 kartonów po 20 kg każdy wynosi: a) 800 kg b) 1000 kg c) 1100 kg d) 1200 kg 77. Masę podnoszonego ładunku można określić na podstawie: a) zawieszki zbiorczej znajdującej się na transportowanym ładunku b) przeliczając uwzględniając ciężar właściwy i objętość c) dokumentacji przewozowej i magazynowej d) wszystkie odpowiedzi są prawidłowe 78. Informacja dotycząca udźwigu urządzenia może być zawarta: a) w instrukcji eksploatacji b) na tabliczce znamionowej c) na urządzeniu technicznym d) wszystkie odpowiedzi są prawidłowe 79. Prawidłowe określenie jednostki udźwigu to: a) kg b) Pa c) mth d) mm 80. Które z elementów nie wchodzą w skład układu hydraulicznego wózka jezdniowego podnośnikowego? a) pompa, zamek hydrauliczny, filtr oleju b) rozrusznik, potencjometr, silnik elektryczny c) manometr, zawór zwrotny, odpowietrznik d) wszystkie odpowiedzi są nieprawidłowe 81. Zamek hydrauliczny zapewnia ochronę przed: a) nadmiernym wzrostem ciśnienia w układzie hydraulicznym b) skutkami pęknięcia przewodu hydraulicznego c) nieautoryzowanym uruchomieniem urządzenia d) dzieleniem strumienia na poszczególne obwody układu hydraulicznego 82. Elementem przekształcającym ciśnienie oleju hydraulicznego w ruch mechaniczny jest: a) pompa tłoczkowa b) siłownik hydrauliczny c) rozdzielacz hydrauliczny d) zawór przelewowy 83. Elementem wytwarzającym ciśnienie w układzie hydraulicznym wózka jezdniowego podnośnikowego jest: a) silnik hydrauliczny b) pompa hydrauliczna c) kompresor d) sprężarka 84. Zawór przelewowy instalowany w układzie hydraulicznym wózków jezdniowych podnośnikowych ma za zadanie: a) utrzymanie stałego ciśnienia w układzie hydraulicznym b) utrzymanie siłownika w stałej pozycji c) zabezpieczenie układu podnoszenia przed opadaniem d) zasilanie układu hydraulicznego 85. Bezpieczny sposób sprawdzenia działania zaworu przelewowego przeprowadza się: a) z ładunkiem nominalnym na wysokości ok 1/3 wysokości podnoszenia b) z włączonym silnikiem bez ładunku c) wychylając i przytrzymując dźwignię mechanizmu aż do momentu uzyskania przez układ skrajnego położenia d) odpowiedz b i c jest prawidłowa 86. Rozdzielacz hydrauliczny instalowany jest w układzie w celu: a) dławienia ciśnienia w poszczególnych obwodach b) zabezpieczenia układu przed nadmiernym wzrostem ciśnienia c) skierowanie przepływu oleju hydraulicznego do poszczególnych obwodów d) wszystkie odpowiedzi są nieprawidłowe 87. Elementem wykonawczym w układzie hydraulicznym wózka jezdniowego podnośnikowego jest: a) siłownik mechanizmu podnoszenia b) silnik hydrauliczny c) siłownik mechanizmu przechyłu d) wszystkie odpowiedzi są poprawne 88. Elementem chroniącym układ hydrauliczny przed nadmiernym wzrostem ciśnienia jest: a) zamek hydrauliczny b) zawór dławiący c) rozdzielacz hydrauliczny d) zawór bezpieczeństwa 89. Zawór zwrotno-dławiący montowany w układzie podnoszenia wózka jezdniowego podnośnikowego ma na celu: a) zmniejszenie ciśnienia oleju b) zabezpieczenie pompy hydraulicznej przed uszkodzeniem c) spowolnienie prędkości opuszczania podniesionego ładunku, podczas pęknięcia przewodu hydraulicznego d) zablokowanie opuszczania siłownika podczas pęknięcia przewodu hydraulicznego 90. Zawór bezpieczeństwa w układzie hydraulicznym wózka jezdniowego podnośnikowego: a) utrzymuje nurnik siłownika podnoszenia w stałym położeniu b) jest elementem ograniczającym udźwig c) zabezpiecza pompę hydrauliczną przed uszkodzeniem d) ogranicza prędkość opuszczania podniesionego ładunku, w przypadku pęknięcia węża hydraulicznego 91. W przypadku wzrostu ciśnienia nadmiar oleju odprowadzany jest: a) z powrotem do zbiornika oleju b) na zewnątrz wózka c) do innej sekcji rozdzielacza d) do siłownika 92. Kryteria i warunki poprawnego wykonania prób układu hydraulicznego określa: a) wytwórca urządzenia b) konserwator c) operator d) inspektor UDT 93. Akumulatory w elektrycznym wózku podnośnikowym: a) są źródłem zasilania układów b) zapewniają stateczność wózka c) decydują o prędkości ruchów roboczych d) odpowiedź a i b jest prawidłowa 94. Parametry podane przez producenta na tabliczce znamionowej akumulatorów to: a) napięcie znamionowe [V] b) pojemność [Ah] c) masa własna [kg] d) wszystkie odpowiedzi są poprawne 95. Wyłącznik bezpieczeństwa STOP jest: a) zabezpieczony przed przypadkowym zadziałaniem b) umieszczony blisko operatora c) koloru czerwonego d) odpowiedź b i c jest prawidłowa 96. Wyłącznik bezpieczeństwa STOP: a) wyłącza działanie mechanizmów jazdy b) wyłącza działanie mechanizmów podnoszenia c) uruchamia sygnalizację ostrzegawczą d) odpowiedź a i b jest prawidłowa 97. Jakiego rodzaju ogumienie stosowane jest w wózkach jezdniowych podnośnikowych: a) pełne b) superelastyczne c) pneumatyczne d) wszystkie odpowiedzi są prawidłowe 98. Kto decyduje o rodzaju i wielkość opon zastosowanych w wózku: a) producent opon b) konserwator c) producent wózka d) inspektor UDT 99. Graniczne zużycie opon superelastycznych (w przypadku braku innych wytycznych) to: a) minimalna wartość bieżnika 1,6 mm b) zmniejszenie grubości opony o 25% lub do wskaźnika wyznaczającego graniczne zużycie c) brak bieżnika d) minimalna wartość bieżnika 2 mm 100. Jaki rodzaj zużycia wyklucza opony pełne z dalszej eksploatacji: a) wszelkie przecięcia i rozwarstwienia gumy, uszkodzenia mechaniczne b) brak bieżnika c) zmniejszenie grubości opony poniżej wskaźnika wyznaczającego graniczne zużycie d) odpowiedź a i c jest prawidłowa 101. Święcąca się kontrolka ciśnienia oleju może świadczyć o: a) niskim poziomie oleju b) podwyższonej temperaturze silnika c) zbyt niskim ciśnieniu oleju d) odpowiedź a i c jest prawidłowa 102. Oznaczenie przedstawione na rysunku znajduje się na dźwigni: a) mechanizmu podnoszenia b) mechanizmu przechyłu masztu c) mechanizmu przesuwu wideł d) mechanizmu przesuwu karetki 103. Widząc świecącą się kontrolkę operator: a) powinien sprawdzić, czy pasy są prawidłowo zapięte b) może kontynuować pracę c) może kontynuować pracę ze zmniejszoną prędkością jazdy d) wszystkie odpowiedzi są prawidłowe 104. Dźwignia oznaczona poniższym piktogramem po wychyleniu przez operatora do przodu spowoduje: a) ruch wideł w dół b) ruch wideł w górę c) przechył masztu "na siebie" d) przechył masztu "od siebie" 105. Dźwignia oznaczona poniższym piktogramem po wychyleniu przez operatora spowoduje: a) ruch wideł w dół b) ruch wideł w górę c) ruch mechanizmu przechyłu masztu d) ruch mechanizmu przesuwu karetki 106. Wózki jezdniowe podnośnikowe czołowe z fotelem dla operatora muszą być wyposażone w: a) hamulec zasadniczy b) hamulec postojowy c) mechanizm ryglujący koła jezdne d) odpowiedź a i b jest prawidłowa 107. Hamowanie jazdy wózka prowadzonego może być realizowane przez: a) pedał hamulca nożnego b) zwolnienie nacisku na dźwignię sterującą jazdę wózka c) wychylenie dyszla prowadzącego w skrajne górne i dolne położenie d) odpowiedź b i c jest prawidłowa 108. W skład układu mechanizmu podnoszenia wchodzi: a) siłowniki układu podnoszenia b) łańcuchy nośne c) karetka d) wszystkie odpowiedzi są prawidłowe 109. Wózki jezdniowe podnośnikowe czołowe z fotelem dla operatora mogą być wyposażone w maszt typu: a) duplex b) triplex c) maszt z wolnym skokiem d) wszystkie odpowiedzi są prawidłowe 110. Jakie elementy bezpieczeństwa chronią operatora w przypadku utraty stateczności wózka podnośnikowego czołowego? a) łącznik STOP b) kabina wózka, pas bezpieczeństwa c) podpory d) przeciwwaga 111. Jakie elementy maja wpływ na stateczność wózka podnośnikowego czołowego? a) kabina wózka, pas bezpieczeństwa b) łącznik STOP c) stan zużycia opon d) wszystkie odpowiedzi są prawidłowe 112. Do zasilania wózków podnośnikowych spalinowych stosowane są butle gazowe: a) z kołnierzem b) koloru czerwonego c) wykorzystywane do zasilania kuchenek gazowych d) odpowiedź a i b jest prawidłowa 113. W wózkach podnośnikowych łańcuch mechanizmu podnoszenia jest: a) cięgnem nośnym b) cięgnem przeciwślizgowym c) cięgnem napędowym d) żadnym z powyższych 114. Oznaczenie na poniższym rysunku przedstawia: a) lampkę kontrolną świec żarowych b) lampkę kontrolną ładowania c) lampkę kontrolną ciśnienia oleju hydraulicznego d) lampkę kontrolną oświetlenia 115. Oznaczenie na poniższym rysunku przedstawia: a) lampkę sygnalizującą błędne podłączenie biegunów akumulatora (dotyczy tylko wózków akumulatorowych) b) lamkę sprawności akumulatora, która dotyczy tylko wózków akumulatorowych c) lampkę kontrolną ładowania akumulatora d) odpowiedź a i b jest prawidłowa 116. Oznaczenie na poniższym rysunku przedstawia: a) wskazania ogranicznika udźwigu wózka b) lampkę kontrolną temperatury cieczy chłodzącej c) lampkę kontrolną poziomu paliwa d) lampkę kontrolna stopnia naładowania akumulatora 117. Oznaczenie na poniższym rysunku przedstawia: a) lampkę kontrolną - włączenia hamulca postojowego b) lampkę kontrolną - awaria silnika c) lampkę kontrolną - przeciążenie d) lampkę kontrolną - nadmierna prędkość obrotowa silnika 118. Zapalona lub migająca lampka kontrolna: a) oznacza przekroczenie okresu serwisowego lub awarię urządzenia b) oznacza konieczność regulacji naciągu cięgien nośnych c) powinna być zapalona podczas pracy silnika d) wszystkie odpowiedzi są nieprawidłowe 119. Pracując wózkiem z osprzętem wymiennym operator powinien: a) przestrzegać zapisów instrukcji eksploatacji wózka oraz instrukcji osprzętu wymiennego b) przestrzegać przepisów zakładowych c) stosować się do właściwego diagramu udźwigu d) wszystkie odpowiedzi są prawidłowe 120. Osprzęt wymienny może być zainstalowany do wózka przez: a) konserwatora wózków jezdniowych b) operatora wózków jezdniowych c) producenta osprzętu wymiennego d) wszystkie odpowiedzi są prawidłowe 121. Jaki wpływ na udźwig wózka ma zamontowany dodatkowy osprzęt wymienny: a) zwiększa udźwig wózka b) zmniejsza udźwig wózka c) nie ma wpływu d) wszystkie odpowiedzi są niepoprawne 122. Po montażu osprzętu wymiennego przewidzianego przez wytwórcę wózka: a) urządzenie należy zgłosić do badania w UDT b) urządzenie można eksploatować bez dodatkowych badań w UDT c) operator wykonuje próby z przeciążeniem d) operator dokonuje wpisu w dzienniku konserwacji 123. Dźwignia oznaczona poniższym piktogramem, po wychyleniu przez operatora powoduje: a) uruchomienie mechanizmu podnoszenia b) uruchomienie mechanizmu przechyłu c) uruchomienie mechanizmu przesuwu bocznego d) wszystkie odpowiedzi są nieprawidłowe 124. Praca wózkiem z zamontowanymi przedłużkami do wideł jest dozwolona w przypadku gdy: a) wytwórca nie zabronił takiej pracy b) urządzenie jest wyposażone w stosowny diagram udźwigu c) montaż przedłużek został wykonany zgodnie z zaleceniami wytwórcy d) wszystkie odpowiedzi są prawidłowe 125. Zabezpieczenie elektryczne montowane na zakończeniu dyszla wózka jezdniowego prowadzonego to: a) łącznik STOP b) łącznik brzuszny c) kontakt zluzowania łańcucha nośnego d) wszystkie odpowiedzi są prawidłowe 126. Który z elementów wyposażenia zabezpiecza przed uruchomieniem urządzenia przez osoby niepowołane? a) łącznik STOP b) stacyjka c) klawiatura kodów dostępu d) odpowiedź b i c jest prawidłowa 127. Cecha 1500 x 500 znajdująca się na widle nośnej oznacza: a) maksymalny udźwig jednej widły wynoszący 1,5 t w odległości 500 mm od czoła widły b) maksymalny udźwig pary wideł wynoszący 1,5 t w odległości 500 mm od czoła wideł c) wymiary zewnętrzne widły nośnej d) symbol kontroli jakości 128. Maksymalny ładunek jaki można podnieść na parze wideł oznaczonych 2500 x 500 każda wynosi: a) 0,5 t b) 2,5 t c) 5,0 t d) 12,0 t 129. Praca wózkiem jezdniowym podnośnikowym ze zbyt niskim poziomem oleju w układzie hydraulicznym może objawiać się: a) "skokowym", przerywanym ruchem siłownika do góry b) brakiem realizacji wykonania zadanych ruchów mechanizmu podnoszenia c) głośną pracą pompy hydraulicznej d) wszystkie odpowiedzi są prawidłowe 130. "Skokowy" ruch mechanizmu podnoszenia do góry może być spowodowany: a) zbyt niskim poziomem oleju w układzie hydraulicznym b) nadmierną korozja łańcucha układu podnoszenia c) uszkodzoną rolka prowadzącą masztu d) uszkodzonym przewodem hydraulicznym zasilającym siłownik podnoszenia 131. Nieszczelność w układzie hydraulicznym wózka jezdniowego podnośnikowego może się objawiać: a) wyciekiem zewnętrznym b) niekontrolowanym opadaniem ładunku c) "skokowym", przerywanym ruchem siłownika do góry d) odpowiedz a i b jest prawidłowa 132. Gęstość oleju hydraulicznego w temperaturze ujemnej: a) maleje b) wzrasta c) temperatura nie ma wpływu na gęstość oleju d) pozostaje bez zmian 133. Stan poziomu oleju w układzie hydraulicznym operator sprawdza: a) zawsze przed rozpoczęciem i po zakończeniu pracy b) zawsze 1 raz w miesiącu c) zgodnie z zaleceniami zawartymi w instrukcji eksploatacji d) zgodnie z zaleceniami zawartymi w protokole z badań okresowych 134. O ile wytwórca nie określi inaczej, maksymalne odchylenie od pionowego położenia masztu obciążonego ciężarem nominalnym, spowodowane wewnętrznym przeciekiem w układzie wychyłu nie powinno przekroczyć: a) 5% w czasie 10 min b) 5° w czasie 10 min c) 10° w czasie 10 min d) brak ustalonych wytycznych 135. O ile wytwórca nie określi inaczej, składowa opadania mechanizmu podnoszenia wózka o udźwigu do 10 t obciążonego ciężarem nominalnym nie powinna przekroczyć: a) 100 mm w ciągu pierwszych 10 min b) 50% długości siłownika w ciągu pierwszych 10 min c) 200 mm w ciągu pierwszych 10 min d) brak ustalonych wytycznych 136. O ile wytwórca nie określi inaczej, składowa opadania mechanizmu podnoszenia wózka o udźwigu powyżej 10 t obciążonego ciężarem nominalnym nie powinna przekroczyć: a) 100 mm w ciągu pierwszych 10 min b) 50% długości siłownika w ciągu pierwszych 10 min c) 200 mm w ciągu pierwszych 10 min d) brak ustalonych wytycznych 137. Optymalne obciążenie potrzebne do przeprowadzenia próby szczelności wewnętrznej układu hydraulicznego wynosi: a) 50% obciążenia nominalnego b) 100% obciążenia nominalnego c) 110% obciążenia nominalnego d) 125% obciążenia nominalnego 138. O ile wytyczne producenta nie stanowią inaczej, minimalna wysokość na jaką należy podnieść ładunek podczas próby szczelności wewnętrznej układu wychyłu masztu wynosi: a) 100 mm b) 500 mm c) 2500 mm d) próby nie wykonuje się 139. Sprawdzenie w bezpieczny sposób działania zaworu przelewowego należy wykonać: a) z obciążeniem nominalnym b) z obciążeniem 50% nominalnego c) bez obciążenia d) z obciążeniem 125% nominalnego 140. Sprawdzenie układu hydraulicznego w wózkach podnośnikowych obejmuje: a) próbę szczelności wewnętrznej b) próbę zaworu przelewowego c) ocenę szczelności zewnętrznej d) wszystkie odpowiedzi są poprawne 141. Sprawdzenie poprawności działania dźwigni sterowniczych należy wykonać: a) sprawdzając zgodność realizowanych ruchów z oznaczeniami b) bez obciążenia c) wychylając dźwignie sterownicze we wszystkie przewidziane przez wytwórcę kierunki d) wszystkie odpowiedzi są prawidłowe 142. Zakres przeprowadzonych prób wózków jezdniowych podnośnikowych wyposażonych w hydrauliczny osprzęt dodatkowy obejmuje: a) całe wyposażenia hydrauliczne wózka wraz z osprzętem dodatkowym b) osprzęt nie stanowi wyposażenia wózka i nie podlega kontroli przez operatora c) próby sprawdzające poprawność działania wykonuje tylko konserwator d) próbę z obciążeniem 125% 143. Akumulatory kwasowe można ładować: a) w każdym pomieszczeniu niezależnie od przeznaczenia b) tylko w pomieszczeniu klimatyzowanym c) w miejscu specjalnie do tego przeznaczonym d) wyłącznie w pomieszczeniach ogrzewanych 144. Pomieszczenie, w którym odbywa się ładowanie akumulatorów wózka: a) nie musi posiadać wentylacji, ale musi być ogrzewane b) musi być ogrzewane i musi posiadać wentylację c) musi posiadać wentylację d) brak jednoznacznych wytycznych 145. Obowiązkiem operatora wózków jezdniowych podnośnikowych jest: a) sprawdzenie stopnia naładowania akumulatora b) sprawdzenie poziomu elektrolitu c) sprawdzenie poprawności zamocowania akumulatora d) wszystkie odpowiedzi są prawidłowe 146. Osoba dokonująca wymiany rozładowanych akumulatorów powinna: a) posiadać uprawnienia elektryczne SEP b) przestrzegać wytycznych zawartych w instrukcji c) posiadać zaświadczenie kwalifikacyjne do konserwacji wózków d) posiadać zaświadczenie kwalifikacyjne do obsługi wózków 147. Łącznik bezpieczeństwa "STOP" służy do: a) awaryjnego zatrzymania pracy wózka b) normalnego zatrzymania pracy silnika c) zabezpiecza przed uruchomieniem wózka przez osoby nieuprawnione d) wszystkie odpowiedzi są niepoprawne 148. W przypadku stwierdzenia sytuacji niebezpiecznej operator wózka ma obowiązek: a) zatrzymać wózek b) przerwać pracę c) opuścić ładunek (pod warunkiem nie zwiększenia zagrożenia) d) wszystkie odpowiedzi są prawidłowe 149. Sprawdzenie poprawności działania łącznika bezpieczeństwa STOP należy wykonać: a) tylko podczas przeglądów konserwacyjnych b) tylko w ramach przeglądów specjalnych c) zawsze przed rozpoczęciem pracy d) nie ma konieczności sprawdzania poprawności działania 150. Graniczne wartości zużycia ogumienia zawiera: a) deklaracja zgodności CE b) instrukcja eksploatacji wózka c) protokół z badań UDT d) dyrektywa maszynowa 151. Ciśnienie w oponach powinno być dostosowane do: a) zaleceń instrukcji eksploatacji wózka b) wyłącznie warunków panujących w miejscu eksploatacji c) preferencji operatora d) wymagań właściciela terenu 152. Nierówne ciśnienie w oponach na jednej osi może spowodować: a) poprawę właściwości jezdnych wózka b) zmniejszenie stateczności wózka podczas transportu ładunków c) nie ma żadnego wpływu na stateczność wózka d) wszystkie odpowiedzi są niepoprawne 153. Wpływ na przyspieszone zużycie opon pneumatycznych ma: a) gwałtowne hamowanie, najeżdżanie na przeszkody z dużą prędkością b) jazda ze zbyt niskim ciśnieniem c) manewrowanie wózkiem na małej przestrzeni d) wszystkie odpowiedzi są poprawne 154. Nierównomierne zużycie opon pełnych znajdujących się na wspólnej osi: a) poprawia właściwości jezdne wózka b) nie ma żadnego wpływu na bezpieczną eksploatację c) może spowodować utratę stateczności wózka d) wszystkie odpowiedzi są niepoprawne 155. Ocenę stanu technicznego ogumienia przeprowadza: a) konserwator podczas przeglądów konserwacyjnych b) operator w ramach czynności przed rozpoczęciem pracy c) inspektor UDT w trakcie wykonywanych czynności d) wszystkie odpowiedzi są prawidłowe 156. W przypadku stwierdzenia uszkodzeń mechanicznych ogumienia, mających wpływ na bezpieczną eksploatację, operator wózka: a) powiadamia przełożonego o stwierdzonej niezgodności, ale nie przerywa pracy b) wstrzymuje pracę urządzenia i powiadamia przełożonego o stwierdzonej niezgodności c) kontynuuje pracę zmniejszając prędkość jazdy d) kontynuuje pracę zmniejszając prędkości poruszania się 157. Operator po zauważeniu podczas jazdy palącej się lampki kontrolnej ciśnienia oleju silnika powinien: a) zjechać w bezpieczne miejsce, opuścić ładunek, wyłączyć silnik b) może kontynuować jazdę jeśli stan oleju jest prawidłowy c) nie musi podejmować żadnych działań d) odpowiedź b i c jest prawidłowa 158. Po zakończeniu pracy operator powinien: a) upewnić się, że widły są opuszczone, wózek jest w miejscu stałego postoju i nie stwarza zagrożenia b) uruchomić hamulec postojowy c) wcisnąć łącznik STOP d) odpowiedź a i b jest prawidłowa 159. Sprawne dźwignie sterujące: a) po zwolnieniu nacisku powinny samoczynnie wracać do pozycji neutralnych b) mogą nie mieć oznaczeń gdy operator wie do czego służą c) powinny realizować kierunki ruchów zgodne z oznaczeniami d) odpowiedź a i c jest prawidłowa 160. Opis próby sprawdzenia poprawności działania hamulca zasadniczego opisuje: a) instrukcja obsługi wózka b) ustawa o dozorze technicznym c) dyrektywa maszynowa d) wewnętrzne przepisy zakładowe 161. Informacje dotyczące sposobu sprawdzania poprawności działania hamulca pomocniczego są zawarte w: a) rozporządzeniu w sprawie eksploatacji urządzeń transportu bliskiego b) instrukcji obsługi wózka c) ustawie o dozorze technicznym d) wytycznych inspektora BHP 162. Podczas próby hamulca zasadniczego maszt powinien być w pozycji: a) pozycja masztu nie ma znaczenia b) przechylony "na siebie" c) przechylony "od siebie" d) pionowej 163. Próbę hamulca zasadniczego należy przeprowadzać: a) z ładunkiem 110% udźwigu urządzenia b) z ładunkiem 125% udźwigu urządzenia c) bez ładunku d) bez ładunku a następnie z ładunkiem nominalnym 164. Jeżeli w czasie próby hamulca pomocniczego operator uzna, że jego działanie jest nieprawidłowe powinien: a) wstrzymać eksploatację urządzenia b) poinformować przełożonego c) kontynuować pracę ze zmniejszoną prędkością jazdy d) odpowiedź a i b jest prawidłowa 165. W przypadku stwierdzenia awarii układu hamulcowego operator powinien: a) w ramach posiadanych kompetencji wykonać naprawę hamulca b) wstrzymać eksploatację urządzenia c) poinformować Urząd Dozoru Technicznego d) kontynuować pracę z zachowaniem szczególnej ostrożności 166. W przypadku stwierdzenia wycieku płynu hamulcowego, operator powinien: a) uzupełnić płyn hamulcowy i kontynuować jazdę do zakończenia pracy b) wstrzymać eksploatację urządzenia i powiadomić przełożonego c) wstrzymać eksploatację urządzenia i powiadomić inspektora UDT d) odpowiedź b i c jest prawidłowa 167. W przypadku stwierdzenia niewłaściwego działania hamulca pomocniczego, operator: a) na wyraźne polecenie przełożonego dokonuje jego naprawy b) zgłasza awarię do UDT c) wstrzymuje eksploatację urządzenia i powiadamia przełożonego d) wszystkie odpowiedzi są poprawne 168. Hamulec zasadniczy należy sprawdzać jadąc wózkiem podnośnikowym i hamując: a) do przodu b) do tyłu c) w obu kierunkach d) hamulec sprawdza tylko konserwator 169. Operator powinien przeprowadzić sprawdzenie hamulców: a) zgodnie z terminami zawartymi w instrukcji konserwacji b) raz na miesiąc c) raz na tydzień d) zawsze przed rozpoczęciem pracy 170. Schodząc z fotela operatora, obsługujący wózek powinien: a) zawsze załączyć hamulec postojowy b) załączyć hamulec postojowy tylko w przypadku postoju wózka na wzniesieniu c) unieść widły na maksymalną wysokość d) przechylić maszt w pozycję "na siebie" 171. Zakres czynności kontrolnych masztu wózka podnośnikowego obejmuje: a) sprawdzenie czy nie wystąpiły pęknięcia b) sprawdzenie stanu rolek prowadzących c) sprawdzenie ogranicznika krańcowego położenia karetki d) wszystkie odpowiedzi są poprawne 172. Podczas jazdy wózkiem podnośnikowym z ładunkiem na widłach należy: a) manipulować pochyłem masztu w zależności od ukształtowania terenu b) poruszać się z masztem przechylonym "na siebie" c) transportować ładunek w dowolny wybrany przez operatora sposób d) manipulować pochyłem masztu w zależności od prędkości poruszania się 173. Ładunek należy transportować: a) na wysokości powyżej linii wzroku operatora, jeżeli poprawia to widoczność b) na wysokości około 20-30 cm nad poziomem podłoża c) na dowolnej wysokości d) na wysokości ok 90 cm 174. Podczas zjazdu z pochyłej rampy wózkiem czołowym podnośnikowym wraz z ładunkiem, operator: a) porusza się przodem b) porusza się tyłem c) zachowuje szczególną ostrożność d) odpowiedź b i c jest prawidłowa 175. Podczas wjazdu na pochyłą rampę wózkiem jezdniowym podnośnikowym z ładunkiem ograniczającym widoczność, operator: a) korzysta z pomocy drugiej osoby b) porusza się przodem c) porusza się tyłem d) odpowiedź a i b jest prawidłowa 176. Poruszanie się wózkiem w poprzek pochyłej rampy jest: a) zabronione b) dozwolone c) dopuszczalne pod warunkiem zachowania szczególnej ostrożności d) dopuszczalne pod warunkiem obciążenia wózka ładunkiem uniesionym na minimalną wysokość 177. Poruszając się wózkiem z ładunkiem ograniczającym widoczność operator powinien: a) jechać tyłem b) jechać przodem, z pomocą osoby informującej o zagrożeniach c) poruszać się z bezpieczną prędkością d) wszystkie odpowiedzi są prawidłowe 178. Podczas jazdy wózkiem jezdniowym podnośnikowym z ładunkiem należy: a) unikać gwałtownych skrętów b) przewozić ładunek na wysokości transportowej c) dostosować prędkość jazdy do panujących warunków d) wszystkie odpowiedzi są prawidłowe 179. Wylot zaworu butli gazowej powinien być skierowany: a) w dół b) w górę c) poziomo d) pozycja nie ma znaczenia 180. Szczelność instalacji gazowej sprawdza się przy pomocy: a) detektora gazu b) specjalnego środka c) wody mydlanej d) wszystkie odpowiedzi są prawidłowe 181. Eksploatacja wózka jezdniowego w temperaturze poniżej -10°C: a) jest dozwolona pod warunkiem wyposażenia wózka w ogrzewanie kabiny operatora b) jest dozwolona jeśli instrukcja eksploatacji na to zezwala c) jest zabroniona z uwagi na możliwości utraty przyczepności d) jest zabroniona z uwagi na zmianę parametrów technicznych oleju hydraulicznego 182. Eksploatacja wózka jezdniowego w temperaturze powyżej 30°C: a) jest zabroniona z uwagi na pogorszenie warunków pracy operatora b) jest dozwolona pod warunkiem wyposażenia wózka w klimatyzowaną kabinę operatora c) jest zabroniona z uwagi na zmianę parametrów technicznych oleju hydraulicznego d) jest dozwolona jeśli instrukcja eksploatacji na to zezwala 183. W oparciu o tabelę określ jakie maksymalne obciążenie może przenieść gniazdo ładunkowe regału: a) 1320 kg b) 1100 kg c) 2700 kg d) 2200 kg 184. W oparciu o tabelę, określ na które najwyższe gniazdo ładunkowe podasz towar dysponując wózkiem o maksymalnej wysokości podnoszenia 2100 mm: a) gniazdo 1 b) gniazdo 2 c) gniazdo 3 d) gniazdo 4 185. Odstawiając ładunek na regał magazynowy operator powinien znać: a) masę towaru i obciążenie maksymalne gniazda regału b) masę towaru i obciążenie minimalne ramy regału c) wymiary zewnętrzne transportowanego ładunku d) odpowiedź a i c jest prawidłowa 186. Podczas transportu ładunków wielkogabarytowych operator powinien: a) jechać tyłem b) jechać przodem wychylając się poza obrys wózka c) jechać przodem korzystając z pomocy drugiej osoby d) odpowiedź a i c jest prawidłowa 187. Na co powinien zwrócić uwagę operator podczas wymiany baterii trakcyjnych? a) na masę i wymiary baterii b) na pojemność baterii c) na dane adresowe producenta baterii d) odpowiedzi a i b są prawidłowe 188. Przyczyną utraty stateczności wózka może być: a) zbyt niskie ciśnienie w oponach b) szybka jazda w zakrętach c) gwałtowne hamowanie przy jeździe z ładunkiem d) wszystkie odpowiedzi są prawidłowe 189. Dopuszczalna prędkość jazdy wózka jest określona: a) w ustawie o dozorze technicznym b) w protokole badania wystawionym przez UDT c) w decyzji zezwalającej na eksploatację d) wszystkie odpowiedzi są niepoprawne 190. Przed rozpoczęciem pracy wózkiem należy sprawdzić funkcjonowanie: a) układu hydraulicznego b) układu hamulcowego c) układu kierowniczego d) wszystkie odpowiedzi są prawidłowe 191. Po zamontowaniu dodatkowego osprzętu wymiennego należy: a) zapoznać się z właściwym diagramem udźwigu b) zgłosić do UDT w celu wykonania badania technicznego c) sprawdzić, czy zakres posiadanych uprawnień do obsługi obejmuje zamontowany osprzęt d) wszystkie odpowiedzi są prawidłowe 192. Przed wjazdem wózkiem na rampę załadowczą operator powinien sprawdzić: a) kąt nachylenia rampy, oraz zdolność wózka do pokonywania wzniesień b) nośność rampy c) ciężar ładunku oraz masę własną wózka d) wszystkie odpowiedzi są prawidłowe 193. Podczas jazdy wózkiem podnośnikowym należy: a) przestrzegać przepisów BHP b) stosować się do znaków, oznaczeń i symboli umieszczonych w obszarze pracy wózka c) przestrzegać instrukcji obsługi wózka d) wszystkie odpowiedzi są prawidłowe 194. Gdzie znajduje się informacja dotycząca udźwigu wózka: a) w instrukcji eksploatacji wózka b) na tabliczce znamionowej wózka c) na diagramie udźwigu d) wszystkie odpowiedzi są prawidłowe 195. Przed rozpoczęciem pracy wózkiem należy: a) zapoznać się z zakresem pracy b) określić masę transportowanego ładunku c) sprawdzić, czy osprzęt wózka jest właściwie dobrany do ładunku d) wszystkie odpowiedzi są prawidłowe 196. Praca wózka z koszem do podnoszenia osób zakładanym na widły: a) jest dozwolona wyłącznie po uzgodnieniu szczegółowych warunków eksploatacji z UDT b) jest dozwolona bez dodatkowych wymagań c) jest zabroniona d) jest dozwolona za zgodą właściciela zakładu bez dodatkowych wymagań 197. W przypadku kiedy wózek traci stateczność, operator: a) stara się opuścić kabinę wózka (przed jego wywróceniem się) b) pozostaje w kabinie c) utrzymuje pozycję siedzącą trzymając się mocno kierownicy d) odpowiedź b i c jest prawidłowa 198. W chwili wywracania się wózka należy: a) niezwłocznie wyskoczyć z kabiny b) ostro zahamować c) skręcić gwałtownie koła w kierunku przechylenia, by spróbować zapobiec wywróceniu d) wszystkie odpowiedzi są niepoprawne 199. Wózek może stracić stateczność na skutek: a) podnoszenia ładunku o ciężarze większym niż udźwig wózka b) wykonywania gwałtownych skrętów kół podczas jazdy c) zawracania wózkiem na wzniesieniu d) wszystkie powyżej są prawidłowe 200. Jeżeli instrukcja wózka nie stanowi inaczej, następujące w toku eksploatacji maksymalne wydłużenie łańcucha nośnego może wynosić: a) 3 cm b) 3 mm c) 3% d) 10% 201. Jeżeli instrukcja wózka nie stanowi inaczej, dopuszczalna ilość pękniętych płytek łańcucha nośnego (konstrukcji Flyera) wynosi: a) 3% całkowitej ilości plytek b) 6 sztuk na długości 30 ogniw c) 1 sztuka na każdy metr łańcucha d) 0 202. Jeżeli instrukcja wózka nie stanowi inaczej, minimalna dopuszczalna grubość poziomej części wideł zmierzona w pobliżu ich naroża (pięty) wynosi: a) 25 mm przy grubości nominalnej 30 mm b) 57 mm przy grubości nominalnej 60 mm c) 36 mm przy grubości nominalnej 40 mm d) zawsze wynosi 50% grubości nominalnej wideł 203. Jeżeli instrukcja wózka nie stanowi inaczej, minimalna dopuszczalna grubość poziomej części wideł zmierzona w pobliżu ich naroża (pięty) wynosi: a) 27 mm przy grubości nominalnej 30 mm b) 57 mm przy grubości nominalnej 60 mm c) 25 mm przy grubości nominalnej 30 mm d) zawsze wynosi 50% grubości nominalnej wideł 204. Jeżeli instrukcja wózka nie stanowi inaczej, minimalna dopuszczalna grubość poziomej części wideł zmierzona w pobliżu ich naroża (pięty) wynosi: a) 25 mm przy grubości nominalnej 30 mm b) 55 mm przy grubości nominalnej 60 mm c) 40 mm przy grubości nominalnej 60 mm d) zawsze wynosi 50% grubości nominalnej wideł 205. Jeżeli instrukcja wózka nie stanowi inaczej, minimalna dopuszczalna grubość poziomej części wideł zmierzona w pobliżu ich naroża (pięty) wynosi: a) 25 mm przy grubości nominalnej 30 mm b) 45 mm przy grubości nominalnej 50 mm c) 50 mm przy grubości nominalnej 60 mm d) zawsze wynosi 50% grubości nominalnej wideł 206. Jeżeli instrukcja wózka nie stanowi inaczej, maksymalne dopuszczalne rozgięcie widły względem wartości oryginalnej (zwykle 90 stopni), wynosi: a) 1 cm b) 3% c) 3 stopnie d) 0 stopni 207. W oparciu o przedstawiony diagram udźwigu i rysunek określ maksymalną bezpieczną wysokość podnoszenia ładunku pobranego od strony A: a) 4836 mm b) 4030 mm c) 3100 mm d) wszystkie odpowiedzi są niepoprawne 208. W oparciu o przedstawiony diagram udźwigu i rysunek określ maksymalną bezpieczną wysokość podnoszenia ładunku pobranego od strony B: a) 3100 mm b) 4836 mm c) 4030 mm d) wszystkie odpowiedzi są niepoprawne 209. W oparciu o przedstawiony diagram udźwigu i rysunek określ maksymalną bezpieczną wysokość podnoszenia ładunku pobranego od strony A: a) 3510 mm b) 4212 mm c) 2700 mm d) wszystkie odpowiedzi są niepoprawne 210. W oparciu o przedstawiony diagram udźwigu i rysunek określ maksymalną bezpieczną wysokość podnoszenia ładunku pobranego od strony B: a) 4212 mm b) 2700 mm c) 3520 mm d) wszystkie odpowiedzi są niepoprawne 211. W oparciu o przedstawiony diagram udźwigu i rysunek określ maksymalną bezpieczną wysokość podnoszenia ładunku pobranego od strony A: a) 2600 mm b) 3380 mm c) 4056 mm d) wszystkie odpowiedzi są niepoprawne 212. W oparciu o przedstawiony diagram udźwigu i rysunek określ maksymalną bezpieczną wysokość podnoszenia ładunku pobranego od strony B: a) 4056 mm b) 2600 mm c) 3380 mm d) wszystkie odpowiedzi są niepoprawne 213. W oparciu o przedstawiony diagram udźwigu i rysunek określ maksymalną bezpieczną wysokość podnoszenia ładunku pobranego od strony A: a) 3640 mm b) 4368 mm c) 2800 mm d) wszystkie odpowiedzi są niepoprawne 214. W oparciu o przedstawiony diagram udźwigu i rysunek określ maksymalną bezpieczną wysokość podnoszenia ładunku pobranego od strony B: a) 2800 mm b) 3640 mm c) 4368 mm d) wszystkie odpowiedzi są niepoprawne 215. W oparciu o przedstawiony diagram udźwigu oraz rysunek określ maksymalną bezpieczną wysokość podnoszenia ładunku pobranego z kierunku A: a) 2350 mm b) 3300 mm c) 1400 mm d) 1300 mm 216. W oparciu o przedstawiony diagram udźwigu oraz rysunek określ maksymalną bezpieczną wysokość podnoszenia, ładunku pobranego z kierunku A: a) 700 mm b) 1200 mm c) 4500 mm d) 1800 mm 217. W oparciu o przedstawiony diagram udźwigu oraz rysunek wskaż, na który regał lub regały można postawić ładunek: a) Regał 1 b) Regał 2 c) Regał 3 d) wszystkie odpowiedzi są poprawne 218. W oparciu o przedstawiony diagram udźwigu oraz rysunek wskaż, na który regał lub regały można postawić ładunek: a) Regał 1 b) Regał 2 c) Regał 3 d) wszystkie odpowiedzi są poprawne 219. W oparciu o przedstawiony diagram udźwigu oraz rysunek wskaż, na który regał lub regały można postawić ładunek: a) Regał 1 b) Regał 2 c) Regał 3 d) odpowiedź a i b jest prawidłowa 220. W oparciu o przedstawiony diagram udźwigu oraz rysunek określ maksymalną bezpieczną wysokość podnoszenia, ładunku pobranego z kierunku A: a) 5940 mm b) 7890 mm c) 3600 mm d) 4500 mm 221. W oparciu o przedstawiony diagram udźwigu oraz rysunek określ maksymalną bezpieczną wysokość podnoszenia, ładunku pobranego z kierunku B: a) 5940 mm b) 7890 mm c) 3600 mm d) 4500 mm 222. W oparciu o przedstawiony diagram udźwigu oraz rysunek określ maksymalną bezpieczną wysokość podnoszenia, ładunku pobranego z kierunku A: a) 4860 mm b) 8820 mm c) 7070 mm d) 10820 mm 223. W oparciu o przedstawiony diagram udźwigu oraz rysunek określ maksymalną bezpieczną wysokość podnoszenia, ładunku pobranego z kierunku B: a) 4860 mm b) 5660 mm c) 7070 mm d) 10820 mm 224. W oparciu o przedstawiony diagram udźwigu określ maksymalny udźwig wózka na wysokości 6 m: a) 1300 kg b) 1500 kg c) 1700 kg d) 2000 kg 225. W oparciu o przedstawiony diagram udźwigu określ maksymalny udźwig wózka na wysokości 6,7 m: a) 1400 kg b) 1200 kg c) 1000 kg d) 1300 kg 226. W oparciu o przedstawiony diagram udźwigu określ maksymalną masę ładunku, o wymiarach podstawy 1,6 m x 1,6 m: a) 4,5 t b) 4,0 t c) 3,5 t d) 3,0 t 227. W oparciu o przedstawiony diagram udźwigu określ maksymalną masę ładunku, o wymiarach podstawy 2 m x 2 m: a) 2,5 t b) 3,5 t c) 4,5 t d) 3,0 t 228. W oparciu o przedstawiony diagram udźwigu oraz rysunek określ maksymalną masę ładunku pobranego od strony B: a) 1300 kg b) 1400 kg c) 1600 kg d) 2300 kg 229. W oparciu o przedstawiony diagram udźwigu oraz rysunek określ maksymalną masę ładunku pobranego od strony A: a) 1500 kg b) 2000 kg c) 2300 kg d) 2500 kg 230. W oparciu o przedstawiony diagram udźwigu oraz rysunek określ maksymalną masę ładunku pobranego od strony B: a) 1100 kg b) 1450 kg c) 1800 kg d) 2300 kg 231. W oparciu o przedstawiony diagram udźwigu oraz rysunek określ maksymalną masę ładunku, jaką można bezpiecznie podnieść pobierając ładunek od strony A: a) 1500 kg b) 2000 kg c) 2300 kg d) 1800 kg 232. W oparciu o przedstawiony diagram udźwigu oraz rysunek określ maksymalną masę ładunku, jaką można bezpiecznie podnieść pobierając ładunek od strony A: a) 2695 kg b) 3185 kg c) 3500 kg d) wszystkie odpowiedzi są niepoprawne 233. W oparciu o przedstawiony diagram udźwigu oraz rysunek określ maksymalną masę ładunku, jaką można bezpiecznie podnieść pobierając ładunek od strony B: a) 2695 kg b) 3500 kg c) 3185 kg d) wszystkie odpowiedzi są niepoprawne 234. W oparciu o przedstawiony diagram udźwigu określ maksymalny udźwig wózka, podnoszącego ładunek na wysokość 3000 mm: a) 2400 kg b) 3600 kg c) 3500 kg d) 1500 kg 235. W oparciu o przedstawiony diagram udźwigu określ maksymalny udźwig wózka, podnoszącego ładunek na wysokość 4000 mm: a) 3300 kg b) 4000 kg c) 3400 kg d) wszystkie odpowiedzi są niepoprawne 236. W oparciu o przedstawiony diagram udźwigu określ maksymalny udźwig wózka, podnoszącego ładunek na wysokość 5000 mm: a) 4000 kg b) 2700 kg c) 3400 kg d) wszystkie odpowiedzi są niepoprawne 237. W oparciu o przedstawiony diagram udźwigu oraz rysunek określ maksymalną masę ładunku jaką można bezpiecznie podnieść na wysokość 4000 mm, pobierając od strony B: a) 3400 kg b) 2900 kg c) 2700 kg d) 3600 kg 238. W oparciu o przedstawiony diagram udźwigu oraz rysunek określ maksymalną masę ładunku jaką można bezpiecznie podnieść na wysokość 4000 mm, pobierając od strony A: a) 2900 kg b) 3600 kg c) 3400 kg d) 3200 kg 239. W oparciu o przedstawiony diagram udźwigu oraz rysunek określ maksymalną masę ładunku, pobranego od strony B: a) 1000 kg b) 1200 kg c) 1500 kg d) 2300 kg 240. W oparciu o przedstawiony diagram udźwigu oraz rysunek określ maksymalną masę ładunku, pobranego od strony A: a) 1600 kg b) 1900 kg c) 2300 kg d) 2500 kg 241. W oparciu o przedstawiony diagram udźwigu oraz rysunek określ maksymalną masę ładunku, pobranego od strony A: a) 400 kg b) 600 kg c) 1500 kg d) 2000 kg 242. W oparciu o przedstawiony diagram udźwigu oraz rysunek określ maksymalną masę ładunku, pobranego od strony B: a) 400 kg b) 600 kg c) 1500 kg d) 2000 kg 243. W oparciu o przedstawiony diagram udźwigu oraz rysunek określ maksymalną masę ładunku, pobranego od strony A: a) 1400 kg b) 1255 kg c) 1040 kg d) 840 kg 244. W oparciu o przedstawiony diagram udźwigu oraz rysunek określ maksymalną masę ładunku, pobranego od strony B: a) 1400 kg b) 1255 kg c) 1040 kg d) 840 kg 245. Święcąca się kontrolka ciśnienia oleju może świadczyć o: a) zbyt niskim poziomie płyny w układzie hamulcowym b) podwyższonej temperaturze silnika c) zbyt niskim ciśnieniu oleju d) odpowiedź a i c jest prawidłowa 1. Urządzenie techniczne objęte dozorem technicznym może być eksploatowane na podstawie: a) zezwolenia ustnego lub pisemnego wydanego przez upoważnionego konserwatora b) ważnej decyzji zezwalającej na eksploatację wydanej przez organ właściwej jednostki dozoru technicznego c) oznaczenia CE zamieszonego na urządzeniu d) deklaracji zgodności wystawionej przez wytwórcę 2. Które z wymienionych czynności nie należą do zakresu obowiązków obsługującego UTB: a) wykonywanie niewielkich napraw urządzenia w ramach posiadanego wykształcenia i umiejętności b) przestrzeganie instrukcji eksploatacji w zakresie obsługi UTB c) zapoznanie się z planem pracy i wielkością przenoszonych ładunków d) wszystkie odpowiedzi są poprawne 3. Terminy przeglądów konserwacyjnych urządzeń technicznych: a) są zawarte w instrukcji eksploatacji urządzenia b) określa konserwator urządzenia c) określa w protokole inspektor wykonujący badanie d) wszystkie odpowiedzi są poprawne 4. Dozorem technicznym nazywamy: a) określone ustawą działania zmierzające do zapewnienia bezpiecznego funkcjonowania urządzeń technicznych i urządzeń do odzyskiwania par paliwa oraz działania zmierzające do zapewnienia bezpieczeństwa publicznego w tych obszarach b) instytucje kontrolujące stan techniczny urządzeń c) Urząd Dozoru Technicznego d) UDT, WDT,TDT 5. Dozór techniczny nad urządzeniami technicznymi wykonuje: a) Urząd Dozoru Technicznego oraz specjalistyczne jednostki dozoru technicznego b) Urząd Dozoru Technicznego oraz upoważnione przez UDT organizacje c) Urząd Dozoru Technicznego i zagraniczne jednostki dozoru technicznego d) wszystkie odpowiedzi są poprawne 6. Zmiana parametrów technicznych lub zmiana konstrukcji urządzenia technicznego traktowana jest jako: a) modernizacja urządzenia technicznego b) naprawa urządzenia technicznego c) usuwanie usterek i innych nieprawidłowości urządzenia technicznego d) wytworzenie nowego urządzenia 7. Uzgodnioną naprawę lub modernizację urządzeń technicznych może wykonać: a) naprawiający lub modernizujący, który posiada uprawnienie wydane przez organ właściwej jednostki dozoru technicznego b) eksploatujący urządzenie techniczne posiadający odpowiednie doświadczenie w zakresie napraw lub modernizacji c) konserwator posiadający odpowiednie doświadczenie w zakresie napraw lub modernizacji d) w niewielkim zakresie kompetentny operator 8. Ustawa o dozorze technicznym określa następujące formy dozoru technicznego: a) całkowita, częściowa, ograniczona b) pełna, ograniczona, uproszczona c) pełna, cykliczna, sporadyczna d) UDT, WDT, TDT 9. Decyzję zezwalającą na eksploatację urządzenia technicznego wydaje: a) konserwator po wykonaniu przeglądu z wynikiem pozytywnym b) organ właściwej jednostki dozoru technicznego lub eksploatujący urządzenie techniczne z upoważnienia organu właściwej jednostki dozoru technicznego c) organ właściwej jednostki dozoru technicznego lub organ administracji publicznej z upoważnienia organu właściwej jednostki dozoru technicznego d) organ właściwej jednostki dozoru technicznego 10. Obsługujący urządzenie techniczne może podjąć pracę gdy: a) urządzenie posiada ważną decyzję zezwalającą na eksploatację jeżeli wymagają tego odpowiednie przepisy b) posiada zaświadczenie kwalifikacyjne odpowiedniej kategorii c) urządzenie posiada aktualny pozytywny wynik przeglądu konserwacyjnego d) wszystkie powyższe warunki muszą być spełnione jednocześnie 11. Obsługujący urządzenie techniczne może podjąć pracę gdy: a) urządzenie posiada aktualny wpis w dzienniku konserwacji potwierdzający sprawność urządzenia b) przeszedł odpowiednie szkolenie stanowiskowe c) urządzenie posiada ważną decyzję zezwalającą na eksploatację d) wszystkie powyższe warunki muszą być spełnione jednocześnie 12. W przypadku nieprzestrzegania przez eksploatującego przepisów o dozorze technicznym eksploatujący: a) otrzymuje pisemne upomnienie b) otrzymuje zalecenia pokontrolne c) podlega grzywnie lub karze ograniczenia wolności d) odpowiedź a i b jest prawidłowa 13. W przypadku stwierdzenia zagrożenia dla życia lub zdrowia ludzkiego oraz mienia i środowiska inspektor: a) wydaje decyzję wstrzymującą eksploatację urządzenia technicznego b) wystawia mandat karny c) pisemnie poucza eksploatującego d) wszystkie odpowiedzi są poprawne 14. W przypadku niebezpiecznego uszkodzenia urządzenia technicznego lub nieszczęśliwego wypadku eksploatujący: a) niezwłocznie powiadamia UDT o zaistniałym zdarzeniu b) powiadamia producenta urządzenia o przyczynach powstałego zdarzenia c) niezwłocznie dokonuje naprawy urządzenia i przekazuje do dalszej eksploatacji d) zgłasza urządzenie do wykonania naprawy 15. Zaświadczenie kwalifikacyjne do obsługi może zostać cofnięte przez: a) organ właściwej jednostki dozoru technicznego b) eksploatującego urządzenie techniczne c) inspektora bhp d) Państwową Inspekcję Pracy 16. Urządzenia techniczne nieobjęte dozorem technicznym to: a) żurawie o udźwigu do 3,2 t b) wciągniki i wciągarki oraz suwnice c) wózki jezdniowe podnośnikowe oraz podesty ruchome d) zawiesia transportowe 17. Urządzenia techniczne objęte dozorem technicznym to: a) przenośniki kabinowe i krzesełkowe b) układnice magazynowe oraz urządzenia dla osób niepełnosprawnych c) wyciągi towarowe i wyciągi statków d) wszystkie odpowiedzi są poprawne 18. Niebezpieczne uszkodzenie urządzenia technicznego to: a) każda usterka UTB b) nieprzewidziane uszkodzenie, w wyniku którego urządzenie nadaje się do częściowej eksploatacji c) nieprzewidziane uszkodzenie, w wyniku którego nadaje się do eksploatacji tylko przy obniżonych d) nieprzewidziane uszkodzenie, w wyniku którego urządzenie nie nadaje się do eksploatacji lub jego dalsza eksploatacja stanowi zagrożenie 19. Nieszczęśliwy wypadek to: a) nagłe zdarzenie, które spowodowało obrażenia ciała lub śmierć b) nagłe zdarzenie, które spowodowało przerwę w pracy c) nagłe zdarzenie, które skutkuje wyłączeniem urządzenia technicznego z eksploatacji d) każda usterka UTB spowodowana przyczyną losową 20. Podnoszenie i przenoszenie osób przez urządzenie techniczne przeznaczone wyłącznie do transportu ładunków wymaga: a) uzgodnienia z organem właściwej jednostki dozoru technicznego b) uzgodnienia z przełożonym c) uzgodnienia ze służbą BHP d) jest możliwe przy zachowaniu szczególnej ostrożności i pod nadzorem inspektora 21. Odpowiedzialnym za zapewnienie właściwej obsługi i konserwacji urządzenia technicznego jest: a) eksploatujący urządzenie techniczne b) organ właściwej jednostki dozoru technicznego c) Państwowa Inspekcja Pracy d) inspektor UDT 22. Wymagane przepisami prawa przeglądy konserwacyjne wykonuje: a) osoba posiadająca zaświadczenie kwalifikacyjne do konserwacji b) pracownik autoryzowanego serwisu producenta urządzenia (pod warunkiem posiadania zaświadczeń kwalifikacyjnych do konserwacji) c) zakładowe służby utrzymania ruchu d) odpowiedź a i b jest prawidłowa 23. Dziennik konserwacji urządzenia technicznego prowadzi: a) inspektor UDT w księdze rewizyjnej urządzenia b) uprawniony operator c) zwyznaczony pracownik eksploatującego d) konserwator urządzenia technicznego 24. Badania odbiorcze przeprowadza się dla urządzeń technicznych: a) w terminach zgodnych z zapisami rozporządzenia w sprawie warunków technicznych dozoru technicznego b) przed wydaniem pierwszej decyzji zezwalającej na eksploatacje c) po naprawie urządzenia technicznego d) po każdej zmianie eksploatującego 25. Badania okresowe przeprowadza się dla urządzeń technicznych objętych dozorem: a) ograniczonym b) pełnym c) uproszczonym d) wszystkie odpowiedzi są poprawne 26. Nieobecność konserwującego na badaniu urządzenia technicznego wymaga min.: a) wcześniejszego uzgodnienia tego faktu z organem właściwej jednostki dozoru technicznego b) przedstawienia pisemnego usprawiedliwienia nieobecności konserwatora c) przedstawienia zwolnienia lekarskiego potwierdzającego niezdolność konserwatora do pracy d) wszystkie odpowiedzi są prawidłowe 27. Kandydat na obsługującego urządzenie techniczne musi: a) mieć ukończone 18 lat b) posiadać przynajmniej wykształcenie zawodowe c) posiadać przynajmniej 1 rok stażu pracy d) wszystkie odpowiedzi są prawidłowe 28. Obsługujący urządzenie techniczne ma obowiązek przerwać pracę gdy: a) jego stan fizyczny i psychiczny w dniu pracy jest nieodpowiedni b) stwierdzi, że dalsza praca urządzeniem stwarza zagrożenie c) urządzenie jest niesprawne d) wszystkie odpowiedzi są prawidłowe 29. Terminy przeglądów konserwacyjnych urządzenia mogą być określone: a) w instrukcji eksploatacji urządzenia b) w ustawie o dozorze technicznym c) w rozporządzeniu określającym warunki techniczne dozoru technicznego d) odpowiedź a i c jest prawidłowa 30. Terminy badań okresowych i doraźnych kontrolnych UTB określone są: a) w ustawie o dozorze technicznym b) w rozporządzeniu określającym warunki techniczne dozoru technicznego c) w dokumentacji konstrukcyjnej urządzenia d) w dzienniku konserwacji 31. Obowiązkiem obsługującego urządzenie techniczne jest: a) przestrzeganie instrukcji eksploatacji w zakresie obsługi urządzenia b) przestrzeganie instrukcji eksploatacji w zakresie konserwacji urządzenia c) wykonywanie napraw urządzenia d) wszystkie odpowiedzi są poprawne 32. Urządzenie techniczne można eksploatować na podstawie: a) aktualnej naklejki organu właściwej jednostki dozoru technicznego określającej termin kolejnego badania b) aktualnego wpisu konserwatora urządzenia w dzienniku konserwacji c) ważnej decyzji zezwalającej na eksploatację wydanej przez organ właściwej jednostki dozoru technicznego d) pozytywnego protokołu z badania okresowego lub odbiorczego 33. Po wykonanych czynnościach przy urządzeniu technicznym inspektor sporządza: a) instrukcję eksploatacji urządzenia b) decyzję i protokół z wykonanych czynności c) deklarację zgodności CE d) wszystkie odpowiedzi są poprawne 34. Naprawę i modernizację urządzenia technicznego wykonuje: a) operator w ramach posiadanych umiejętności b) konserwator c) zakład uprawniony d) eksploatujący 35. Bezpośrednio odpowiedzialnym za bezpieczną eksploatację urządzenia technicznego jest: a) obsługujący urządzenie b) producent urządzenia c) zakładowy inspektor BHP d) inspektor UDT 36. Informacje dotyczące zasad bezpiecznej obsługi urządzenia są zawarte w: a) instrukcji eksploatacji urządzenia b) ustawie o dozorze technicznym c) dzienniku konserwacji d) protokole z badania wykonanego przez inspektora UDT 37. W ramach czynności przed rozpoczęciem pracy obsługujący: a) sprawdza stan techniczny urządzenia poprzez oględziny b) wykonuje próby statyczną i dynamiczną c) wykonuje próby ruchowe urządzenia d) odpowiedź a i c jest prawidłowa 38. Zaświadczenia kwalifikacyjne do obsługi urządzeń technicznych podlegających dozorowi technicznemu wydaje: a) firma szkoleniowa po pozytywnym wyniku egzaminu sprawdzającego b) inspektor BHP na podstawie zaświadczenia o ukończeniu kursu c) pracodawca na podstawie zdanego egzaminu d) organ właściwej jednostki dozoru technicznego 39. Przeciążanie UTB w trakcie pracy: a) jest zabronione b) jest dopuszczalne c) jest dopuszczalne ale tylko do 125% udźwigu nominalnego d) jest dopuszczalne ale tylko do 110% udźwigu nominalnego 40. Badania doraźne eksploatacyjne wykonuje się m.in.: a) po każdym usunięciu usterki przez konserwatora b) po wymianie cięgien nośnych c) raz na rok d) po wypadku na urządzeniu 41. Obowiązki obsługującego określone są: a) w instrukcji eksploatacji urządzenia b) w dzienniku konserwacji c) w ustawie o dozorze technicznym d) wszystkie odpowiedzi są poprawne 42. Badania okresowe urządzenia technicznego są wykonywane przez: a) konserwatora posiadającego odpowiednie zaświadczenie kwalifikacyjne b) inspektora organu właściwej jednostki dozoru technicznego c) pracownika serwisu producenta d) operatora 43. Jednostką dozoru technicznego jest: a) Urząd Dozoru Technicznego b) Wojskowy Dozór techniczny c) Transportowy dozór Techniczny d) wszystkie odpowiedzi są prawidłowe 44. Zaświadczenia kwalifikacyjne uprawniające do obsługi urządzeń technicznych ważne są na terenie: a) Rzeczypospolitej Polskiej b) Unii Europejskiej c) nie mają określonego obszaru ważności d) krajów strefy Schengen 45. Obowiązek stosowania środków ochrony indywidualnej przez operatorów urządzeń technicznych wynika z: a) instrukcji eksploatacji producenta b) przepisów BHP c) przepisów wewnątrzzakładowych d) wszystkie odpowiedzi są poprawne 46. Zgodnie z rozporządzeniem Rady Ministrów w sprawie rodzajów urządzeń technicznych podlegających dozorowi technicznemu przepisom dozoru technicznego podlegają: a) dźwigi, żurawie, suwnice, wciągarki i wciągniki b) wózki jezdniowe podnośnikowe z mechanicznym napędem podnoszenia, podesty ruchome c) dźwignice linotorowe, przenośniki kabinowe i krzesełkowe d) wszystkie odpowiedzi są poprawne 47. Instrukcja eksploatacji może nie zawierać: a) informacji o terminach i zakresie przeglądów konserwacyjnych UTB b) podstawowych parametrów i przeznaczenia UTB c) terminów badań technicznych wykonywanych przez jednostkę inspekcyjną d) informacji o sposobie obsługi urządzenia 48. Księga rewizyjna urządzenia musi zawierać: a) zbiór protokołów z badań wykonywanych przez jednostkę inspekcyjną b) dokument, w którym odnotowywane są przeglądy konserwacyjne c) treść aktualnych aktów prawnych d) wykaz uprawnionych operatorów 49. Decyzja wydana przez UDT: a) nie podlega odwołaniu b) może zostać zmieniona przez inspektora PIP c) podlega możliwości odwołania się przez eksploatującego d) każda odpowiedź jest niepoprawna 50. Do egzaminu sprawdzającego kwalifikacje może przystąpić osoba, która: a) złożyła wniosek o sprawdzenie kwalifikacji b) ukończyła 18 lat c) nie ma przeciwwskazań zdrowotnych do obsługi urządzeń technicznych d) wszystkie odpowiedzi są poprawne 51. Po zakończonym badaniu technicznym z wynikiem pozytywnym inspektor UDT: a) przedłuża ważność świadectwa kwalifikacji operatora b) oznakowuje urządzenie naklejką, która jest zezwoleniem na użytkowanie urządzenia c) informuje użytkownika pisemnie w dzienniku konserwacji, że wyraża zgodę na eksploatację urządzenia d) sporządza protokół z wykonanych czynności i wydaje decyzję administracyjną zezwalającą na eksploatację 52. Zaświadczenia kwalifikacyjne: a) są ważne bezterminowo b) są terminowe z okresem ważności uzależnionym od ilości uzyskanych punktów na egzaminie c) są terminowe z okresem ważności zgodnym z zapisami rozporządzenia w sprawie trybu sprawdzenia kwalifikacji d) są ważne przez okres 15 lat 53. Dokonujący przeróbek urządzenia technicznego bez uzgodnienia z organem właściwej jednostki dozoru technicznego: a) podlega karze grzywny lub ograniczenia wolności b) podlega ukaraniu mandatem karnym c) nie podlega karze d) wszystkie odpowiedzi są niepoprawne 54. Kto dopuszcza do eksploatacji urządzenie techniczne bez ważnej decyzji zezwalającej na eksploatację: a) podlega karze grzywny lub ograniczenia wolności b) nie podlega karze, jeżeli nie dojdzie do wypadku c) podlega wyłącznie karze grzywny d) podlega karze więzienia 55. Instrukcja eksploatacji to: a) zbiór informacji niezbędnych do bezpiecznej eksploatacji urządzenia udostępniany przez producenta b) zbiór zaleceń wydawanych przez Urząd Dozoru Technicznego c) instrukcja, którą musi stworzyć użytkownik urządzenia d) wszystkie odpowiedzi są poprawne 56. Zaświadczeń kwalifikacyjnych do obsługi nie wymaga się: a) jeżeli urządzenie jest obsługiwane przez jego właściciela b) jeżeli wszystkie mechanizmy urządzenia mają napęd ręczny c) jeśli urządzenie jest wykorzystywane do celów prywatnych, nie zarobkowych d) od osób po 60 roku życia 57. Osoba posiadająca zaświadczenia kwalifikacyjne może obsługiwać: a) tylko urządzenia wymienione w zakresie uprawnienia b) wszystkie urządzenia podlegające dozorowi technicznemu c) inne urządzenia podlegające dozorowi technicznemu za zgoda pracodawcy d) wszystkie UTB o udźwigu do 3,2 t 58. Obowiązkiem obsługującego urządzenie techniczne jest: a) odmówić obsługi urządzenia, jeżeli wygasła decyzja zezwalająca na eksploatację tego urządzenia b) zawsze stosować się do poleceń przełożonego nakazujących eksploatację urządzenia c) stosować się do zapisów zawartych w instrukcji eksploatacji d) odpowiedź a i c jest prawidłowa 59. Zaświadczenie kwalifikacyjne do obsługi urządzeń technicznych są: a) ważne na terenie Unii Europejskiej b) ważne z dowodem tożsamości c) bezterminowe d) wszystkie odpowiedzi są poprawne 60. Obsługujący który jest świadkiem wypadku ma obowiązek: a) udzielić pomocy ofierze (lub ofiarom) wypadku b) zabezpieczyć miejsce zdarzenia c) powiadomić przełożonego d) wszystkie odpowiedzi są poprawne 61. Obsługującemu nie wolno: a) podnosić ładunków, których masy nie potrafi określić b) kontrolować stanu technicznego urządzenia c) stosować się do zapisów zawartych w instrukcji eksploatacji d) dokonywać oględzin zewnętrznych urządzenia 62. Formami dozoru technicznego są: a) dozór pełny, dozór uproszczony, dozór ograniczony b) badanie odbiorcze, badanie okresowe i badanie doraźne c) wszystkie odpowiedzi są poprawne d) dokonywać oględzin zewnętrznych urządzenia 63. Podnoszenie osób urządzeniami, które zostały zaprojektowane i wykonane wyłącznie do podnoszenia ładunków: a) jest dopuszczalne, po zapewnieniu odpowiedniego poziomu bezpieczeństwa b) jest zabronione c) jest dopuszczalne, po uzgodnieniu z organem właściwej jednostki dozoru tchnicznego szczegółowych warunków eksploatacji d) jest dopuszczalne jednorazowo na pisemne polecenie przełożonego 64. Podnoszenie ładunków za pomocą dwóch lub więcej UTB: a) jest dopuszczalne, pod warunkiem opracowania przez eksploatującego szczegółowych warunków eksploatacji, opisujących czynności organizacyjno-techniczne minimalizujące ryzyko b) jest zawsze dopuszczalne jeżeli masa ładunku nie przekracza sumy udźwigów wykorzystywanych urządzeń c) jest dopuszczalne jeżeli masa ładunku nie przekracza połowy udźwigu każdego z wykorzystanych urządzeń d) nie jest nigdy dopuszczalna 65. Przebywanie osób pod ładunkiem przenoszonym jest: a) zawsze niedozwolone b) dozwolone dla osób kontrolującej spód ładunku c) dozwolone jeżeli współczynnik bezpieczeństwa cięgien wynosi nie mniej niż 5 d) dozwolone jeżeli współczynnik bezpieczeństwa cięgien wynosi nie mniej niż 7 66. Przenoszenia ładunków nad osobami jest: a) dozwolone pod warunkiem uzyskania pisemnego zezwolenia od osoby kierującej transportem b) dozwolone, po zapewnieniu współczynników bezpieczeństwa dla cięgien i urządzeń chwytnych większych niż 10 c) dozwolone pod warunkiem powiadomienia osób i wyposażeniu ich w środki ochrony indywidualnej d) wszystkie odpowiedzi są niepoprawne 67. Zaświadczenia kwalifikacyjne do obsługi urządzeń technicznych podlegających dozorowi technicznemu wydaje: a) właściciel urządzenia b) UDT, TDT, WDT c) PIP d) wszystkie odpowiedzi są niepoprawne 68. Komisja egzaminacyjna powiadamia osobę zainteresowaną o wyniku egzaminu: a) w ciągu 7 dni po egzaminie w formie pisemnej b) bezpośrednio po egzaminie c) w ciągu 14 dni po egzaminie w formie elektronicznej d) listem poleconym lub pocztą elektroniczną po upływie 30 dni roboczych od daty egzaminu 69. Dziennik konserwacji powinien być prowadzony: a) tylko w formie papierowej b) w formie elektronicznej lub papierowej c) tylko w formie elektronicznej d) przez obsługującego 70. Instrukcja stanowiskowa: a) jest zawsze dostarczana wraz z instrukcją obsługi przez producenta urządzenia b) stanowi niepisany zbiór zwyczajów przyjętych w zakładzie pracy c) jest wydawana przez pracodawcę i zawiera szczegółowe wskazówki dotyczące bhp na stanowisku pracy d) nie dotyczy operatorów urządzeń mobilnych 71. Po upływie terminu ważności zaświadczenia kwalifikacyjnego do obsługi urządzenia obsługujący: a) może obsługiwać UTB o ile kontynuuje pracę u tego samego pracodawcy b) może obsługiwać UTB o ile złoży wniosek o wydanie kolejnego zaświadczenia c) może obsługiwać UTB dopiero po uzyskaniu nowego zaświadczenia kwalifikacyjnego d) składa wniosek o przedłużenie terminu ważności zaświadczenia kwalifikacyjnego 72. Przedłużenie ważności zaświadczenie kwalifikacyjnego następuje: a) na pisemny wniosek obsługującego b) automatycznie po upływie terminu ważności zaświadczenia c) na pisemne zgłoszenie pracodawcy obsługującego d) po wcześniejszym zgłoszeniu telefonicznym 73. Udźwig UTB to parametr urządzenia bezpośrednio związany z: a) maksymalną wysokością podnoszonego ładunku b) maksymalną objętością podnoszonego ładunku c) maksymalną masą podnoszonego ładunku d) iloczynem masy i objętości podnoszonego ładunku 74. Masa netto 1000 l wody wynosi ok: a) 800 kg b) 900 kg c) 1000 kg d) 1100 kg 75. Masa ładunku składającego się z 40 opakowań po 25 kg każdy wynosi a) 800 kg b) 1000 kg c) 1100 kg d) 900 kg 76. Masa 60 kartonów po 20 kg każdy wynosi: a) 800 kg b) 1000 kg c) 1100 kg d) 1200 kg 77. Masę podnoszonego ładunku można określić na podstawie: a) zawieszki zbiorczej znajdującej się na transportowanym ładunku b) przeliczając uwzględniając ciężar właściwy i objętość c) dokumentacji przewozowej i magazynowej d) wszystkie odpowiedzi są prawidłowe 78. Informacja dotycząca udźwigu urządzenia może być zawarta: a) w instrukcji eksploatacji b) na tabliczce znamionowej c) na urządzeniu technicznym d) wszystkie odpowiedzi są prawidłowe 79. Prawidłowe określenie jednostki udźwigu to: a) kg b) Pa c) mth d) mm 80. Które z elementów nie wchodzą w skład układu hydraulicznego wózka jezdniowego podnośnikowego? a) pompa, zamek hydrauliczny, filtr oleju b) rozrusznik, potencjometr, silnik elektryczny c) manometr, zawór zwrotny, odpowietrznik d) wszystkie odpowiedzi są nieprawidłowe 81. Zamek hydrauliczny zapewnia ochronę przed: a) nadmiernym wzrostem ciśnienia w układzie hydraulicznym b) skutkami pęknięcia przewodu hydraulicznego c) nieautoryzowanym uruchomieniem urządzenia d) dzieleniem strumienia na poszczególne obwody układu hydraulicznego 82. Elementem przekształcającym ciśnienie oleju hydraulicznego w ruch mechaniczny jest: a) pompa tłoczkowa b) siłownik hydrauliczny c) rozdzielacz hydrauliczny d) zawór przelewowy 83. Elementem wytwarzającym ciśnienie w układzie hydraulicznym wózka jezdniowego podnośnikowego jest: a) silnik hydrauliczny b) pompa hydrauliczna c) kompresor d) sprężarka 84. Zawór przelewowy instalowany w układzie hydraulicznym wózków jezdniowych podnośnikowych ma za zadanie: a) utrzymanie stałego ciśnienia w układzie hydraulicznym b) utrzymanie siłownika w stałej pozycji c) zabezpieczenie układu podnoszenia przed opadaniem d) zasilanie układu hydraulicznego 85. Bezpieczny sposób sprawdzenia działania zaworu przelewowego przeprowadza się: a) z ładunkiem nominalnym na wysokości ok 1/3 wysokości podnoszenia b) z włączonym silnikiem bez ładunku c) wychylając i przytrzymując dźwignię mechanizmu aż do momentu uzyskania przez układ skrajnego położenia d) odpowiedz b i c jest prawidłowa 86. Rozdzielacz hydrauliczny instalowany jest w układzie w celu: a) dławienia ciśnienia w poszczególnych obwodach b) zabezpieczenia układu przed nadmiernym wzrostem ciśnienia c) skierowanie przepływu oleju hydraulicznego do poszczególnych obwodów d) wszystkie odpowiedzi są nieprawidłowe 87. Elementem wykonawczym w układzie hydraulicznym wózka jezdniowego podnośnikowego jest: a) siłownik mechanizmu podnoszenia b) silnik hydrauliczny c) siłownik mechanizmu przechyłu d) wszystkie odpowiedzi są poprawne 88. Elementem chroniącym układ hydrauliczny przed nadmiernym wzrostem ciśnienia jest: a) zamek hydrauliczny b) zawór dławiący c) rozdzielacz hydrauliczny d) zawór bezpieczeństwa 89. Zawór zwrotno-dławiący montowany w układzie podnoszenia wózka jezdniowego podnośnikowego ma na celu: a) zmniejszenie ciśnienia oleju b) zabezpieczenie pompy hydraulicznej przed uszkodzeniem c) spowolnienie prędkości opuszczania podniesionego ładunku, podczas pęknięcia przewodu hydraulicznego d) zablokowanie opuszczania siłownika podczas pęknięcia przewodu hydraulicznego 90. Zawór bezpieczeństwa w układzie hydraulicznym wózka jezdniowego podnośnikowego: a) utrzymuje nurnik siłownika podnoszenia w stałym położeniu b) jest elementem ograniczającym udźwig c) zabezpiecza pompę hydrauliczną przed uszkodzeniem d) ogranicza prędkość opuszczania podniesionego ładunku, w przypadku pęknięcia węża hydraulicznego 91. W przypadku wzrostu ciśnienia nadmiar oleju odprowadzany jest: a) z powrotem do zbiornika oleju b) na zewnątrz wózka c) do innej sekcji rozdzielacza d) do siłownika 92. Kryteria i warunki poprawnego wykonania prób układu hydraulicznego określa: a) wytwórca urządzenia b) konserwator c) operator d) inspektor UDT 93. Akumulatory w elektrycznym wózku podnośnikowym: a) są źródłem zasilania układów b) zapewniają stateczność wózka c) decydują o prędkości ruchów roboczych d) odpowiedź a i b jest prawidłowa 94. Parametry podane przez producenta na tabliczce znamionowej akumulatorów to: a) napięcie znamionowe [V] b) pojemność [Ah] c) masa własna [kg] d) wszystkie odpowiedzi są poprawne 95. Wyłącznik bezpieczeństwa STOP jest: a) zabezpieczony przed przypadkowym zadziałaniem b) umieszczony blisko operatora c) koloru czerwonego d) odpowiedź b i c jest prawidłowa 96. Wyłącznik bezpieczeństwa STOP: a) wyłącza działanie mechanizmów jazdy b) wyłącza działanie mechanizmów podnoszenia c) uruchamia sygnalizację ostrzegawczą d) odpowiedź a i b jest prawidłowa 97. Jakiego rodzaju ogumienie stosowane jest w wózkach jezdniowych podnośnikowych: a) pełne b) superelastyczne c) pneumatyczne d) wszystkie odpowiedzi są prawidłowe 98. Kto decyduje o rodzaju i wielkość opon zastosowanych w wózku: a) producent opon b) konserwator c) producent wózka d) inspektor UDT 99. Graniczne zużycie opon superelastycznych (w przypadku braku innych wytycznych) to: a) minimalna wartość bieżnika 1,6 mm b) zmniejszenie grubości opony o 25% lub do wskaźnika wyznaczającego graniczne zużycie c) brak bieżnika d) minimalna wartość bieżnika 2 mm 100. Jaki rodzaj zużycia wyklucza opony pełne z dalszej eksploatacji: a) wszelkie przecięcia i rozwarstwienia gumy, uszkodzenia mechaniczne b) brak bieżnika c) zmniejszenie grubości opony poniżej wskaźnika wyznaczającego graniczne zużycie d) odpowiedź a i c jest prawidłowa 101. Święcąca się kontrolka ciśnienia oleju może świadczyć o: a) niskim poziomie oleju b) podwyższonej temperaturze silnika c) zbyt niskim ciśnieniu oleju d) odpowiedź a i c jest prawidłowa 102. Oznaczenie przedstawione na rysunku znajduje się na dźwigni: a) mechanizmu podnoszenia b) mechanizmu przechyłu masztu c) mechanizmu przesuwu wideł d) mechanizmu przesuwu karetki 103. Widząc świecącą się kontrolkę operator: a) powinien sprawdzić, czy pasy są prawidłowo zapięte b) może kontynuować pracę c) może kontynuować pracę ze zmniejszoną prędkością jazdy d) wszystkie odpowiedzi są prawidłowe 104. Dźwignia oznaczona poniższym piktogramem po wychyleniu przez operatora do przodu spowoduje: a) ruch wideł w dół b) ruch wideł w górę c) przechył masztu "na siebie" d) przechył masztu "od siebie" 105. Dźwignia oznaczona poniższym piktogramem po wychyleniu przez operatora spowoduje: a) ruch wideł w dół b) ruch wideł w górę c) ruch mechanizmu przechyłu masztu d) ruch mechanizmu przesuwu karetki 106. Wózki jezdniowe podnośnikowe czołowe z fotelem dla operatora muszą być wyposażone w: a) hamulec zasadniczy b) hamulec postojowy c) mechanizm ryglujący koła jezdne d) odpowiedź a i b jest prawidłowa 107. Hamowanie jazdy wózka prowadzonego może być realizowane przez: a) pedał hamulca nożnego b) zwolnienie nacisku na dźwignię sterującą jazdę wózka c) wychylenie dyszla prowadzącego w skrajne górne i dolne położenie d) odpowiedź b i c jest prawidłowa 108. W skład układu mechanizmu podnoszenia wchodzi: a) siłowniki układu podnoszenia b) łańcuchy nośne c) karetka d) wszystkie odpowiedzi są prawidłowe 109. Wózki jezdniowe podnośnikowe czołowe z fotelem dla operatora mogą być wyposażone w maszt typu: a) duplex b) triplex c) maszt z wolnym skokiem d) wszystkie odpowiedzi są prawidłowe 110. Jakie elementy bezpieczeństwa chronią operatora w przypadku utraty stateczności wózka podnośnikowego czołowego? a) łącznik STOP b) kabina wózka, pas bezpieczeństwa c) podpory d) przeciwwaga 111. Jakie elementy maja wpływ na stateczność wózka podnośnikowego czołowego? a) kabina wózka, pas bezpieczeństwa b) łącznik STOP c) stan zużycia opon d) wszystkie odpowiedzi są prawidłowe 112. Do zasilania wózków podnośnikowych spalinowych stosowane są butle gazowe: a) z kołnierzem b) koloru czerwonego c) wykorzystywane do zasilania kuchenek gazowych d) odpowiedź a i b jest prawidłowa 113. W wózkach podnośnikowych łańcuch mechanizmu podnoszenia jest: a) cięgnem nośnym b) cięgnem przeciwślizgowym c) cięgnem napędowym d) żadnym z powyższych 114. Oznaczenie na poniższym rysunku przedstawia: a) lampkę kontrolną świec żarowych b) lampkę kontrolną ładowania c) lampkę kontrolną ciśnienia oleju hydraulicznego d) lampkę kontrolną oświetlenia 115. Oznaczenie na poniższym rysunku przedstawia: a) lampkę sygnalizującą błędne podłączenie biegunów akumulatora (dotyczy tylko wózków akumulatorowych) b) lamkę sprawności akumulatora, która dotyczy tylko wózków akumulatorowych c) lampkę kontrolną ładowania akumulatora d) odpowiedź a i b jest prawidłowa 116. Oznaczenie na poniższym rysunku przedstawia: a) wskazania ogranicznika udźwigu wózka b) lampkę kontrolną temperatury cieczy chłodzącej c) lampkę kontrolną poziomu paliwa d) lampkę kontrolna stopnia naładowania akumulatora 117. Oznaczenie na poniższym rysunku przedstawia: a) lampkę kontrolną - włączenia hamulca postojowego b) lampkę kontrolną - awaria silnika c) lampkę kontrolną - przeciążenie d) lampkę kontrolną - nadmierna prędkość obrotowa silnika 118. Zapalona lub migająca lampka kontrolna: a) oznacza przekroczenie okresu serwisowego lub awarię urządzenia b) oznacza konieczność regulacji naciągu cięgien nośnych c) powinna być zapalona podczas pracy silnika d) wszystkie odpowiedzi są nieprawidłowe 119. Pracując wózkiem z osprzętem wymiennym operator powinien: a) przestrzegać zapisów instrukcji eksploatacji wózka oraz instrukcji osprzętu wymiennego b) przestrzegać przepisów zakładowych c) stosować się do właściwego diagramu udźwigu d) wszystkie odpowiedzi są prawidłowe 120. Osprzęt wymienny może być zainstalowany do wózka przez: a) konserwatora wózków jezdniowych b) operatora wózków jezdniowych c) producenta osprzętu wymiennego d) wszystkie odpowiedzi są prawidłowe 121. Jaki wpływ na udźwig wózka ma zamontowany dodatkowy osprzęt wymienny: a) zwiększa udźwig wózka b) zmniejsza udźwig wózka c) nie ma wpływu d) wszystkie odpowiedzi są niepoprawne 122. Po montażu osprzętu wymiennego przewidzianego przez wytwórcę wózka: a) urządzenie należy zgłosić do badania w UDT b) urządzenie można eksploatować bez dodatkowych badań w UDT c) operator wykonuje próby z przeciążeniem d) operator dokonuje wpisu w dzienniku konserwacji 123. Dźwignia oznaczona poniższym piktogramem, po wychyleniu przez operatora powoduje: a) uruchomienie mechanizmu podnoszenia b) uruchomienie mechanizmu przechyłu c) uruchomienie mechanizmu przesuwu bocznego d) wszystkie odpowiedzi są nieprawidłowe 124. Praca wózkiem z zamontowanymi przedłużkami do wideł jest dozwolona w przypadku gdy: a) wytwórca nie zabronił takiej pracy b) urządzenie jest wyposażone w stosowny diagram udźwigu c) montaż przedłużek został wykonany zgodnie z zaleceniami wytwórcy d) wszystkie odpowiedzi są prawidłowe 125. Zabezpieczenie elektryczne montowane na zakończeniu dyszla wózka jezdniowego prowadzonego to: a) łącznik STOP b) łącznik brzuszny c) kontakt zluzowania łańcucha nośnego d) wszystkie odpowiedzi są prawidłowe 126. Który z elementów wyposażenia zabezpiecza przed uruchomieniem urządzenia przez osoby niepowołane? a) łącznik STOP b) stacyjka c) klawiatura kodów dostępu d) odpowiedź b i c jest prawidłowa 127. Cecha 1500 x 500 znajdująca się na widle nośnej oznacza: a) maksymalny udźwig jednej widły wynoszący 1,5 t w odległości 500 mm od czoła widły b) maksymalny udźwig pary wideł wynoszący 1,5 t w odległości 500 mm od czoła wideł c) wymiary zewnętrzne widły nośnej d) symbol kontroli jakości 128. Maksymalny ładunek jaki można podnieść na parze wideł oznaczonych 2500 x 500 każda wynosi: a) 0,5 t b) 2,5 t c) 5,0 t d) 12,0 t 129. Praca wózkiem jezdniowym podnośnikowym ze zbyt niskim poziomem oleju w układzie hydraulicznym może objawiać się: a) "skokowym", przerywanym ruchem siłownika do góry b) brakiem realizacji wykonania zadanych ruchów mechanizmu podnoszenia c) głośną pracą pompy hydraulicznej d) wszystkie odpowiedzi są prawidłowe 130. "Skokowy" ruch mechanizmu podnoszenia do góry może być spowodowany: a) zbyt niskim poziomem oleju w układzie hydraulicznym b) nadmierną korozja łańcucha układu podnoszenia c) uszkodzoną rolka prowadzącą masztu d) uszkodzonym przewodem hydraulicznym zasilającym siłownik podnoszenia 131. Nieszczelność w układzie hydraulicznym wózka jezdniowego podnośnikowego może się objawiać: a) wyciekiem zewnętrznym b) niekontrolowanym opadaniem ładunku c) "skokowym", przerywanym ruchem siłownika do góry d) odpowiedz a i b jest prawidłowa 132. Gęstość oleju hydraulicznego w temperaturze ujemnej: a) maleje b) wzrasta c) temperatura nie ma wpływu na gęstość oleju d) pozostaje bez zmian 133. Stan poziomu oleju w układzie hydraulicznym operator sprawdza: a) zawsze przed rozpoczęciem i po zakończeniu pracy b) zawsze 1 raz w miesiącu c) zgodnie z zaleceniami zawartymi w instrukcji eksploatacji d) zgodnie z zaleceniami zawartymi w protokole z badań okresowych 134. O ile wytwórca nie określi inaczej, maksymalne odchylenie od pionowego położenia masztu obciążonego ciężarem nominalnym, spowodowane wewnętrznym przeciekiem w układzie wychyłu nie powinno przekroczyć: a) 5% w czasie 10 min b) 5° w czasie 10 min c) 10° w czasie 10 min d) brak ustalonych wytycznych 135. O ile wytwórca nie określi inaczej, składowa opadania mechanizmu podnoszenia wózka o udźwigu do 10 t obciążonego ciężarem nominalnym nie powinna przekroczyć: a) 100 mm w ciągu pierwszych 10 min b) 50% długości siłownika w ciągu pierwszych 10 min c) 200 mm w ciągu pierwszych 10 min d) brak ustalonych wytycznych 136. O ile wytwórca nie określi inaczej, składowa opadania mechanizmu podnoszenia wózka o udźwigu powyżej 10 t obciążonego ciężarem nominalnym nie powinna przekroczyć: a) 100 mm w ciągu pierwszych 10 min b) 50% długości siłownika w ciągu pierwszych 10 min c) 200 mm w ciągu pierwszych 10 min d) brak ustalonych wytycznych 137. Optymalne obciążenie potrzebne do przeprowadzenia próby szczelności wewnętrznej układu hydraulicznego wynosi: a) 50% obciążenia nominalnego b) 100% obciążenia nominalnego c) 110% obciążenia nominalnego d) 125% obciążenia nominalnego 138. O ile wytyczne producenta nie stanowią inaczej, minimalna wysokość na jaką należy podnieść ładunek podczas próby szczelności wewnętrznej układu wychyłu masztu wynosi: a) 100 mm b) 500 mm c) 2500 mm d) próby nie wykonuje się 139. Sprawdzenie w bezpieczny sposób działania zaworu przelewowego należy wykonać: a) z obciążeniem nominalnym b) z obciążeniem 50% nominalnego c) bez obciążenia d) z obciążeniem 125% nominalnego 140. Sprawdzenie układu hydraulicznego w wózkach podnośnikowych obejmuje: a) próbę szczelności wewnętrznej b) próbę zaworu przelewowego c) ocenę szczelności zewnętrznej d) wszystkie odpowiedzi są poprawne 141. Sprawdzenie poprawności działania dźwigni sterowniczych należy wykonać: a) sprawdzając zgodność realizowanych ruchów z oznaczeniami b) bez obciążenia c) wychylając dźwignie sterownicze we wszystkie przewidziane przez wytwórcę kierunki d) wszystkie odpowiedzi są prawidłowe 142. Zakres przeprowadzonych prób wózków jezdniowych podnośnikowych wyposażonych w hydrauliczny osprzęt dodatkowy obejmuje: a) całe wyposażenia hydrauliczne wózka wraz z osprzętem dodatkowym b) osprzęt nie stanowi wyposażenia wózka i nie podlega kontroli przez operatora c) próby sprawdzające poprawność działania wykonuje tylko konserwator d) próbę z obciążeniem 125% 143. Akumulatory kwasowe można ładować: a) w każdym pomieszczeniu niezależnie od przeznaczenia b) tylko w pomieszczeniu klimatyzowanym c) w miejscu specjalnie do tego przeznaczonym d) wyłącznie w pomieszczeniach ogrzewanych 144. Pomieszczenie, w którym odbywa się ładowanie akumulatorów wózka: a) nie musi posiadać wentylacji, ale musi być ogrzewane b) musi być ogrzewane i musi posiadać wentylację c) musi posiadać wentylację d) brak jednoznacznych wytycznych 145. Obowiązkiem operatora wózków jezdniowych podnośnikowych jest: a) sprawdzenie stopnia naładowania akumulatora b) sprawdzenie poziomu elektrolitu c) sprawdzenie poprawności zamocowania akumulatora d) wszystkie odpowiedzi są prawidłowe 146. Osoba dokonująca wymiany rozładowanych akumulatorów powinna: a) posiadać uprawnienia elektryczne SEP b) przestrzegać wytycznych zawartych w instrukcji c) posiadać zaświadczenie kwalifikacyjne do konserwacji wózków d) posiadać zaświadczenie kwalifikacyjne do obsługi wózków 147. Łącznik bezpieczeństwa "STOP" służy do: a) awaryjnego zatrzymania pracy wózka b) normalnego zatrzymania pracy silnika c) zabezpiecza przed uruchomieniem wózka przez osoby nieuprawnione d) wszystkie odpowiedzi są niepoprawne 148. W przypadku stwierdzenia sytuacji niebezpiecznej operator wózka ma obowiązek: a) zatrzymać wózek b) przerwać pracę c) opuścić ładunek (pod warunkiem nie zwiększenia zagrożenia) d) wszystkie odpowiedzi są prawidłowe 149. Sprawdzenie poprawności działania łącznika bezpieczeństwa STOP należy wykonać: a) tylko podczas przeglądów konserwacyjnych b) tylko w ramach przeglądów specjalnych c) zawsze przed rozpoczęciem pracy d) nie ma konieczności sprawdzania poprawności działania 150. Graniczne wartości zużycia ogumienia zawiera: a) deklaracja zgodności CE b) instrukcja eksploatacji wózka c) protokół z badań UDT d) dyrektywa maszynowa 151. Ciśnienie w oponach powinno być dostosowane do: a) zaleceń instrukcji eksploatacji wózka b) wyłącznie warunków panujących w miejscu eksploatacji c) preferencji operatora d) wymagań właściciela terenu 152. Nierówne ciśnienie w oponach na jednej osi może spowodować: a) poprawę właściwości jezdnych wózka b) zmniejszenie stateczności wózka podczas transportu ładunków c) nie ma żadnego wpływu na stateczność wózka d) wszystkie odpowiedzi są niepoprawne 153. Wpływ na przyspieszone zużycie opon pneumatycznych ma: a) gwałtowne hamowanie, najeżdżanie na przeszkody z dużą prędkością b) jazda ze zbyt niskim ciśnieniem c) manewrowanie wózkiem na małej przestrzeni d) wszystkie odpowiedzi są poprawne 154. Nierównomierne zużycie opon pełnych znajdujących się na wspólnej osi: a) poprawia właściwości jezdne wózka b) nie ma żadnego wpływu na bezpieczną eksploatację c) może spowodować utratę stateczności wózka d) wszystkie odpowiedzi są niepoprawne 155. Ocenę stanu technicznego ogumienia przeprowadza: a) konserwator podczas przeglądów konserwacyjnych b) operator w ramach czynności przed rozpoczęciem pracy c) inspektor UDT w trakcie wykonywanych czynności d) wszystkie odpowiedzi są prawidłowe 156. W przypadku stwierdzenia uszkodzeń mechanicznych ogumienia, mających wpływ na bezpieczną eksploatację, operator wózka: a) powiadamia przełożonego o stwierdzonej niezgodności, ale nie przerywa pracy b) wstrzymuje pracę urządzenia i powiadamia przełożonego o stwierdzonej niezgodności c) kontynuuje pracę zmniejszając prędkość jazdy d) kontynuuje pracę zmniejszając prędkości poruszania się 157. Operator po zauważeniu podczas jazdy palącej się lampki kontrolnej ciśnienia oleju silnika powinien: a) zjechać w bezpieczne miejsce, opuścić ładunek, wyłączyć silnik b) może kontynuować jazdę jeśli stan oleju jest prawidłowy c) nie musi podejmować żadnych działań d) odpowiedź b i c jest prawidłowa 158. Po zakończeniu pracy operator powinien: a) upewnić się, że widły są opuszczone, wózek jest w miejscu stałego postoju i nie stwarza zagrożenia b) uruchomić hamulec postojowy c) wcisnąć łącznik STOP d) odpowiedź a i b jest prawidłowa 159. Sprawne dźwignie sterujące: a) po zwolnieniu nacisku powinny samoczynnie wracać do pozycji neutralnych b) mogą nie mieć oznaczeń gdy operator wie do czego służą c) powinny realizować kierunki ruchów zgodne z oznaczeniami d) odpowiedź a i c jest prawidłowa 160. Opis próby sprawdzenia poprawności działania hamulca zasadniczego opisuje: a) instrukcja obsługi wózka b) ustawa o dozorze technicznym c) dyrektywa maszynowa d) wewnętrzne przepisy zakładowe 161. Informacje dotyczące sposobu sprawdzania poprawności działania hamulca pomocniczego są zawarte w: a) rozporządzeniu w sprawie eksploatacji urządzeń transportu bliskiego b) instrukcji obsługi wózka c) ustawie o dozorze technicznym d) wytycznych inspektora BHP 162. Podczas próby hamulca zasadniczego maszt powinien być w pozycji: a) pozycja masztu nie ma znaczenia b) przechylony "na siebie" c) przechylony "od siebie" d) pionowej 163. Próbę hamulca zasadniczego należy przeprowadzać: a) z ładunkiem 110% udźwigu urządzenia b) z ładunkiem 125% udźwigu urządzenia c) bez ładunku d) bez ładunku a następnie z ładunkiem nominalnym 164. Jeżeli w czasie próby hamulca pomocniczego operator uzna, że jego działanie jest nieprawidłowe powinien: a) wstrzymać eksploatację urządzenia b) poinformować przełożonego c) kontynuować pracę ze zmniejszoną prędkością jazdy d) odpowiedź a i b jest prawidłowa 165. W przypadku stwierdzenia awarii układu hamulcowego operator powinien: a) w ramach posiadanych kompetencji wykonać naprawę hamulca b) wstrzymać eksploatację urządzenia c) poinformować Urząd Dozoru Technicznego d) kontynuować pracę z zachowaniem szczególnej ostrożności 166. W przypadku stwierdzenia wycieku płynu hamulcowego, operator powinien: a) uzupełnić płyn hamulcowy i kontynuować jazdę do zakończenia pracy b) wstrzymać eksploatację urządzenia i powiadomić przełożonego c) wstrzymać eksploatację urządzenia i powiadomić inspektora UDT d) odpowiedź b i c jest prawidłowa 167. W przypadku stwierdzenia niewłaściwego działania hamulca pomocniczego, operator: a) na wyraźne polecenie przełożonego dokonuje jego naprawy b) zgłasza awarię do UDT c) wstrzymuje eksploatację urządzenia i powiadamia przełożonego d) wszystkie odpowiedzi są poprawne 168. Hamulec zasadniczy należy sprawdzać jadąc wózkiem podnośnikowym i hamując: a) do przodu b) do tyłu c) w obu kierunkach d) hamulec sprawdza tylko konserwator 169. Operator powinien przeprowadzić sprawdzenie hamulców: a) zgodnie z terminami zawartymi w instrukcji konserwacji b) raz na miesiąc c) raz na tydzień d) zawsze przed rozpoczęciem pracy 170. Schodząc z fotela operatora, obsługujący wózek powinien: a) zawsze załączyć hamulec postojowy b) załączyć hamulec postojowy tylko w przypadku postoju wózka na wzniesieniu c) unieść widły na maksymalną wysokość d) przechylić maszt w pozycję "na siebie" 171. Zakres czynności kontrolnych masztu wózka podnośnikowego obejmuje: a) sprawdzenie czy nie wystąpiły pęknięcia b) sprawdzenie stanu rolek prowadzących c) sprawdzenie ogranicznika krańcowego położenia karetki d) wszystkie odpowiedzi są poprawne 172. Podczas jazdy wózkiem podnośnikowym z ładunkiem na widłach należy: a) manipulować pochyłem masztu w zależności od ukształtowania terenu b) poruszać się z masztem przechylonym "na siebie" c) transportować ładunek w dowolny wybrany przez operatora sposób d) manipulować pochyłem masztu w zależności od prędkości poruszania się 173. Ładunek należy transportować: a) na wysokości powyżej linii wzroku operatora, jeżeli poprawia to widoczność b) na wysokości około 20-30 cm nad poziomem podłoża c) na dowolnej wysokości d) na wysokości ok 90 cm 174. Podczas zjazdu z pochyłej rampy wózkiem czołowym podnośnikowym wraz z ładunkiem, operator: a) porusza się przodem b) porusza się tyłem c) zachowuje szczególną ostrożność d) odpowiedź b i c jest prawidłowa 175. Podczas wjazdu na pochyłą rampę wózkiem jezdniowym podnośnikowym z ładunkiem ograniczającym widoczność, operator: a) korzysta z pomocy drugiej osoby b) porusza się przodem c) porusza się tyłem d) odpowiedź a i b jest prawidłowa 176. Poruszanie się wózkiem w poprzek pochyłej rampy jest: a) zabronione b) dozwolone c) dopuszczalne pod warunkiem zachowania szczególnej ostrożności d) dopuszczalne pod warunkiem obciążenia wózka ładunkiem uniesionym na minimalną wysokość 177. Poruszając się wózkiem z ładunkiem ograniczającym widoczność operator powinien: a) jechać tyłem b) jechać przodem, z pomocą osoby informującej o zagrożeniach c) poruszać się z bezpieczną prędkością d) wszystkie odpowiedzi są prawidłowe 178. Podczas jazdy wózkiem jezdniowym podnośnikowym z ładunkiem należy: a) unikać gwałtownych skrętów b) przewozić ładunek na wysokości transportowej c) dostosować prędkość jazdy do panujących warunków d) wszystkie odpowiedzi są prawidłowe 179. Wylot zaworu butli gazowej powinien być skierowany: a) w dół b) w górę c) poziomo d) pozycja nie ma znaczenia 180. Szczelność instalacji gazowej sprawdza się przy pomocy: a) detektora gazu b) specjalnego środka c) wody mydlanej d) wszystkie odpowiedzi są prawidłowe 181. Eksploatacja wózka jezdniowego w temperaturze poniżej -10°C: a) jest dozwolona pod warunkiem wyposażenia wózka w ogrzewanie kabiny operatora b) jest dozwolona jeśli instrukcja eksploatacji na to zezwala c) jest zabroniona z uwagi na możliwości utraty przyczepności d) jest zabroniona z uwagi na zmianę parametrów technicznych oleju hydraulicznego 182. Eksploatacja wózka jezdniowego w temperaturze powyżej 30°C: a) jest zabroniona z uwagi na pogorszenie warunków pracy operatora b) jest dozwolona pod warunkiem wyposażenia wózka w klimatyzowaną kabinę operatora c) jest zabroniona z uwagi na zmianę parametrów technicznych oleju hydraulicznego d) jest dozwolona jeśli instrukcja eksploatacji na to zezwala 183. W oparciu o tabelę określ jakie maksymalne obciążenie może przenieść gniazdo ładunkowe regału: a) 1320 kg b) 1100 kg c) 2700 kg d) 2200 kg 184. W oparciu o tabelę, określ na które najwyższe gniazdo ładunkowe podasz towar dysponując wózkiem o maksymalnej wysokości podnoszenia 2100 mm: a) gniazdo 1 b) gniazdo 2 c) gniazdo 3 d) gniazdo 4 185. Odstawiając ładunek na regał magazynowy operator powinien znać: a) masę towaru i obciążenie maksymalne gniazda regału b) masę towaru i obciążenie minimalne ramy regału c) wymiary zewnętrzne transportowanego ładunku d) odpowiedź a i c jest prawidłowa 186. Podczas transportu ładunków wielkogabarytowych operator powinien: a) jechać tyłem b) jechać przodem wychylając się poza obrys wózka c) jechać przodem korzystając z pomocy drugiej osoby d) odpowiedź a i c jest prawidłowa 187. Na co powinien zwrócić uwagę operator podczas wymiany baterii trakcyjnych? a) na masę i wymiary baterii b) na pojemność baterii c) na dane adresowe producenta baterii d) odpowiedzi a i b są prawidłowe 188. Przyczyną utraty stateczności wózka może być: a) zbyt niskie ciśnienie w oponach b) szybka jazda w zakrętach c) gwałtowne hamowanie przy jeździe z ładunkiem d) wszystkie odpowiedzi są prawidłowe 189. Dopuszczalna prędkość jazdy wózka jest określona: a) w ustawie o dozorze technicznym b) w protokole badania wystawionym przez UDT c) w decyzji zezwalającej na eksploatację d) wszystkie odpowiedzi są niepoprawne 190. Przed rozpoczęciem pracy wózkiem należy sprawdzić funkcjonowanie: a) układu hydraulicznego b) układu hamulcowego c) układu kierowniczego d) wszystkie odpowiedzi są prawidłowe 191. Po zamontowaniu dodatkowego osprzętu wymiennego należy: a) zapoznać się z właściwym diagramem udźwigu b) zgłosić do UDT w celu wykonania badania technicznego c) sprawdzić, czy zakres posiadanych uprawnień do obsługi obejmuje zamontowany osprzęt d) wszystkie odpowiedzi są prawidłowe 192. Przed wjazdem wózkiem na rampę załadowczą operator powinien sprawdzić: a) kąt nachylenia rampy, oraz zdolność wózka do pokonywania wzniesień b) nośność rampy c) ciężar ładunku oraz masę własną wózka d) wszystkie odpowiedzi są prawidłowe 193. Podczas jazdy wózkiem podnośnikowym należy: a) przestrzegać przepisów BHP b) stosować się do znaków, oznaczeń i symboli umieszczonych w obszarze pracy wózka c) przestrzegać instrukcji obsługi wózka d) wszystkie odpowiedzi są prawidłowe 194. Gdzie znajduje się informacja dotycząca udźwigu wózka: a) w instrukcji eksploatacji wózka b) na tabliczce znamionowej wózka c) na diagramie udźwigu d) wszystkie odpowiedzi są prawidłowe 195. Przed rozpoczęciem pracy wózkiem należy: a) zapoznać się z zakresem pracy b) określić masę transportowanego ładunku c) sprawdzić, czy osprzęt wózka jest właściwie dobrany do ładunku d) wszystkie odpowiedzi są prawidłowe 196. Praca wózka z koszem do podnoszenia osób zakładanym na widły: a) jest dozwolona wyłącznie po uzgodnieniu szczegółowych warunków eksploatacji z UDT b) jest dozwolona bez dodatkowych wymagań c) jest zabroniona d) jest dozwolona za zgodą właściciela zakładu bez dodatkowych wymagań 197. W przypadku kiedy wózek traci stateczność, operator: a) stara się opuścić kabinę wózka (przed jego wywróceniem się) b) pozostaje w kabinie c) utrzymuje pozycję siedzącą trzymając się mocno kierownicy d) odpowiedź b i c jest prawidłowa 198. W chwili wywracania się wózka należy: a) niezwłocznie wyskoczyć z kabiny b) ostro zahamować c) skręcić gwałtownie koła w kierunku przechylenia, by spróbować zapobiec wywróceniu d) wszystkie odpowiedzi są niepoprawne 199. Wózek może stracić stateczność na skutek: a) podnoszenia ładunku o ciężarze większym niż udźwig wózka b) wykonywania gwałtownych skrętów kół podczas jazdy c) zawracania wózkiem na wzniesieniu d) wszystkie powyżej są prawidłowe 200. Jeżeli instrukcja wózka nie stanowi inaczej, następujące w toku eksploatacji maksymalne wydłużenie łańcucha nośnego może wynosić: a) 3 cm b) 3 mm c) 3% d) 10% 201. Jeżeli instrukcja wózka nie stanowi inaczej, dopuszczalna ilość pękniętych płytek łańcucha nośnego (konstrukcji Flyera) wynosi: a) 3% całkowitej ilości plytek b) 6 sztuk na długości 30 ogniw c) 1 sztuka na każdy metr łańcucha d) 0 202. Jeżeli instrukcja wózka nie stanowi inaczej, minimalna dopuszczalna grubość poziomej części wideł zmierzona w pobliżu ich naroża (pięty) wynosi: a) 25 mm przy grubości nominalnej 30 mm b) 57 mm przy grubości nominalnej 60 mm c) 36 mm przy grubości nominalnej 40 mm d) zawsze wynosi 50% grubości nominalnej wideł 203. Jeżeli instrukcja wózka nie stanowi inaczej, minimalna dopuszczalna grubość poziomej części wideł zmierzona w pobliżu ich naroża (pięty) wynosi: a) 27 mm przy grubości nominalnej 30 mm b) 57 mm przy grubości nominalnej 60 mm c) 25 mm przy grubości nominalnej 30 mm d) zawsze wynosi 50% grubości nominalnej wideł 204. Jeżeli instrukcja wózka nie stanowi inaczej, minimalna dopuszczalna grubość poziomej części wideł zmierzona w pobliżu ich naroża (pięty) wynosi: a) 25 mm przy grubości nominalnej 30 mm b) 55 mm przy grubości nominalnej 60 mm c) 40 mm przy grubości nominalnej 60 mm d) zawsze wynosi 50% grubości nominalnej wideł 205. Jeżeli instrukcja wózka nie stanowi inaczej, minimalna dopuszczalna grubość poziomej części wideł zmierzona w pobliżu ich naroża (pięty) wynosi: a) 25 mm przy grubości nominalnej 30 mm b) 45 mm przy grubości nominalnej 50 mm c) 50 mm przy grubości nominalnej 60 mm d) zawsze wynosi 50% grubości nominalnej wideł 206. Jeżeli instrukcja wózka nie stanowi inaczej, maksymalne dopuszczalne rozgięcie widły względem wartości oryginalnej (zwykle 90 stopni), wynosi: a) 1 cm b) 3% c) 3 stopnie d) 0 stopni 207. Sprawdzenie poprawności działania układu hydraulicznego w wózkach ze zmiennym wysięgiem obejmuje min.: a) próbę szczelności wewnętrznej b) próbę zaworu przelewowego c) próbę zamka hydraulicznego d) wszystkie odpowiedzi są poprawne 208. Minimalna bezpieczna odległość pracy wózka przy wykopie uzależniona jest od: a) kategorii gruntu b) brak jednoznacznych wartości c) głębokości wykopu d) odpowiedź a i c jest prawidłowa 209. Przedstawiony rysunek oznacza: a) wskaźnik wysokości podnoszenia b) wskaźnik temperatury silnika c) wskaźnik ogranicznika obciążenia d) wskaźnik kąta nachylenia 210. Urządzeniem zabezpieczającym wózek ze zmiennym wysięgiem przed wywróceniem jest: a) ogranicznik obciążenia b) kabina operatora c) pasy opasające operatora d) wszystkie odpowiedzi są poprawne 211. Poprawnie działający ogranicznik obciążenia w wózkach ze zmiennym wysięgiem powoduje: a) załączenie sygnalizacji dźwiękowej b) w niektórych rozwiązaniach konstrukcyjnych wyłączenie mechanizmu teleskopowania w kierunku zwiększenia wysięgu c) w niektórych rozwiązaniach konstrukcyjnych wyłączenie mechanizmu podnoszenia w kierunku dół d) wszystkie odpowiedzi są poprawne 212. W przypadku awarii układu hydraulicznego przy podniesionej kabinie i braku możliwości awaryjnego opuszczenia kabiny operator powinien: a) opuścić kabinę schodząc po regale b) opuścić kabinę schodząc po konstrukcji wózka c) ewakuować się z kabiny wykorzystując zestaw ratowniczy dostępny w kabinie d) wezwać inspektora UDT 213. W przypadku awarii wózka, przy podniesionej kabinie operator powinien: a) powiadomić UDT b) zejść po konstrukcji regałów magazynowych zachowując szcególną ostrożność c) opuścić kabinę przy pomocy systemu awaryjnego opuszczania d) wezwać straż pożarną 214. Urządzeniem zabezpieczającym operatora przed przygnieceniem lub wypadnięciem instalowanym w wózkach z operatorem podnoszonym wraz z ładunkiem może być: a) czujnik fotela operatora b) czujnik zajętości obu rąk c) łącznik barier wejściowych d) wszystkie odpowiedzi są prawidłowe 215. Elementem mającym na celu zapewnienie prawidłowej pozycji obsługującego wózek z operatorem podnoszonym wraz z ładunkiem, może być: a) czujnik zajętości obu rąk b) czujnik zajętości fotela operatora c) szelki zabezpieczające operatora przed upadkiem z wysokości d) odpowiedzi a i b są prawidłowe 216. Zabezpieczenia elektryczne charakterystyczne dla wózka z operatorem podnoszonym wraz z ładunkiem to: a) łącznik brzuszny, ogranicznik przeciążenia b) czujnik zajętości obu rąk, kontakt zluzowania łańcucha, kontakty barier kabiny c) łącznik STOP, kontakt rozłożenia podpór d) wszystkie odpowiedzi są prawidłowe 217. W oparciu o przedstawiony diagram udźwigu i rysunek określ maksymalną bezpieczną wysokość podnoszenia ładunku pobranego od strony A: a) 4836 mm b) 4030 mm c) 3100 mm d) wszystkie odpowiedzi są niepoprawne 218. W oparciu o przedstawiony diagram udźwigu i rysunek określ maksymalną bezpieczną wysokość podnoszenia ładunku pobranego od strony B: a) 3100 mm b) 4836 mm c) 4030 mm d) wszystkie odpowiedzi są niepoprawne 219. W oparciu o przedstawiony diagram udźwigu i rysunek określ maksymalną bezpieczną wysokość podnoszenia ładunku pobranego od strony A: a) 3510 mm b) 4212 mm c) 2700 mm d) wszystkie odpowiedzi są niepoprawne 220. W oparciu o przedstawiony diagram udźwigu i rysunek określ maksymalną bezpieczną wysokość podnoszenia ładunku pobranego od strony B: a) 4212 mm b) 2700 mm c) 3520 mm d) wszystkie odpowiedzi są niepoprawne 221. W oparciu o przedstawiony diagram udźwigu i rysunek określ maksymalną bezpieczną wysokość podnoszenia ładunku pobranego od strony A: a) 2600 mm b) 3380 mm c) 4056 mm d) wszystkie odpowiedzi są niepoprawne 222. W oparciu o przedstawiony diagram udźwigu i rysunek określ maksymalną bezpieczną wysokość podnoszenia ładunku pobranego od strony B: a) 4056 mm b) 2600 mm c) 3380 mm d) wszystkie odpowiedzi są niepoprawne 223. W oparciu o przedstawiony diagram udźwigu i rysunek określ maksymalną bezpieczną wysokość podnoszenia ładunku pobranego od strony A: a) 3640 mm b) 4368 mm c) 2800 mm d) wszystkie odpowiedzi są niepoprawne 224. W oparciu o przedstawiony diagram udźwigu i rysunek określ maksymalną bezpieczną wysokość podnoszenia ładunku pobranego od strony B: a) 2800 mm b) 3640 mm c) 4368 mm d) wszystkie odpowiedzi są niepoprawne 225. W oparciu o przedstawiony diagram udźwigu określ maksymalny udźwig wózka na wysokości 6 m: a) 1300 kg b) 1500 kg c) 1700 kg d) 2000 kg 226. W oparciu o przedstawiony diagram udźwigu określ maksymalny udźwig wózka na wysokości 6,7 m: a) 1400 kg b) 1200 kg c) 1000 kg d) 1300 kg 227. W oparciu o przedstawiony diagram udźwigu określ maksymalną masę ładunku, o wymiarach podstawy 1,6 m x 1,6 m: a) 4,5 t b) 4,0 t c) 3,5 t d) 3,0 t 228. W oparciu o przedstawiony diagram udźwigu określ maksymalną masę ładunku, o wymiarach podstawy 2 m x 2 m: a) 2,5 t b) 3,5 t c) 4,5 t d) 3,0 t 229. W oparciu o przedstawiony diagram udźwigu oraz rysunek określ maksymalną bezpieczną wysokość podnoszenia ładunku pobranego z kierunku A: a) 2350 mm b) 3300 mm c) 1400 mm d) 1300 mm 230. W oparciu o przedstawiony diagram udźwigu oraz rysunek określ maksymalną masę ładunku pobranego od strony B: a) 1300 kg b) 1400 kg c) 1500 kg d) 2300 kg 231. W oparciu o przedstawiony diagram udźwigu oraz rysunek określ maksymalną masę ładunku pobranego od strony A: a) 1500 kg b) 2000 kg c) 2300 kg d) 2500 kg 232. W oparciu o przedstawiony diagram udźwigu oraz rysunek określ maksymalną masę ładunku pobranego od strony B: a) 1100 kg b) 1450 kg c) 1800 kg d) 2300 kg 233. W oparciu o przedstawiony diagram udźwigu oraz rysunek określ maksymalną masę ładunku, jaką można bezpiecznie podnieść pobierając ładunek od strony A: a) 1500 kg b) 2000 kg c) 2300 kg d) 1800 kg 234. W oparciu o przedstawiony diagram udźwigu oraz rysunek określ maksymalną masę ładunku, jaką można bezpiecznie podnieść pobierając ładunek od strony A: a) 2695 kg b) 3185 kg c) 3500 kg d) wszystkie odpowiedzi są niepoprawne 235. W oparciu o przedstawiony diagram udźwigu oraz rysunek określ maksymalną masę ładunku, jaką można bezpiecznie podnieść pobierając ładunek od strony B: a) 2695 kg b) 3500 kg c) 3185 kg d) wszystkie odpowiedzi są niepoprawne 236. W oparciu o przedstawiony diagram udźwigu oraz rysunek określ maksymalną bezpieczną wysokość podnoszenia, ładunku pobranego z kierunku A: a) 700 mm b) 1200 mm c) 4500 mm d) 1800 mm 237. W oparciu o przedstawiony diagram udźwigu określ maksymalny udźwig wózka, podnoszącego ładunek na wysokość 3000 mm: a) 2400 kg b) 3600 kg c) 3500 kg d) 1500 kg 238. W oparciu o przedstawiony diagram udźwigu określ maksymalny udźwig wózka, podnoszącego ładunek na wysokość 4000 mm: a) 3300 kg b) 4000 kg c) 3400 kg d) wszystkie odpowiedzi są niepoprawne 239. W oparciu o przedstawiony diagram udźwigu określ maksymalny udźwig wózka, podnoszącego ładunek na wysokość 5000 mm: a) 4000 kg b) 2700 kg c) 3400 kg d) wszystkie odpowiedzi są niepoprawne 240. W oparciu o przedstawiony diagram udźwigu oraz rysunek określ maksymalną masę ładunku jaką można bezpiecznie podnieść na wysokość 4000 mm, pobierając od strony B: a) 3400 kg b) 2900 kg c) 2700 kg d) 3600 kg 241. W oparciu o przedstawiony diagram udźwigu oraz rysunek określ maksymalną masę ładunku jaką można bezpiecznie podnieść na wysokość 4000 mm, pobierając od strony A: a) 2900 kg b) 3600 kg c) 3400 kg d) 3200 kg 242. W oparciu o przedstawiony diagram udźwigu oraz rysunek wskaż, na który regał lub regały można postawić ładunek: a) Regał 1 b) Regał 2 c) Regał 3 d) wszystkie odpowiedzi są poprawne 243. W oparciu o przedstawiony diagram udźwigu oraz rysunek wskaż, na który regał lub regały można postawić ładunek: a) Regał 1 b) Regał 2 c) Regał 3 d) wszystkie odpowiedzi są poprawne 244. W oparciu o przedstawiony diagram udźwigu oraz rysunek wskaż, na który regał lub regały można postawić ładunek: a) Regał 1 b) Regał 2 c) Regał 3 d) odpowiedź a i b jest prawidłowa 245. W oparciu o przedstawiony diagram udźwigu oraz rysunek określ maksymalną masę ładunku, pobranego od strony B: a) 1000 kg b) 1200 kg c) 1500 kg d) 2300 kg 246. W oparciu o przedstawiony diagram udźwigu oraz rysunek określ maksymalną masę ładunku, pobranego od strony A: a) 1600 kg b) 1900 kg c) 2300 kg d) 2500 kg 247. W oparciu o przedstawiony diagram udźwigu oraz rysunek określ maksymalną bezpieczną wysokość podnoszenia, ładunku pobranego z kierunku A: a) 5940 mm b) 7890 mm c) 3600 mm d) 4500 mm 248. W oparciu o przedstawiony diagram udźwigu oraz rysunek określ maksymalną bezpieczną wysokość podnoszenia, ładunku pobranego z kierunku B: a) 5940 mm b) 7890 mm c) 3600 mm d) 4500 mm 249. W oparciu o przedstawiony diagram udźwigu oraz rysunek określ maksymalną bezpieczną wysokość podnoszenia, ładunku pobranego z kierunku A: a) 4860 mm b) 8820 mm c) 7070 mm d) 10820 mm 250. W oparciu o przedstawiony diagram udźwigu oraz rysunek określ maksymalną bezpieczną wysokość podnoszenia, ładunku pobranego z kierunku B: a) 4860 mm b) 5660 mm c) 7070 mm d) 10820 mm 251. W oparciu o przedstawiony diagram udźwigu oraz rysunek określ maksymalną masę ładunku, pobranego od strony A: a) 400 kg b) 600 kg c) 1500 kg d) 2000 kg 252. W oparciu o przedstawiony diagram udźwigu oraz rysunek określ maksymalną masę ładunku, pobranego od strony B: a) 400 kg b) 600 kg c) 1500 kg d) 2000 kg 253. W oparciu o przedstawiony diagram udźwigu oraz rysunek określ maksymalną masę ładunku, pobranego od strony A: a) 1400 kg b) 1255 kg c) 1040 kg d) 840 kg 254. W oparciu o przedstawiony diagram udźwigu oraz rysunek określ maksymalną masę ładunku, pobranego od strony B: a) 1400 kg b) 1255 kg c) 1040 kg d) 840 kg 255. Na podstawie diagramu określ na jaką maksymalną wysokość można podnieść ładunek o masie 4,0 t: a) 8,0 m b) 12,5 m c) 14,0 m d) 16,9 m 256. Na podstawie diagramu określ na jaką maksymalną wysokość można podnieść ładunek o masie 3,0 t: a) 9,0 m b) 12,5 m c) 17,55 m d) 15,0 m 257. Na podstawie diagramu określ na jaką maksymalną wysokość można podnieść ładunek o masie 3 t: a) 8,0 m b) 9,0 m c) 10,5 m d) 12,55 m 258. Na podstawie diagramu określ maksymalny wysięg dla ładunku 1,6 t: a) 5,20 m b) 6,75 m c) 8,75 m d) 4,55 m 259. Na podstawie diagramu określ maksymalny wysięg dla ładunku 4,0 t: a) 3,20 m b) 4,0 m c) 2,6 m d) 5,0 m 260. Na podstawie diagramu określ jaki ładunek można podać na odległość 5 m: a) 5,0 t b) 4,2 t c) 3,2 t d) 1,4 t 261. Na podstawie diagramu, parametry wózka to: a) maksymalny udźwig 4,0 t b) maksymalna wysokość podnoszenia 16,9 m c) maksymalny udźwig 3,5 t d) odpowiedź a i b jest prawidłowa 262. Na podstawie diagramu określ na jaką maksymalną wysokość można podnieść ładunek o masie 3,0 t: a) 13 m b) 14,5 m c) 12 m d) 16 m 263. Na podstawie diagramu określ maksymalny wysięg dla ładunku 4,0 t: a) 1 m b) 3 m c) 5 m d) 4 m 264. Na podstawie diagramu określ na jaką maksymalną wysokość można podnieść ładunek o masie 1,5 t: a) 4,4 m b) 6,7 m c) 5,0 m d) 7,1 m 265. Na podstawie diagramu określ maksymalny wysięg dla ładunku 1,5 t: a) 2,5 m b) 3,6 m c) 1,8 m d) 3,0 m 266. Zgodnie z podanym diagramem udźwigu w sytuacji jak na rysunku operator może: a) odłożyć ładunek na poziom "3" b) odłożyć ładunek na poziom "2" c) odłożyć ładunek na poziom "1" d) wszystkie odpowiedzi są prawidłowe 267. Ile może wynosić masa podnoszonego ładunku w przypadku, gdy zgodnie z podanym diagramem udźwigu w sytuacji jak na rysunku operator ma za zadanie odłożyć ładunek na poziomie "2"? a) 1500 kg b) 1800 kg c) 2000 kg d) 2200 kg 268. Maksymalna wysokość podnoszenia ładunku o masie 3,5 t wynosi: a) 13,5 m b) 12,55 m c) 11,50 m d) 10,0 m 269. Maksymalna wysokość podnoszenia ładunku o masie 2,5 t wynosi: a) 12,55 m b) 11,6 m c) 9,6 m d) 10,2 m 270. Zgodnie z podanym diagramem maksymalny wysięg ładunku o masie 1,2 t wynosi: a) 8,75 m b) 6,4 m c) 7,2 m d) 8,05 m 271. Ile może wynosić masa podnoszonego ładunku w przypadku, gdy zgodnie z podanym diagramem udźwigu w sytuacji jak na rysunku operator ma za zadanie odłożyć ładunek na poziomie "2"? a) 1200 kg b) 1600 kg c) 2000 kg d) żadne z powyższych ze względu na przeszkodę 272. Na podstawie diagramu parametry wózka to: a) maksymalny wysięg 13,08 m b) maksymalna wysokość podnoszenia 17,55 m c) maksymalny udźwig 4,0 t d) wszystkie odpowiedzi są poprawne 273. Na podstawie diagramu określ maksymalny wysięg dla ładunku 2,0 t: a) 2,0 m b) 2,9 m c) 3,7 m d) 4,5 m 274. Na podstawie diagramu określ maksymalny wysięg dla ładunku 2,0 t: a) 5,0 m b) 8,4 m c) 6,3 m d) 7,2 m 275. Na podstawie diagramu określ maksymalny wysięg dla ładunku 2,5 t: a) 6,4 m b) 4,8 m c) 5,2 m d) 8,05 m 276. Święcąca się kontrolka ciśnienia oleju może świadczyć o: a) zbyt niskim poziomie płynu hamulcowego b) podwyższonej temperaturze silnika c) zbyt niskim ciśnieniu oleju d) wszystkie odpowiedzi są poprawne 1. Urządzenie techniczne objęte dozorem technicznym może być eksploatowane na podstawie: a) zezwolenia ustnego lub pisemnego wydanego przez upoważnionego konserwatora b) ważnej decyzji zezwalającej na eksploatację wydanej przez organ właściwej jednostki dozoru technicznego c) oznaczenia CE zamieszonego na urządzeniu d) deklaracji zgodności wystawionej przez wytwórcę 2. Które z wymienionych czynności nie należą do zakresu obowiązków obsługującego UTB: a) wykonywanie niewielkich napraw urządzenia w ramach posiadanego wykształcenia i umiejętności b) przestrzeganie instrukcji eksploatacji w zakresie obsługi UTB c) zapoznanie się z planem pracy i wielkością przenoszonych ładunków d) wszystkie odpowiedzi są poprawne 3. Terminy przeglądów konserwacyjnych urządzeń technicznych: a) są zawarte w instrukcji eksploatacji urządzenia b) określa konserwator urządzenia c) określa w protokole inspektor wykonujący badanie d) wszystkie odpowiedzi są poprawne 4. Dozorem technicznym nazywamy: a) określone ustawą działania zmierzające do zapewnienia bezpiecznego funkcjonowania urządzeń technicznych i urządzeń do odzyskiwania par paliwa oraz działania zmierzające do zapewnienia bezpieczeństwa publicznego w tych obszarach b) instytucje kontrolujące stan techniczny urządzeń c) Urząd Dozoru Technicznego d) UDT, WDT,TDT 5. Dozór techniczny nad urządzeniami technicznymi wykonuje: a) Urząd Dozoru Technicznego oraz specjalistyczne jednostki dozoru technicznego b) Urząd Dozoru Technicznego oraz upoważnionre przez UDT organizacje c) Urząd Dozoru Technicznego i zagraniczne jednostki dozoru technicznego d) wszystkie odpowiedzi są poprawne 6. Zmiana parametrów technicznych lub zmiana konstrukcji urządzenia technicznego traktowana jest jako: a) modernizacja urządzenia technicznego b) naprawa urządzenia technicznego c) usuwanie usterek i innych nieprawidłowości urządzenia technicznego d) wytworzenie nowego urządzenia 7. Uzgodnioną naprawę lub modernizację urządzeń technicznych może wykonać: a) naprawiający lub modernizujący, który posiada uprawnienie wydane przez organ właściwej jednostki dozoru technicznego b) eksploatujący urządzenie techniczne posiadający odpowiednie doświadczenie w zakresie napraw lub modernizacji c) konserwator posiadający odpowiednie doświadczenie w zakresie napraw lub modernizacji d) w niewielkim zakresie kompetentny operator 8. Ustawa o dozorze technicznym określa następujące formy dozoru technicznego: a) całkowita, częściowa, ograniczona b) pełna, ograniczona, uproszczona c) pełna, cykliczna, sporadyczna d) UDT, WDT, TDT 9. Decyzję zezwalającą na eksploatację urządzenia technicznego wydaje: a) konserwator po wykonaniu przeglądu z wynikiem pozytywnym b) organ właściwej jednostki dozoru technicznego lub eksploatujący urządzenie techniczne z upoważnienia organu właściwej jednostki dozoru technicznego c) organ właściwej jednostki dozoru technicznego lub organ administracji publicznej z upoważnienia organu właściwej jednostki dozoru technicznego d) organ właściwej jednostki dozoru technicznego 10. Obsługujący urządzenie techniczne może podjąć pracę gdy: a) urządzenie posiada ważną decyzję zezwalającą na eksploatację jeżeli wymagają tego odpowiednie przepisy b) posiada zaświadczenie kwalifikacyjne odpowiedniej kategorii c) urządzenie posiada aktualny pozytywny wynik przeglądu konserwacyjnego d) wszystkie powyższe warunki muszą być spełnione jednocześnie 11. Obsługujący urządzenie techniczne może podjąć pracę gdy: a) urządzenie posiada aktualny wpis w dzienniku konserwacji potwierdzający sprawność urządzenia b) przeszedł odpowiednie szkolenie stanowiskowe c) urządzenie posiada ważną decyzję zezwalającą na eksploatację d) wszystkie powyższe warunki muszą być spełnione jednocześnie 12. W przypadku nieprzestrzegania przez eksploatującego przepisów o dozorze technicznym eksploatujący: a) otrzymuje pisemne upomnienie b) otrzymuje zalecenia pokontrolne c) podlega grzywnie lub karze ograniczenia wolności d) odpowiedź a i b jest prawidłowa 13. W przypadku stwierdzenia zagrożenia dla życia lub zdrowia ludzkiego oraz mienia i środowiska inspektor: a) wydaje decyzję wstrzymującą eksploatację urządzenia technicznego b) wystawia mandat karny c) pisemnie poucza eksploatującego d) wszystkie odpowiedzi są poprawne 14. W przypadku niebezpiecznego uszkodzenia urządzenia technicznego lub nieszczęśliwego wypadku eksploatujący: a) niezwłocznie powiadamia UDT o zaistniałym zdarzeniu b) powiadamia producenta urządzenia o przyczynach powstałego zdarzenia c) niezwłocznie dokonuje naprawy urządzenia i przekazuje do dalszej eksploatacji d) zgłasza urządzenie do wykonania naprawy 15. Zaświadczenie kwalifikacyjne do obsługi może zostać cofnięte przez: a) organ właściwej jednostki dozoru technicznego b) eksploatującego urządzenie techniczne c) inspektora bhp d) Państwową Inspekcję Pracy 16. Urządzenia techniczne nieobjęte dozorem technicznym to: a) żurawie o udźwigu do 3,2 t b) wciągniki i wciągarki oraz suwnice c) wózki jezdniowe podnośnikowe oraz podesty ruchome d) zawiesia transportowe 17. Urządzenia techniczne objęte dozorem technicznym to: a) przenośniki kabinowe i krzesełkowe b) układnice magazynowe oraz urządzenia dla osób niepełnosprawnych c) wyciągi towarowe i wyciągi statków d) wszystkie odpowiedzi są poprawne 18. Niebezpieczne uszkodzenie urządzenia technicznego to: a) każda usterka UTB b) nieprzewidziane uszkodzenie, w wyniku którego urządzenie nadaje się do częściowej eksploatacji c) nieprzewidziane uszkodzenie, w wyniku którego nadaje się do eksploatacji tylko przy obniżonych d) nieprzewidziane uszkodzenie, w wyniku którego urządzenie nie nadaje się do eksploatacji lub jego dalsza eksploatacja stanowi zagrożenie 19. Nieszczęśliwy wypadek to: a) nagłe zdarzenie, które spowodowało obrażenia ciała lub śmierć b) nagłe zdarzenie, które spowodowało przerwę w pracy c) nagłe zdarzenie, które skutkuje wyłączeniem urządzenia technicznego z eksploatacji d) każda usterka UTB spowodowana przyczyną losową 20. Odpowiedzialnym za zapewnienie właściwej obsługi i konserwacji urządzenia technicznego jest: a) eksploatujący urządzenie techniczne b) organ właściwej jednostki dozoru technicznego c) Państwowa Inspekcja Pracy d) inspektor UDT 21. Wymagane przepisami prawa przeglądy konserwacyjne wykonuje: a) osoba posiadająca zaświadczenie kwalifikacyjne do konserwacji b) pracownik autoryzowanego serwisu producenta urządzenia (pod warunkiem posiadania zaświadczeń kwalifikacyjnych do konserwacji) c) zakładowe służby utrzymania ruchu d) odpowiedź a i b jest prawidłowa 22. Dziennik konserwacji urządzenia technicznego prowadzi: a) inspektor UDT w księdze rewizyjnej urządzenia b) uprawniony operator c) wyznaczony pracownik eksploatującego d) konserwator urządzenia technicznego 23. Badania odbiorcze przeprowadza się dla urządzeń technicznych: a) w terminach zgodnych z zapisami rozporządzenia w sprawie warunków technicznych dozoru technicznego b) przed wydaniem pierwszej decyzji zezwalającej na eksploatacje c) po naprawie urządzenia technicznego d) po każdej zmianie eksploatującego 24. Badania okresowe przeprowadza się dla urządzeń technicznych objętych dozorem: a) ograniczonym b) pełnym c) uproszczonym d) wszystkie odpowiedzi są poprawne 25. Nieobecność konserwującego na badaniu urządzenia technicznego wymaga min.: a) wcześniejszego uzgodnienia tego faktu z organem właściwej jednostki dozoru technicznego b) przedstawienia pisemnego usprawiedliwienia nieobecności konserwatora c) przedstawienia zwolnienia lekarskiego potwierdzającego niezdolność konserwatora do pracy d) wszystkie odpowiedzi są prawidłowe 26. Kandydat na obsługującego urządzenie techniczne musi: a) mieć ukończone 18 lat b) posiadać przynajmniej wykształcenie zawodowe c) posiadać przynajmniej 1 rok stażu pracy d) wszystkie odpowiedzi są prawidłowe 27. Obsługujący urządzenie techniczne ma obowiązek przerwać pracę gdy: a) jego stan fizyczny i psychiczny w dniu pracy jest nieodpowiedni b) stwierdzi, że dalsza praca urządzeniem stwarza zagrożenie c) urządzenie jest niesprawne d) wszystkie odpowiedzi są prawidłowe 28. Terminy przeglądów konserwacyjnych urządzenia mogą być określone: a) w instrukcji eksploatacji urządzenia b) w ustawie o dozorze technicznym c) w rozporządzeniu określającym warunki techniczne dozoru technicznego d) odpowiedź a i c jest prawidłowa 29. Terminy badań okresowych i doraźnych kontrolnych UTB określone są: a) w ustawie o dozorze technicznym b) w rozporządzeniu określającym warunki techniczne dozoru technicznego c) w dokumentacji konstrukcyjnej urządzenia d) w dzienniku konserwacji 30. Obowiązkiem obsługującego urządzenie techniczne jest: a) przestrzeganie instrukcji eksploatacji w zakresie obsługi urządzenia b) przestrzeganie instrukcji eksploatacji w zakresie konserwacji urządzenia c) wykonywanie napraw urządzenia d) wszystkie odpowiedzi są poprawne 31. Urządzenie techniczne można eksploatować na podstawie: a) aktualnej naklejki organu właściwej jednostki dozoru technicznego określającej termin kolejnego badania b) aktualnego wpisu konserwatora urządzenia w dzienniku konserwacji c) ważnej decyzji zezwalającej na eksploatację wydanej przez organ właściwej jednostki dozoru technicznego d) pozytywnego protokołu z badania okresowego lub odbiorczego 32. Po wykonanych czynnościach przy urządzeniu technicznym inspektor sporządza: a) instrukcję eksploatacji urządzenia b) decyzję i protokół z wykonanych czynności c) deklarację zgodności CE d) wszystkie odpowiedzi są poprawne 33. Naprawę i modernizację urządzenia technicznego wykonuje: a) operator w ramach posiadanych umiejętności b) konserwator c) zakład uprawniony d) eksploatujący 34. Bezpośrednio odpowiedzialnym za bezpieczną eksploatację urządzenia technicznego jest: a) obsługujący urządzenie b) producent urządzenia c) zakładowy inspektor BHP d) inspektor UDT 35. Informacje dotyczące zasad bezpiecznej obsługi urządzenia są zawarte w: a) instrukcji eksploatacji urządzenia b) ustawie o dozorze technicznym c) dzienniku konserwacji d) protokole z badania wykonanego przez inspektora UDT 36. W ramach czynności przed rozpoczęciem pracy obsługujący: a) sprawdza stan techniczny urządzenia poprzez oględziny b) wykonuje próby statyczną i dynamiczną c) wykonuje próby ruchowe urządzenia d) odpowiedź a i c jest prawidłowa 37. Zaświadczenia kwalifikacyjne do obsługi urządzeń technicznych podlegających dozorowi technicznemu wydaje: a) firma szkoleniowa po pozytywnym wyniku egzaminu sprawdzającego b) inspektor BHP na podstawie zaświadczenia o ukończeniu kursu c) pracodawca na podstawie zdanego egzaminu d) organ właściwej jednostki dozoru technicznego 38. Przeciążanie UTB w trakcie pracy: a) jest zabronione b) jest dopuszczalne c) jest dopuszczalne ale tylko do 125% udźwigu nominalnego d) jest dopuszczalne ale tylko do 110% udźwigu nominalnego 39. Badania doraźne eksploatacyjne wykonuje się m.in.: a) po każdym usunięciu usterki przez konserwatora b) po wymianie cięgien nośnych c) raz na rok d) po wypadku na urządzeniu 40. Obowiązki obsługującego określone są: a) w instrukcji eksploatacji urządzenia b) w dzienniku konserwacji c) w ustawie o dozorze technicznym d) wszystkie odpowiedzi są poprawne 41. Badania okresowe urządzenia technicznego są wykonywane przez: a) konserwatora posiadającego odpowiednie zaświadczenie kwalifikacyjne b) inspektora organu właściwej jednostki dozoru technicznego c) pracownika serwisu producenta d) operatora 42. Jednostką dozoru technicznego jest: a) Urząd Dozoru Technicznego b) Wojskowy Dozór techniczny c) Transportowy dozór Techniczny d) wszystkie odpowiedzi są prawidłowe 43. Zaświadczenia kwalifikacyjne uprawniające do obsługi urządzeń technicznych ważne są na terenie: a) Rzeczypospolitej Polskiej b) Unii Europejskiej c) nie mają określonego obszaru ważności d) krajów strefy Schengen 44. Obowiązek stosowania środków ochrony indywidualnej przez operatorów urządzeń technicznych wynika z: a) instrukcji eksploatacji producenta b) przepisów BHP c) przepisów wewnątrzzakładowych d) wszystkie odpowiedzi są poprawne 45. Zgodnie z rozporządzeniem Rady Ministrów w sprawie rodzajów urządzeń technicznych podlegających dozorowi technicznemu przepisom dozoru technicznego podlegają: a) dźwigi, żurawie, suwnice, wciągarki i wciągniki b) wózki jezdniowe podnośnikowe z mechanicznym napędem podnoszenia, podesty ruchome c) dźwignice linotorowe, przenośniki kabinowe i krzesełkowe d) wszystkie odpowiedzi są poprawne 46. Instrukcja eksploatacji może nie zawierać: a) informacji o terminach i zakresie przeglądów konserwacyjnych UTB b) podstawowych parametrów i przeznaczenia UTB c) terminów badań technicznych wykonywanych przez jednostkę inspekcyjną d) informacji o sposobie obsługi urządzenia 47. Księga rewizyjna urządzenia musi zawierać: a) zbiór protokołów z badań wykonywanych przez jednostkę inspekcyjną b) dokument, w którym odnotowywane są przeglądy konserwacyjne c) treść aktualnych aktów prawnych d) wykaz uprawnionych operatorów 48. Decyzja wydana przez UDT: a) nie podlega odwołaniu b) może zostać zmieniona przez inspektora PIP c) podlega możliwości odwołania się przez eksploatującego d) każda odpowiedź jest niepoprawna 49. Do egzaminu sprawdzającego kwalifikacje może przystąpić osoba, która: a) złożyła wniosek o sprawdzenie kwalifikacji b) ukończyła 18 lat c) nie ma przeciwwskazań zdrowotnych do obsługi urządzeń technicznych d) wszystkie odpowiedzi są poprawne 50. Po zakończonym badaniu technicznym z wynikiem pozytywnym inspektor UDT: a) przedłuża ważność świadectwa kwalifikacji operatora b) oznakowuje urządzenie naklejką, która jest zezwoleniem na użytkowanie urządzenia c) informuje użytkownika pisemnie w dzienniku konserwacji, że wyraża zgodę na eksploatację urządzenia d) sporządza protokół z wykonanych czynności i wydaje decyzję administracyjną zezwalającą na eksploatację 51. Zaświadczenia kwalifikacyjne: a) są ważne bezterminowo b) są terminowe z okresem ważności uzależnionym od ilości uzyskanych punktów na egzaminie c) są terminowe z okresem ważności zgodnym z zapisami rozporządzenia w sprawie trybu sprawdzenia kwalifikacji d) są ważne przez okres 15 lat 52. Dokonujący przeróbek urządzenia technicznego bez uzgodnienia z organem właściwej jednostki dozoru technicznego: a) podlega karze grzywny lub ograniczenia wolności b) podlega ukaraniu mandatem karnym c) nie podlega karze d) wszystkie odpowiedzi są niepoprawne 53. Kto dopuszcza do eksploatacji urządzenie techniczne bez ważnej decyzji zezwalającej na eksploatację: a) podlega karze grzywny lub ograniczenia wolności b) nie podlega karze, jeżeli nie dojdzie do wypadku c) podlega wyłącznie karze grzywny d) podlega karze więzienia 54. Instrukcja eksploatacji to: a) zbiór informacji niezbędnych do bezpiecznej eksploatacji urządzenia udostępniany przez producenta b) zbiór zaleceń wydawanych przez Urząd Dozoru Technicznego c) instrukcja, którą musi stworzyć użytkownik urządzenia d) wszystkie odpowiedzi są poprawne 55. Zaświadczeń kwalifikacyjnych do obsługi nie wymaga się: a) jeżeli urządzenie jest obsługiwane przez jego właściciela b) jeżeli wszystkie mechanizmy urządzenia mają napęd ręczny c) jeśli urządzenie jest wykorzystywane do celów prywatnych, nie zarobkowych d) od osób po 60 roku życia 56. Osoba posiadająca zaświadczenia kwalifikacyjne może obsługiwać: a) tylko urządzenia wymienione w zakresie uprawnienia b) wszystkie urządzenia podlegające dozorowi technicznemu c) inne urządzenia podlegające dozorowi technicznemu za zgoda pracodawcy d) wszystkie UTB o udźwigu do 3,2 t 57. Obowiązkiem obsługującego urządzenie techniczne jest: a) odmówić obsługi urządzenia, jeżeli wygasła decyzja zezwalająca na eksploatację tego urządzenia b) zawsze stosować się do poleceń przełożonego nakazujących eksploatację urządzenia c) stosować się do zapisów zawartych w instrukcji eksploatacji d) odpowiedź a i c jest prawidłowa 58. Zaświadczenie kwalifikacyjne do obsługi urządzeń technicznych są: a) ważne na terenie Unii Europejskiej b) ważne z dowodem tożsamości c) bezterminowe d) wszystkie odpowiedzi są poprawne 59. Obsługujący który jest świadkiem wypadku ma obowiązek: a) udzielić pomocy ofierze (lub ofiarom) wypadku b) zabezpieczyć miejsce zdarzenia c) powiadomić przełożonego d) wszystkie odpowiedzi są poprawne 60. Formami dozoru technicznego są: a) dozór pełny, dozór uproszczony, dozór ograniczony b) badanie odbiorcze, badanie okresowe i badanie doraźne c) wszystkie odpowiedzi są poprawne d) dokonywać oględzin zewnętrznych urządzenia 61. Zaświadczenia kwalifikacyjne do obsługi urządzeń technicznych podlegających dozorowi technicznemu wydaje: a) właściciel urządzenia b) UOT, TOT, WOT c) PIP d) wszystkie odpowiedzi są niepoprawne 62. Komisja egzaminacyjna powiadamia osobę zainteresowaną o wyniku egzaminu: a) w ciągu 7 dni po egzaminie w formie pisemnej b) bezpośrednio po egzaminie c) w ciągu 14 dni po egzaminie w formie elektronicznej d) listem poleconym lub pocztą elektroniczną po upływie 30 dni roboczych od daty egzaminu 63. Dziennik konserwacji powinien być prowadzony: a) tylko w formie papierowej b) w formie elektronicznej lub papierowej c) tylko w formie elektronicznej d) przez obsługującego 64. Instrukcja stanowiskowa: a) jest zawsze dostarczana wraz z instrukcją obsługi przez producenta urządzenia b) stanowi niepisany zbiór zwyczajów przyjętych w zakładzie pracy c) jest wydawana przez pracodawcę i zawiera szczegółowe wskazówki dotyczące bhp na stanowisku pracy d) nie dotyczy operatorów urządzeń mobilnych 65. Po upływie terminu ważności zaświadczenia kwalifikacyjnego do obsługi urządzenia obsługujący: a) może obsługiwać UTB o ile kontynuuje pracę u tego samego pracodawcy b) może obsługiwać UTB o ile złoży wniosek o wydanie kolejnego zaświadczenia c) może obsługiwać UTB dopiero po uzyskaniu nowego zaświadczenia kwalifikacyjnego d) składa wniosek o przedłużenie terminu ważności zaświadczenia kwalifikacyjnego 66. Przedłużenie ważności zaświadczenie kwalifikacyjnego następuje: a) na pisemny wniosek obsługującego b) automatycznie po upływie terminu ważności zaświadczenia c) na pisemne zgłoszenie pracodawcy obsługującego d) po wcześniejszym zgłoszeniu telefonicznym 67. Udźwig UTB to parametr urządzenia bezpośrednio związany z: a) maksymalną wysokością podnoszonego ładunku b) maksymalną objętością podnoszonego ładunku c) maksymalną masą podnoszonego ładunku d) iloczynem masy i objętości podnoszonego ładunku 68. Informacja dotycząca udźwigu urządzenia może być zawarta: a) w instrukcji eksploatacji b) na tabliczce znamionowej c) na urządzeniu technicznym d) wszystkie odpowiedzi są prawidłowe 69. Prawidłowe określenie jednostki udźwigu to: a) kg b) Pa c) mth d) mm 70. Wysięg podestu to: a) odległość pozioma od osi obrotu do krawędzi kosza b) odległość pionowa od osi obrotu do krawędzi kosza c) odległość od krawędzi kół jezdnych podestu do kosza d) element konstrukcyjny podestu 71. Składnikiem wykresu pola pracy podestu nie jest: a) wysokość podnoszenia b) udźwig podestu ruchomego c) prędkość ruchów roboczych d) wysięg 72. O ile wytwórca nie określi inaczej przeglądy konserwacyjne podestów przejezdnych powinny być wykonywane nie rzadziej niż: a) co 30 dni b) co 180 dni c) co 1 rok d) po zgłoszeniu przez operatora 73. Badania okresowe podestów przejezdnych wykonywane są: a) co 30 dni b) co 2 lata c) co 1 rok d) po zgłoszeniu przez operatora 74. Operatorem podestu ruchomego sterowanego z platformy roboczej może być osoba która: a) posiada przynajmniej średnie wykształcenie techniczne b) posiada ważne badania lekarskie zezwalające na pracę na wysokości c) ukończyła 18 lat d) odpowiedź b i c jest prawidłowa 75. W przypadku podestów gdzie dopuszczalna ilość osób mogących przebywać na platformie roboczej jest większa niż 2, zaświadczenie kwalifikacyjne do obsługi musi posiadać: a) minimum 1 osoba b) minimum 2 osoby (osoba druga jako rezerwa) c) każda osoba znajdująca się na podeście d) żadna z osób nie musi posiadać zaświadczenia kwalifikacyjnego 76. W oparciu o przedstawiony rysunek określ maksymalny udźwig podestu: a) 165 kg b) 225 kg c) 565 kg d) 450 kg 77. W oparciu o przedstawiony rysunek określ maksymalną ilość osób, które mogą przebywać na platformie roboczej: a) zawsze 6 osób b) zawsze 5 osób c) 6 osób ale tylko na platformie z niewysuniętymi pomostami roboczymi d) 7 osób (7 x 80 kg - 560 kg) 78. W oparciu o przedstawiony rysunek określ poprawne parametry pracy podestu: a) udźwig maksymalny 225 kg b) dopuszczalna ilość osób na podeście z rozłożonymi pomostami - 5 c) udźwig maksymalny 565 kg d) odpowiedź b i c jest prawidłowa 79. Przedstawiony rysunek określa: a) ilość osób mogących pracować na platformie roboczej b) miejsce zaczepu szelek bezpieczeństwa c) miejsce uchwytu operatora podczas wejścia na platformę roboczą d) obowiązek utrzymania przez operatora prostej postawy podczas obsługi podestu 80. Przedstawiony rysunek określa: a) maksymalny udźwig podestu wyrażona w niutonach b) maksymalną prędkość podestu c) maksymalną dopuszczalną siłę poziomą z jaką operator może oddziaływać na powierzchnię zewnętrzną podczas wykonywanych prac d) maksymalna dopuszczalną siłę wiatru 81. Przedstawiony rysunek określa: a) maksymalny udźwig podestu wyrażona w niutonach b) maksymalna dopuszczalną siłę wiatru c) maksymalny wysięg boczny d) maksymalną dopuszczalną siłę poziomą z jaką operator może oddziaływać na powierzchnię zewnętrzną podczas wykonywanych prac 82. Paląca się lampka ostrzegawcza przy pokazanym symbolu graficznym występującym w niektórych podestach oznacza: a) wystąpienie awarii sterowania b) przekroczenie dopuszczalnego udźwigu podestu c) utratę masy balastu podestu d) wszystkie odpowiedzi są niepoprawne 83. Podest oznaczony przedstawionym rysunkiem jest: a) przeznaczony do pracy w dowolnym miejscu b) przeznaczony do pracy wyłącznie wewnątrz pomieszczeń c) przeznaczony do pracy na zewnątrz ale w warunkach bezwietrznych d) wyposażony w urządzenie do pomiaru prędkości wiatru 84. Przedstawiony rysunek określa: a) maksymalną prędkość jazdy podestu b) maksymalne dopuszczalne nachylenie podłoża na którym pracuje podest c) maksymalną dopuszczalną prędkość wiatru d) maksymalną dopuszczalną siłę poziomą z jaką operator może oddziaływać na powierzchnię zewnętrzną podczas wykonywanych prac 85. Wybór pozycji A w przedstawionym rysunku oznacza: a) załączenie mechanizmu podnoszenia b) załączenie mechanizmu jazdy c) załączenie pulpitu sterującego znajdującego się na platformie roboczej d) załączenie zapłonu w podestach z silnikiem spalinowym 86. Załączenie mechanizmu jazdy podestu nożycowego realizowane jest poprzez wychylenie dźwigni sterującej po wcześniejszym wciśnięciu przycisku oznaczonego literą: a) A b) B c) C d) D 87. Załączenie mechanizmu podnoszenia podestu nożycowego realizowane jest poprzez wychylenie dźwigni sterującej po wcześniejszym wciśnięciu przycisku oznaczonego literą: a) A b) B c) C d) D 88. Który z oznaczonych piktogramów oznacza funkcję skrętu kół jezdnych podestu: a) A b) B c) C d) D 89. Na maksymalny udźwig podestu z przedstawionego rysunku składa się: a) 80 kg plus 1 osoba b) 250 kg w tym 2 osoby c) 250 kg plus 2 osoby d) 250 kg do wysokosśi nie większej niż 12 m 90. Przedstawiony rysunek określa: a) środek ciężkości platformy roboczej b) poszczególne prędkości ruchów roboczych w skali od 1 do 5 c) aktualne wskazanie wypoziomowania podestu d) wszystkie odpowiedzi są niepoprawne 91. Wychylenie dźwigni sterującej w kierunku A powoduje: a) załączenie mechanizmu obrotu platformy roboczej b) załączenie mechanizmu skrętu kół jezdnych c) załączenie mechanizmu obrotu podestu d) załączenie mechanizmu jazdy podestu 92. Wychylenie dźwigni sterującej w kierunku B powoduje: a) załączenie mechanizmu podnoszenia wysięgnika pomocniczego b) załączenie mechanizmu podnoszenia wysięgnika głównego c) załączenie mechanizmu obrotu podestu d) załączenie mechanizmu jazdy podestu 93. Wciśnięcie przycisków oznaczonych literą C znajdujących się na dźwigni sterującej powoduje: a) załączenie mechanizmu podnoszenia wysięgnika głównego b) załączenie mechanizmu teleskopowania c) załączenie mechanizmu obrotu podestu d) załączenie mechanizmu jazdy podestu 94. Przedstawiony symbol określa: a) przycisk załączający mechanizm jazdy b) przycisk załączający mechanizm podnoszenia c) maksymalną wysokość podnoszenia d) zakaz poruszania się podestem przy podniesionej platformie 95. Mechaniczny element bezpieczeństwa zabezpieczający podest nożycowy przed skutkami uszkodzenia kół jezdnych podczas jazdy z uniesioną platformą to oznaczony na rysunku element: a) A b) B c) C d) wszystkie odpowiedzi są niepoprawne 96. Mechaniczny element bezpieczeństwa zabezpieczający podest nożycowy przed skutkami uszkodzenia kół jezdnych podczas jazdy z uniesioną platformą to: a) płozy podestu b) podpory podestu c) barierki bezpieczeństwa d) kliny serwisowe 97. Akumulatory podestów przejezdnych elektrycznych: a) są źródłem zasilania układów b) zapewniają stateczność podestu c) decydują o prędkości ruchów roboczych d) odpowiedź a i b jest prawidłowa 98. Parametry podane przez producenta na tabliczce znamionowej akumulatorów to: a) napięcie znamionowe [V] b) pojemność [Ah] c) masa własna [kg] d) wszystkie odpowiedzi są poprawne 99. Wyłącznik bezpieczeństwa STOP jest: a) zabezpieczony przed przypadkowym zadziałaniem b) umieszczony blisko operatora c) koloru czerwonego d) odpowiedź b i c jest prawidłowa 100. Wyłącznik bezpieczeństwa STOP: a) jest koloru czerwonego i jego odblokowanie powinno przebiegać w sposób zamierzony b) jest dowolnego koloru c) z chwilą zwolnienia nacisku przycisk powraca do położenia pierwotnego d) nie powinien wystawać poza swoją obudowę 101. Wyłącznik bezpieczeństwa STOP: a) wyłącza działanie mechanizmów jazdy b) wyłącza działanie mechanizmów podnoszenia c) uruchamia ogranicznik udźwigu d) odpowiedź a i b jest prawidłowa 102. Jednym ze sposobów zabezpieczenia podestu przed przypadkowym uruchomieniem dźwigni sterujących jest: a) wyposażenie dźwigni sterujących w czuwaki ręczne b) jednoczesne załączenie dwóch elementów sterowych c) wyposażenie platformy w czuwaki nożne d) wszystkie odpowiedzi są prawidłowe 103. Prędkość jazdy podestu ruchomego przejezdnego wolnobieżnego: a) jest stała b) jest zmienna a jej prędkość wybiera operator c) nie ma wpływu na bezpieczeństwo pracy d) zależy od masy obciążonej platformy 104. Na wartość prędkości jazdy podestu ruchomego wolnobieżnego ma wpływ: a) masa obciążonej platformy b) wysokość na jakiej znajduje się platforma robocza c) umiejętności operatora d) kąt nachylenia wzniesienia 105. Podpory podestów ruchomych mają za zadanie: a) zwiększyć stateczność b) wypoziomować podest c) zwiększyć wysokość podnoszenia podestu d) odpowiedź a i b jest prawidłowa 106. Kolumna obrotowa podestu: a) służy do zmiany wysięgu b) ogranicza pole pracy podestu c) służy do podnoszenia ładunków d) umożliwia obracanie wysięgnika względem osi pionowej 107. Jaka jest różnica pomiędzy wysięgiem a wysięgnikiem? a) wysięg to parametr techniczny a wysięgnik to element konstrukcji b) wysięg i wysięgnik określają to samo c) wysięg to element bezpieczeństwa a wysięgnik to element konstrukcji d) wysięgnik jest blachownicowy a wysięg kratownicowy 108. Zmiana wysięgu może być realizowane przez: a) mechanizm podnoszenia i opuszczania wysięgnika b) mechanizm obrotu c) mechanizm teleskopowania d) odpowiedzi a i c są prawidłowe 109. Wysięgnik teleskopowy podestu: a) posiada mechaniczny układ zmiany wysięgu b) składa się z kilku członów c) umożliwia bezpieczną pracę przy liniach elektroenergetycznych d) odpowiedź a i b jest prawidłowa 110. Zawór zwrotny sterowany (zamek hydrauliczny) w układzie hydraulicznym podestu zapewnia ochronę przed: a) nadmiernym wzrostem ciśnienia w układzie hydraulicznym b) skutkami pęknięcia przewodu hydraulicznego c) nadmiernym dławieniem strumienia d) dzieleniem strumienia na poszczególne obwody układu hydraulicznego 111. Jaki zawór zabezpieczający znajduje się w układzie hydraulicznym podpór? a) zawór zwrotny sterowany (zamek hydrauliczny) b) zawór powrotny c) zawór upustowy d) zawór bezpieczeństwa 112. Zawory zwrotne (zamki hydrauliczne) montuje się w układach: a) mechanizmu podpór b) mechanizmu podnoszenia c) mechanizmu zmiany wysięgu d) wszystkie odpowiedzi są prawidłowe 113. Elementem wytwarzającym ciśnienie w układzie hydraulicznym podestu jest: a) silnik hydrauliczny b) pompa hydrauliczna c) kompresor d) sprężarka 114. Zawór przelewowy instalowany w układzie hydraulicznym podestu: a) zabezpiecza przed nadmiernym wzrostem ciśnienia b) utrzymuje siłownik w stałej pozycji c) zabezpiecza układ podnoszenia przed opadaniem d) jest elementem zasilającym układ hydrauliczny 115. Hydrauliczne elementy bezpieczeństwa to: a) zawór przelewowy, zawory zwrotno - dławiące b) pompa, rozdzielacz, siłownik teleskopowania c) silnik obrotu, blokada zerowa, zawór kulowy d) rozdzielacz, zawory kulowe, odboje 116. Zawór bezpieczeństwa w układzie hydraulicznym zabezpiecza: a) układ hydrauliczny oraz pompę przed uszkodzeniem za skutek wzrostu ciśnienia b) przed przekroczeniem udźwigu nominalnego c) przed utratą stateczności d) przed niekontrolowanym ruchem podestu 117. Zamki hydrauliczne instalowane w układach hydraulicznych podestów: a) zabezpieczają układ przed skutkami nadmiernego wzrostu ciśnienia oleju w obwodach hydraulicznych b) zabezpieczają przed nieuprawnioną obsługą - zamykają dostęp do rozdzielacza ruchów roboczych c) zabezpieczają siłowniki przed skutkami pęknięcia przewodu hydraulicznego d) zamykają dostęp do pulpitu sterującego 118. Rozdzielacz hydrauliczny instalowany jest w układzie w celu: a) dławienia ciśnienia w poszczególnych obwodach b) zabezpieczenia układu przed nadmiernym wzrostem ciśnienia c) kierowania przepływu czynnika roboczego do poszczególnych obwodów d) wszystkie odpowiedzi są nieprawidłowe 119. Elementem wykonawczym w układzie hydraulicznym podestu jest: a) siłownik mechanizmu podnoszenia b) silnik hydrauliczny c) siłownik mechanizmu teleskopowania d) wszystkie odpowiedzi są poprawne 120. Elementem chroniącym układ hydrauliczny przed nadmiernym wzrostem ciśnienia jest: a) zawór zwrotny sterowany b) zawór dławiący c) rozdzielacz hydrauliczny d) zawór przelewowy 121. Sterowanie rozdzielaczem w układzie hydraulicznym podestu może być realizowane w sposób: a) pośredni b) bezpośredni c) mieszany d) wszystkie odpowiedzi są prawidłowe 122. Zawór przelewowy w układzie hydraulicznym podestu podczas nadmiernego wzrostu ciśnienia kieruje olej: a) do zbiornika oleju b) na zewnątrz układu hydraulicznego c) do wolnej sekcji rozdzielacza d) do akumulatora hydraulicznego 123. W którym miejscu montowane są zawory zwrotne sterowane (tzw. zamki hydrauliczne)? a) na siłownikach b) w pulpicie sterującym pracą podpór c) bezpośrednio za pompą hydrauliczną d) na rozdzielaczu hydraulicznym 124. Kryteria i warunki poprawnego wykonania prób układu hydraulicznego ustala: a) wytwórca urządzenia b) konserwator c) operator d) eksploatujący 125. Gęstość oleju hydraulicznego w temperaturze ujemnej: a) maleje b) wzrasta c) temperatura nie ma wpływu na gęstość oleju d) pozostaje bez zmian 126. Co to jest "krawędź wywrotu"? a) element konstrukcyjny wyznaczony przez projektanta podestu b) skrajna krawędź podstawy podestu c) element zabezpieczający przed skutkami wywrotu d) linia wyznaczona przez punkty podparcia podestu 127. Dopuszczalna prędkość wiatru podczas pracy podestem wynosi: a) zawsze 10 m/s b) zawsze 12,5 m/s c) tyle, ile poda producent w instrukcji obsługi d) dowolną wartość, ponieważ nie ma wpływu na stateczność podestu 128. Podesty ruchome są przeznaczone do: a) wykonywania prac na wysokości b) przenoszenia ładunków c) transportu poziomego ludzi i ładunku d) tylko do transportu ładunków 129. Zabezpieczenia typu mechanicznego spotykane w podestach ruchomych przejezdnych to: a) czujnik przechyłu, wyłącznik STOP, sygnał dźwiękowy b) zapadki, zgarniacze, kleszcze szynowe c) barierki, krawężniki, osłony d) łapy oporowe, sprzęgła, reduktory 130. Zabezpieczenia typu elektrycznego spotykane w podestach ruchomych przejezdnych to: a) stacyjka, łączniki STOP, łączniki krańcowe b) zapadki, zgarniacze, kleszcze szynowe c) kondensatory, wzmacniacze, rezystory d) falowniki, przekaźniki, styczniki 131. Korekty rozstawienia podpór można dokonać: a) w czasie pracy, gdy występuje taka konieczność bez potrzeby opuszczenia platformy roboczej b) gdy prędkość wiatru nie przekracza połowy wartości dopuszczalnej c) tylko w pozycji, kiedy wszystkie elementy wysięgnika kosza są całkowicie złożone d) kiedy pracownik w koszu, na wysokości, nie wykonuje pracy 132. Awaryjne opuszczanie w podestach wolnobieżnych nożycowych realizowane jest najczęściej: a) poprzez zastosowanie drugiego podestu o podobnych parametrach b) bezpośredniego przesterowania zaworu awaryjnego opuszczania za pomocą cięgna c) poprzez zastosowanie dodatkowej pompy hydraulicznej d) producenci podestów nożycowych nie przewidują konieczności opuszczania awaryjnego 133. Czujnik złożenia wysięgnika podestu montowanego na pojeździe w pozycję transportową zabezpiecza przed: a) ruchem mechanizmu obrotu gdy wysięgnik jest w pozycji rozłożonej b) ruchem mechanizmu rozkładania podpór gdy wysięgnik jest w pozycji rozłożonej c) nadmiernym naciskiem wysięgnika na kozioł transportowy d) rozłączeniem napędu pompy głównej podestu 134. Kontakty poprawnego rozłożenia podpór w kierunku dół w podeście przejezdnym: a) uniemożliwiają rozłożenie wysięgnika, gdy jedna z podpór nie została poprawnie rozłożona b) załączają światła ostrzegawcze c) dokonują ciągłego pomiaru ciśnienia w układzie podpór d) wszystkie odpowiedzi są niepoprawne 135. Narzędzia i elementy znajdujące się na platformie roboczej: a) muszą być zabezpieczone przed spadnięciem b) muszą być równomiernie rozłożone c) muszą być zabezpieczone przed przesunięciem d) wszystkie odpowiedzi sa prawidłowe 136. Na platformie roboczej mogą znajdować się: a) wszystkie narzędzia, które są na wyposażeniu osoby wykonującej pracę b) tylko te narzędzia które są niezbędne do wykonania pracy c) elementy o masie przekraczającej udźwig podestu d) elementy o gabarytach przekraczających powierzchnię platformy 137. Która z czynności jest szczególnie niebezpieczna podczas wykonywania prac na maksymalnej wysokości? a) wiercenie otworów w suficie b) wiercenie otworów w ścianie c) montowanie elementów o dużej powierzchni d) odpowiedź b i c jest prawidłowa 138. Która z czynności jest szczególnie niebezpieczna podczas wykonywania prac na maksymalnym wysięgu? a) wiercenie otworów w suficie b) wiercenie otworów w ścianie c) kucie w ścianie d) odpowiedź b i c jest prawidłowa 139. Bezpieczna odległość rozstawienia podestu od krawędzi wykopu zależy od: a) głębokości wykopu b) siły wiatru c) odpowiedniej widoczności d) wszystkie odpowiedzi są prawidłowe 140. Bezpieczna odległość rozstawienia podestu od krawędzi wykopu zależy od: a) rodzaju podłoża b) warunków atmosferycznych c) głębokości wykopu d) odpowiedź a i c jest prawidłowa 141. Rozstawienie podestu przy krawędzi wykopu: a) jest możliwe za zgodą konserwatora b) jest możliwe przy słabym wietrze c) nie wpływa na bezpieczną pracę podestu d) jest dopuszczalne pod warunkiem zachowania bezpiecznej odległości 142. W oparciu o przedstawiony rysunek wskaż poprawny pomiar bezpiecznej odległości podestu od krawędzi wykopu: a) A b) B c) C d) D 143. Bezpieczna odległość pracy podestu od linii elektroenergetycznej: a) jest stała i wynosi 20 m b) zależy od napięcia linii c) maleje przy wysokich słupach d) zależy od wilgotności powietrza 144. Bezpieczna odległość podestu od skrajnych przewodów linii elektroenergetycznych o napięciu znamionowym od 1 do 15 kV wynosi: a) 3 m b) 15 m c) 5 m d) 20 m 145. Bezpieczna odległość podestu od skrajnych przewodów linii elektroenergetycznych o napięciu znamionowym od 30 do 110 kV wynosi: a) 3 m b) 15 m c) 10 m d) 30 m 146. Bezpieczna odległość podestu od skrajnych przewodów linii elektroenergetycznych o napięciu znamionowym od 15 do 30 kV wynosi: a) 10 m b) 15 m c) 5 m d) 20 m 147. W oparciu o przedstawiony rysunek wskaż prawidłowy pomiar minimalnej odległości od linii elektroenergetycznych: a) A b) B c) C d) D 148. Praca podestu w pobliżu linii elektroenergetycznej w odległości mniejszej od wartości dopuszczalnej jest: a) zabroniona b) dozwolona pod warunkiem uzgodnienia jej szczegółowych warunków pracy z właścicielem linii c) dozwolona pod warunkiem uzgodnienia jej szczegółowych warunków pracy z UDT d) dozwolona pod warunkiem operowaniem podestem ze zmniejszonymi prędkościami pracy 149. Wchodzenie lub schodzenie na/z platformy roboczej możliwe jest: a) gdy platforma robocza znajduje się w dolnym położeniu spoczynkowym b) gdy platforma robocza znajduje się w dowolnym położeniu c) gdy platforma robocza znajduje się na dowolnej wysokości w położeniu umożliwiającym swobodne opuszczenie platformy d) gdy operator uzna, że wykonanie tej czynności nie stwarza zagrożenia 150. W oparciu o przedstawiony rysunek określ prawidłowe parametry podestu: a) maksymalny udźwig podestu przy maksymalnym dopuszczalnym pochyleniu 80 kg b) maksymalna wysokość robocza 12 m c) podest przeznaczony do pracy na zewnątrz d) maksymalna prędkość podestu 12 m/s 151. W oparciu o przedstawiony rysunek określ prawidłowe parametry podestu: a) maksymalny udźwig 250 kg plus 2 osoby b) dopuszczalna ilość osób - 2 c) maksymalny udźwig podestu przy maksymalnym dopuszczalnym pochyleniu 80 kg d) maksymalna wysokość robocza 12 m 152. Zapewnienie odpowiedniego poziomu elektrolitu w akumulatorach podestów przejezdnych elektrycznych należy do obowiązku: a) konserwatora b) eksploatującego c) operatora d) mechanika zakładowego 153. W ramach obsługi codziennej i oceny akumulatorów podestów przejezdnych elektrycznych operator sprawdza: a) poziom elektrolitu b) stopień naładowania c) sposób zamocowania d) wszystkie odpowiedzi są prawidłowe 154. Operator po zauważeniu podczas jazdy palącej się lampki kontrolnej ciśnienia oleju silnika powinien: a) zjechać w bezpieczne miejsce, opuścić ładunek, wyłączyć silnik b) może kontynuować jazdę jeśli stan oleju jest prawidłowy c) nie musi podejmować żadnych działań d) odpowiedź a i b jest prawidłowa 155. Świecąca się lub migająca lampka serwisowa oznacza że: a) dalsza praca podestem może stanowić zagrożenie, należy sprawdzić zapisy w instrukcji producenta b) można obsługiwać podest ze zmniejszonymi prędkościami c) operator nie musi podejmować żadnych działań d) odpowiedź a i b jest prawidłowa 156. Sprawne dźwignie sterujące: a) po zwolnieniu nacisku powinny wracać do pozycji neutralnych samoczynnie b) mogą nie mieć oznaczeń gdy operator wie do czego służą c) powinny realizować kierunki ruchów zgodne z oznaczeniami d) odpowiedź a i c jest prawidłowa 157. W przypadku podestów wyposażonych w dwa lub więcej miejsc do sterowania: a) możliwe jest sterowania z wszystkich miejsc jednocześnie b) możliwe jest sterowanie tylko z jednego miejsca w tym samym czasie c) łącznik STOP może być aktywowany w każdym miejscu sterowania d) odpowiedź b i c jest prawidłowa 158. W ramach obsługi codziennej operator sprawdza czy: a) funkcje zmiany prędkości żółw/zając działają prawidłowo b) sposób wychylenia dźwigni sterującej wpływa na zwiększenie/zmniejszenie prędkości jazdy c) następuje automatyczne zmniejszenie prędkości jazdy gdy platforma zostanie uniesiona na określoną w dokumentacji wysokości d) wszystkie odpowiedzi są prawidłowe 159. Sprawny układ bezpieczeństwa z chwilą rozłożenia podpór w podestach nożycowych powinien: a) załączyć ogranicznik udźwigu b) wyłączyć mechanizm podnoszenia podestu c) wyłączyć mechanizm jazdy podestu d) wszystkie odpowiedzi są nieprawidłowe 160. Bezpieczny sposób sprawdzenia działania zaworu przelewowego w podestach przeprowadza się: a) z obciążeniem nominalnym na wysokości około 1/2 wysokości podnoszenia b) z wyłączoną pompą hydrauliczną, bez obciążenia c) z załączoną pompą, bez obciążenia wychylając i przytrzymując dźwignię jednego z mechanizmu znajdującego się w skrajnym położeniu d) odpowiedź b i c jest prawidłowa 161. O ile wytwórca nie określi inaczej maksymalna wartośc opadania platformy roboczej wynosi: a) 0 cm , czyli platforma nie może opadać b) 10 cm w czasie 1 godziny c) 100 cm w czasie 1 godziny d) nie jest określona, ponieważ szczelność nie jest kryterium wpływającym na bezpieczeństwo eksploatacji podestu ruchomego 162. Podczas pracy mechanizmem obrotu stateczność podestu: a) jest niezmienna ponieważ stateczność podestu zależy wyłącznie od masy znajdującej się w koszu b) jest niezmienna ponieważ współczynnik stateczności zależy wyłącznie od wysięgu podestu c) jest zmienia ponieważ zmienia się odległość usytuowania układu wysięgnikowego i platformy od krawędzi wywrotu d) jest niezmienna ponieważ stateczność podestu zależy wyłącznie od jego masy 163. Niebezpieczne ruchy podestu wysięgnikowego które są wyłączane w przypadku przeciążenia to: a) podnoszenie wysięgnika b) teleskopowanie - wysuwanie wysięgnika c) obrót kosza d) wszystkie odpowiedzi są prawidłowe 164. Podczas oceny stanu technicznego pulpitu sterującego podestu operator sprawdza m.in.: a) poprawność oznaczeń dźwigni i przycisków sterujących b) wartość nastaw sprężyn dźwigni sterujących c) wartość natężenia oświetlenia pulpitu sterującego d) odpowiedź a i c jest prawidłowa 165. Wyciek zewnętrzny oleju w układzie hydraulicznym podestu będzie dyskwalifikował urządzenie z bezpiecznej eksploatacji gdy: a) widoczne elementy układu hydraulicznego będą wykazywały objaw pocenia się b) będą widoczne odrywające się krople z któregokolwiek elementu hydraulicznego c) na skutek przecieków wewnętrznych składowa wielkość opadania kosza przekroczy wartości określone w instrukcji eksploatacji d) odpowiedz a i b jest prawidłowa 166. Nieszczelność w układzie hydraulicznym podestów może się objawiać: a) przeciekiem wewnętrznym i niekontrolowanym opadaniem platformy b) zwiększoną prędkością ruchów roboczych c) brak jednoznacznych kryteriów szczelności d) odpowiedz a i b jest prawidłowa 167. Podczas oceny stanu technicznego podestu przed rozpoczęciem pracy operator: a) dokonuje oceny stanu w zakresie zgodnym z zapisami instrukcji eksploatacji b) wykonuje próby z przeciążeniem 125 % c) w przypadku negatywnej oceny stanu technicznego odmawia rozpoczęcia pracy d) odpowiedź a i c jest prawidłowa 168. Podczas oceny stanu technicznego podestu przed rozpoczęciem pracy operator: a) sprawdza stan wyposażenia podestu b) dokonuje oceny wizualnej stanu technicznego podestu c) wykonuje próby ruchowe bez obciążenia i z obciążeniem nominalnym d) wszystkie odpowiedzi są poprawne 169. Podczas oceny stanu technicznego układu hydraulicznego operator: a) wykonuję próbę działania zaworu przelewowego b) sprawdza stan lepkości oleju hydraulicznego c) sprawdza szczelność wewnętrzną i zewnętrzną układu d) odpowiedź a i c jest prawidłowa 170. "Skokowy" ruch mechanizmu podnoszenia może być spowodowany: a) zbyt niskim poziomem oleju w układzie hydraulicznym b) nadmierną korozja gładzi tłoków c) uszkodzoną sekcją rozdzielacz sterującego d) uszkodzonym wężem hydraulicznym zasilającym siłownik podnoszenia 171. Stan poziomu oleju w układzie hydraulicznym operator sprawdza: a) zawsze przed rozpoczęciem i po zakończeniu pracy b) 1 raz w miesiącu c) zgodnie z zaleceniami zawartymi w instrukcji eksploatacji d) zgodnie z zaleceniami zawartymi w protokole z badań okresowych 172. O ile wytwórca nie określi inaczej maksymalna dopuszczalna wartość wsunięcia się podpory podczas próby szczelności wynosi: a) 10 mm b) 4 mm c) 2 % maksymalnego wysięgu podestu d) 4 % udźwigu nominalnego wyrażone w mm 173. Podczas uwalniania uwięzionej osoby z platformy roboczej należy: a) jak najszybciej opuścić platformę roboczą na ziemię b) opuścić platformę w oparciu o instrukcję awaryjnego opuszczania dołączoną do pdestu c) postępować zgodnie z wolą przełożonego d) ewakuować obsługę za pomocą innego podestu 174. Zwiększanie przez operatora wysokości roboczej podestu nożycowego: a) jest dopuszczalne przy użyciu palety EURO odpowiednio zamocowanej do barierek podestu b) jest dopuszczalne przy użyciu dodatkowej drabiny o wysokości nieprzekraczającej 3m c) jest dopuszczalne przy użyciu atestowanego rusztowania pod warunkiem, że zajmuje ono max 75% powierzchni platformy d) jest zabronione 175. Układanie podkładów pod podpory podestu: a) zwiększa bezpieczeństwo pracy podestu b) nie ma wpływu na bezpieczeństwo pracy podestu c) zwiększa powierzchnię nacisku wywieranego przez podpory na podłożę d) odpowiedź a i c jest prawidłowa 176. Przed rozstawieniem podestu w nowym miejscu pracy operator powinien: a) zapoznać się rodzajem podłoża na którym ma pracować podest b) sprawdzić miejsce pracy pod kątem możliwości wystąpienia studzienek i kanałów ściekowycha c) zwiększa powierzchnię nacisku wywieranego przez podpory na podłożę d) wszystkie odpowiedzi są prawidłowe 177. O ile wytwórca nie określi inaczej próbę zamków hydraulicznych w podestach ze sterowaniem bezpośrednim należy wykonać: a) przy rozłożonym układzie wyposażonym w zamek hydrauliczny i wyłączonej pompie hydraulicznej po wysterowaniu rozdzielacza siłownik nie powinien się składać b) podczas pracy siłownika obserwując pracę zaworu c) sprawdzając czy przy maksymalnym wysunięciu siłownika możemy sterować podnoszeniem i opuszczaniem platformy d) obserwując, czy podczas opuszczania i podnoszenia ciśnienie w układzie hydraulicznym jest takie samo 178. Próbę zamków hydraulicznych w podestach ze sterowaniem pośrednim wykonuje się: a) przy obciążonym siłowniku i wyłączonej pompie hydraulicznej po wychyleniu dźwigni sterujących siłownik nie powinien się składać b) podczas pracy siłownika obserwujemy pracę zaworu c) zgodnie z wytycznymi zawartymi w instrukcji eksploatacji d) obserwujemy, czy podczas opuszczania i podnoszenia ciśnienie w układzie hydraulicznym jest takie samo 179. W oparciu o przedstawiony wykres pola pracy wskaż poprawne parametry pracy podestu: a) maksymalna wysokość podnoszenia 20,5 m b) maksymalna wysokość robocza 22,5 m c) maksymalny udźwig podestu 200 kg d) wszystkie odpowiedzi są prawidłowe 180. W oparciu o przedstawiony wykres pola pracy wskaż poprawne parametry pracy podestu: a) maksymalny wysięg podestu obciążonego ładunkiem 200 kg - 13 m b) maksymalna wysokość podnoszenia 23 m c) praca w pełnym zakresie obrotu d) dopuszczalna ilość osób na platformie roboczej - 3 181. W oparciu o przedstawiony wykres pola pracy wskaż poprawne parametry pracy podestu: a) maksymalny zakres obrotu 280° b) maksymalny wysięg podestu obciążonego ładunkiem 80 kg - 13, 5 m c) maksymalny wysięg podestu obciążonego ładunkiem 200 kg - 10 m d) odpowiedź b i c jest prawidłowa 182. W oparciu o przedstawiony wykres pola pracy określ maksymalne dopuszczalne obciążenie platformy roboczej uniesionej na wysokość 15 m i wysięgu 11 m: a) 360 kg b) 280 kg c) 200 kg d) 80 kg 183. W oparciu o przedstawiony wykres pola pracy określ maksymalne dopuszczalne obciążenie platformy roboczej uniesionej na wysokość 15 m i wysięgu 7 m: a) 360 kg b) 280 kg c) 200 kg d) 80 kg 184. W oparciu o przedstawiony wykres pola pracy określ maksymalne dopuszczalne obciążenie platformy roboczej uniesionej na wysokość 22 m i wysięgu 4 m: a) 360 kg b) 280 kg c) 200 kg d) 80 kg 185. W oparciu o przedstawiony wykres pola pracy określ maksymalne dopuszczalne obciążenie platformy roboczej uniesionej na wysokość 22 m i wysięgu 9 m: a) 360 kg b) 280 kg c) 200 kg d) praca niedozwolona ze względu na przekroczenia dopuszczalnych parametrów pracy 186. W oparciu o przedstawiony wykres pola pracy wskaż maksymalny wysięg platformy roboczej obciążonej masą 200 kg: a) 9 m b) 10 m c) 11 m d) 12 m 187. W oparciu o przedstawiony wykres pola pracy wskaż poprawne parametry pracy podestu: a) maksymalna wysokość podnoszenia 25 m b) maksymalny wysięg podstawy obciążonej masą 230 kg - 11 m c) maksymalny udźwig podestu na wysięgu 13 m - 100 kg d) wszystkie odpowiedzi są prawidłowe 188. W oparciu o przedstawiony wykres pola pracy wskaż poprawne parametry pracy podestu: a) maksymalny wysięg podestu obciążonego ładunkiem 220 kg - 13 m b) praca podestu bez podpór c) maksymalna wysokość robocza 27 m d) dopuszczalna ilość osób na platformie roboczej - 4 189. W oparciu o przedstawiony wykres pola pracy wskaż poprawne parametry pracy podestu: a) maksymalny udźwig podestu 230 kg b) maksymalny wysięg podestu obciążonego ładunkiem 80 kg - 13 m c) maksymalna wysokość robocza podestu obciążonego ładunkiem 200 kg - 20 m d) odpowiedź b i c jest prawidłowa 190. W oparciu o przedstawiony wykres pola pracy określ maksymalne dopuszczalne obciążenie platformy roboczej uniesionej na wysokość 17 m i wysięgu 11 m: a) 230 kg b) 200 kg c) 100 kg d) praca niedozwolona ze względu na przekroczenia dopuszczalnych parametrów pracy 191. W oparciu o przedstawiony wykres pola pracy określ maksymalne dopuszczalne obciążenie platformy roboczej uniesionej na wysokość 18 m i wysięgu 8 m: a) praca niedozwolona ze względu na przekroczenia dopuszczalnych parametrów pracy b) 230 kg c) 200 kg d) 80 kg 192. W oparciu o przedstawiony wykres pola pracy określ maksymalne dopuszczalne obciążenie platformy roboczej uniesionej na wysokość 22 m i wysięgu 4 m: a) praca niedozwolona ze względu na przekroczenia dopuszczalnych parametrów pracy b) 230 kg c) 200 kg d) 80 kg 193. W oparciu o przedstawiony wykres pola pracy określ maksymalne dopuszczalne obciążenie platformy roboczej uniesionej na wysokość 26 m i wysięgu 7 m: a) 100 kg b) 200 kg c) 230 kg d) praca niedozwolona ze względu na przekroczenia dopuszczalnych parametrów pracy 194. W oparciu o przedstawiony wykres pola pracy wskaż maksymalny wysięg platformy roboczej obciążonej masą 200 kg uniesionej na wysokość 22 m: a) 4,7 m b) 6,7 m c) 8,7 m d) 10,7 m 195. W oparciu o przedstawiony wykres pola pracy wskaż maksymalny wysięg platformy roboczej obciążonej masą 230 kg uniesionej na wysokość 17 m: a) 4 m b) 6 m c) 8 m d) 10 m 196. W oparciu o przedstawiony wykres pola pracy wskaż maksymalny wysięg platformy roboczej obciążonej masą 100 kg uniesionej na wysokość 14 m: a) 6 m b) 7 m c) 9 m d) 13 m 197. W oparciu o przedstawiony wykres pola pracy wskaż maksymalny wysięg platformy roboczej obciążonej masą 100 kg uniesionej na wysokość 18 m: a) 6 m b) 8 m c) 10 m d) 12 m 198. W oparciu o przedstawiony wykres pola pracy wskaż poprawne parametry pracy podestu: a) maksymalna wysokość podnoszenia 21 m b) maksymalny wysięg podstawy obciążonej masą 215 kg - 8,2 m c) maksymalny udźwig podestu na wysięgu 11 m - 80 kg d) wszystkie odpowiedzi są prawidłowe 199. W oparciu o przedstawiony wykres pola pracy wskaż poprawne parametry pracy podestu: a) maksymalny wysięg podestu obciążonego ładunkiem 115 kg - 11,8 m b) maksymalny udźwig podestu 80 kg c) praca na podporach d) maksymalna wysokość robocza 19,2 m 200. W oparciu o przedstawiony wykres pola pracy wskaż poprawne parametry pracy podestu: a) maksymalny udźwig podestu 215 kg b) maksymalny wysięg podestu obciążonego ładunkiem 215 kg - 11,8 m c) maksymalna wysokość robocza podestu obciążonego ładunkiem 215 kg - 21,2 m d) odpowiedź b i c jest prawidłowa 201. W oparciu o przedstawiony wykres pola pracy określ maksymalne dopuszczalne obciążenie platformy roboczej uniesionej na wysokość 21 m i wysięgu 11 m: a) 215 kg b) 115 kg c) 80 kg d) praca niedozwolona ze względu na przekroczenia dopuszczalnych parametrów pracy 202. W oparciu o przedstawiony wykres pola pracy określ maksymalne dopuszczalne obciążenie platformy roboczej uniesionej na wysokość 18 m i wysięgu 8 m: a) praca niedozwolona ze względu na przekroczenia dopuszczalnych parametrów pracy b) 215 kg c) 115 kg d) 80 kg 203. W oparciu o przedstawiony wykres pola pracy określ maksymalne dopuszczalne obciążenie platformy roboczej uniesionej na wysokość 20 m i wysięgu 10 m: a) praca niedozwolona ze względu na przekroczenia dopuszczalnych parametrów pracy b) 215 kg c) 115 kg d) 80 kg 204. W oparciu o przedstawiony wykres pola pracy określ maksymalne dopuszczalne obciążenie platformy roboczej uniesionej na wysokość 19 m i wysięgu 11 m: a) 215 kg b) 115 kg c) 80 kg d) praca niedozwolona ze względu na przekroczenia dopuszczalnych parametrów pracy 205. W oparciu o przedstawiony wykres pola pracy wskaż maksymalny wysięg platformy roboczej obciążonej masą 215kg uniesionej na wysokość 22 m: a) 215 kg b) 115 kg c) 80 kg d) praca niedozwolona ze względu na przekroczenia dopuszczalnych parametrów pracy 206. W oparciu o przedstawiony wykres pola pracy wskaż maksymalny wysięg platformy roboczej obciążonej masą 215 kg uniesionej na wysokość 17 m: a) 10,2 m b) 11,2 m c) 9,2 m d) 8,2 m 207. W oparciu o przedstawiony wykres pola pracy wskaż maksymalny wysięg platformy roboczej obciążonej masą 115 kg uniesionej na wysokość 14 m: a) 6 m b) 9,4 m c) 10,7 m d) 13 m 208. W oparciu o przedstawiony wykres pola pracy wskaż maksymalny wysięg platformy roboczej obciążonej masą 80 kg uniesionej na wysokość 18 m: a) 8,6 m b) 11,8 m c) 10,2 m d) 12,4 m 209. W oparciu o przedstawiony wykres pola pracy wskaż poprawne parametry pracy podestu: a) maksymalna wysokość podnoszenia 19,8 m b) maksymalna wysokość robocza 19,8 m c) maksymalny wysięg 10 m d) wszystkie odpowiedzi sa prawidłowe 210. W oparciu o przedstawiony wykres pola pracy określ maksymalne dopuszczalne obciążenie platformy roboczej uniesionej na wysokość 16 m i wysięgu 8 m: a) 360 kg b) 280 kg c) 200 kg d) 80 kg 211. W oparciu o przedstawiony wykres pola pracy określ maksymalne dopuszczalne obciążenie platformy roboczej uniesionej na wysokość 15 m i wysięgu 10 m: a) 300 kg b) 280 kg c) 200 kg d) praca niedozwolona ze względu na przekroczenia dopuszczalnych parametrów pracy 212. W oparciu o przedstawiony wykres pola pracy wskaż maksymalny wysięg platformy roboczej obciążonej masą 200 kg: a) 9,5 m b) 8,5 m c) 7,5 m d) 10 m 213. W oparciu o przedstawiony wykres pola pracy wskaż poprawne parametry pracy podestu: a) maksymalna wysokość podnoszenia 14,5 m b) maksymalna wysokość robocza 14,5 m c) maksymalny udźwig podestu 200 kg d) odpowiedź b i c jest prawidłowa 214. W oparciu o przedstawiony wykres pola pracy wskaż poprawne parametry pracy podestu: a) maksymalny wysięg podestu obciążonego ładunkiem 80 kg - 6 m b) maksymalna wysokość podnoszenia 14,5 m c) maksymalny wysięg platformy obciążonej masa 200 kg - 6 m d) wszystkie odpowiedzi są niepoprawne 215. W oparciu o przedstawiony wykres pola pracy określ maksymalne dopuszczalne obciążenie platformy roboczej uniesionej na wysokość 12 m i wysięgu 4 m: a) praca niedozwolona ze względu na przekroczenia dopuszczalnych parametrów pracy b) 280 kg c) 200 kg d) 80 kg 216. W oparciu o przedstawiony wykres pola pracy określ maksymalne dopuszczalne obciążenie platformy roboczej uniesionej na wysokość 8 m i wysięgu 6 m: a) praca niedozwolona ze względu na przekroczenia dopuszczalnych parametrów pracy b) 280 kg c) 200 kg d) 80 kg 217. W oparciu o przedstawiony wykres pola pracy wskaż maksymalny wysięg platformy roboczej obciążonej masą 200 kg: a) 5 m b) 6 m c) 7 m d) 8 m 218. W oparciu o przedstawiony wykres pola pracy wskaż maksymalny wysięg platformy roboczej obciążonej masą 80 kg: a) 5,5 m b) 6,6 m c) 7,7 m d) 8,8 m 219. W oparciu o przedstawiony wykres pola pracy wskaż maksymalny wysięg platformy roboczej obciążonej masą 240 kg: a) 5 m b) 6 m c) 7 m d) praca niedozwolona ze względu na przekroczenia dopuszczalnych parametrów pracy 220. W oparciu o przedstawiony wykres pola pracy wskaż poprawne parametry pracy podestu: a) maksymalna wysokość podnoszenia 23 m b) maksymalna wysokość robocza 25,5 m c) maksymalny udźwig podestu 200 kg d) wszystkie odpowiedzi są prawidłowe 221. W oparciu o przedstawiony wykres pola pracy wskaż poprawne parametry pracy podestu: a) maksymalny wysięg podestu obciążonego ładunkiem 80 kg - 13 m b) maksymalny wysięg platformy obciążonej masą 200 kg - 12 m c) praca na podporach d) dopuszczalna ilość osób na platformie roboczej - 3 222. W oparciu o przedstawiony wykres pola pracy wskaż poprawne parametry pracy podestu: a) maksymalna wysokość robocza 26 m b) dopuszczalna maksymalna ilość osób na platformie - 2 c) maksymalny wysięg podestu obciążonego ładunkiem 200 kg - 9 m d) odpowiedź b i c jest prawidłowa 223. W oparciu o przedstawiony wykres pola pracy wskaż poprawne parametry pracy podestu: a) maksymalna wysokość podnoszenia z dwiema osobami 23 m b) dopuszczalna ilość osób na platformie - 2 c) maksymalny wysięg podestu z jedna osobą na platformie 12 m d) wszystkie odpowiedzi są poprawne 224. W oparciu o przedstawiony wykres pola pracy określ maksymalne dopuszczalne obciążenie platformy roboczej uniesionej na wysokość 23 m i wysięgu 6 m: a) praca niedozwolona ze względu na przekroczenie dopuszczalnych parametrów pracy b) 280 kg c) 200 kg d) 80 kg 225. W oparciu o przedstawiony wykres pola pracy określ maksymalne dopuszczalne obciążenie platformy roboczej uniesionej na wysokość 22 m i wysięgu 9 m: a) praca niedozwolona ze względu na przekroczenie dopuszczalnych parametrów pracy b) 280 kg c) 200 kg d) 80 kg 226. W oparciu o przedstawiony wykres pola pracy określ maksymalną dopuszczalną ilość osób jaką można podnieść na wysokość 24 m: a) 3 b) 2 c) 1 d) wszystkie odpowiedzi są niepoprawne 227. W oparciu o przedstawiony wykres pola pracy określ maksymalną dopuszczalną ilość osób jaką można podnieść na wysokość 18 m przy wysięgu 10m: a) 3 b) 2 c) 1 d) wszystkie odpowiedzi są niepoprawne 228. W oparciu o przedstawiony wykres pola pracy wskaż maksymalny wysięg platformy roboczej obciążonej masą 200 kg: a) 9 m b) 10 m c) 11 m d) 12 m 229. W oparciu o przedstawiony wykres pola pracy wskaż poprawne parametry pracy podestu: a) maksymalny wysięg boczny po stronie prawej 13 m b) maksymalny wysięg z tyłu pojazdu 16,2 c) maksymalny udźwig podestu 200 kg d) wszystkie odpowiedzi są prawidłowe 230. W oparciu o przedstawiony wykres pola pracy wskaż poprawne parametry pracy podestu: a) maksymalny zakres obrotu 280° b) maksymalny wysięg podestu obciążonego ładunkiem 120 kg z tyłu pojazdu - 13,0 m c) maksymalny wysięg podestu obciążonego ładunkiem 200 kg - z lewej strony pojazdu - 12 m d) odpowiedź b i c jest prawidłowa 231. W oparciu o przedstawiony wykres pola pracy określ maksymalne dopuszczalne obciążenie platformy roboczej po lewej stronie pojazdu w odległości 6 m od osi obrotu: a) praca niedozwolona ze względu na przekroczenie dopuszczalnych parametrów pracy b) 200 kg c) 120 kg d) 80 kg 232. W oparciu o przedstawiony wykres pola pracy określ maksymalne dopuszczalne obciążenie platformy roboczej po lewej stronie pojazdu w odległości 8 m od osi obrotu: a) praca niedozwolona ze względu na przekroczenie dopuszczalnych parametrów pracy b) 200 kg c) 120 kg d) 80 kg 233. W oparciu o przedstawiony wykres pola pracy określ maksymalne dopuszczalny wysięg podestu z obciążeniem 200 kg: a) 8 m z lewej strony pojazdu b) 13 m z prawej strony pojazdu c) 16 m z tyłu pojazdu d) wszystkie odpowiedzi są nieprawidłowe 234. W oparciu o przedstawiony wykres pola pracy określ maksymalne dopuszczalny wysięg podestu z obciążeniem 120 kg: a) 13 m z lewej strony pojazdu b) 13 m z prawej strony pojazdu c) 13 m z tyłu pojazdu d) wszystkie odpowiedzi są nieprawidłowe 235. W oparciu o przedstawiony wykres pola pracy określ maksymalne dopuszczalny wysięg podestu z obciążeniem 80 kg: a) 8 m z lewej strony pojazdu b) 10 m z prawej strony pojazdu c) 13 m z tyłu pojazdu d) odpowiedź b i c jest prawidłowa 236. W oparciu o przedstawiony wykres pola pracy wskaż poprawne parametry pracy podestu: a) maksymalna wysokość podnoszenia 12,0 m b) maksymalna wysokość robocza 12,0 m c) maksymalny wysięg boczny 7 m d) wszystkie odpowiedzi sa prawidłowe 237. W oparciu o przedstawiony wykres pola pracy wskaż poprawne parametry pracy podestu: a) maksymalny wysięg podestu obciążonego ładunkiem 200 kg - 13 m b) praca wyłącznie na podporach c) praca w pełnym zakresie obrotu d) dopuszczalna ilość osób na platformie roboczej - 3 238. W oparciu o przedstawiony wykres pola pracy wskaż, która z pozycji uniesienia platformy jest niemożliwa: a) wysokość robocza 8 m, wysięg 4 m b) wysokość robocza 10 m, wysięg 4 m c) wysokość robocza 12 m, wysięg 5 m d) wysokość robocza 6 m, wysięg 6 m 239. W oparciu o przedstawiony wykres pola pracy wskaż poprawne parametry pracy podestu: a) maksymalna wysokość podnoszenia 9 m b) maksymalna wysokość robocza 10,5 m c) maksymalny wysięg roboczy 10,5 m d) wszystkie odpowiedzi sa prawidłowe 1. Urządzenie techniczne objęte dozorem technicznym może być eksploatowane na podstawie: a) zezwolenia ustnego lub pisemnego wydanego przez upoważnionego konserwatora b) ważnej decyzji zezwalającej na eksploatację wydanej przez organ właściwej jednostki dozoru technicznego c) oznaczenia CE zamieszonego na urządzeniu d) deklaracji zgodności wystawionej przez wytwórcę 2. Które z wymienionych czynności nie należą do zakresu obowiązków obsługującego UTB: a) wykonywanie niewielkich napraw urządzenia w ramach posiadanego wykształcenia i umiejętności b) przestrzeganie instrukcji eksploatacji w zakresie obsługi UTB c) zapoznanie się z planem pracy i wielkością przenoszonych ładunków d) wszystkie odpowiedzi są poprawne 3. Terminy przeglądów konserwacyjnych urządzeń technicznych: a) są zawarte w instrukcji eksploatacji urządzenia b) określa konserwator urządzenia c) określa w protokole inspektor wykonujący badanie d) wszystkie odpowiedzi są poprawne 4. Dozorem technicznym nazywamy: a) określone ustawą działania zmierzające do zapewnienia bezpiecznego funkcjonowania urządzeń technicznych i urządzeń do odzyskiwania par paliwa oraz działania zmierzające do zapewnienia bezpieczeństwa publicznego w tych obszarach b) instytucje kontrolujące stan techniczny urządzeń c) Urząd Dozoru Technicznego d) UDT, WDT,TDT 5. Dozór techniczny nad urządzeniami technicznymi wykonuje: a) Urząd Dozoru Technicznego oraz specjalistyczne jednostki dozoru technicznego b) Urząd Dozoru Technicznego oraz upoważnionre przez UDT organizacje c) Urząd Dozoru Technicznego i zagraniczne jednostki dozoru technicznego d) wszystkie odpowiedzi są poprawne 6. Zmiana parametrów technicznych lub zmiana konstrukcji urządzenia technicznego traktowana jest jako: a) modernizacja urządzenia technicznego b) naprawa urządzenia technicznego c) usuwanie usterek i innych nieprawidłowości urządzenia technicznego d) wytworzenie nowego urządzenia 7. Uzgodnioną naprawę lub modernizację urządzeń technicznych może wykonać: a) naprawiający lub modernizujący, który posiada uprawnienie wydane przez organ właściwej jednostki dozoru technicznego b) eksploatujący urządzenie techniczne posiadający odpowiednie doświadczenie w zakresie napraw lub modernizacji c) konserwator posiadający odpowiednie doświadczenie w zakresie napraw lub modernizacji d) w niewielkim zakresie kompetentny operator 8. Ustawa o dozorze technicznym określa następujące formy dozoru technicznego: a) całkowita, częściowa, ograniczona b) pełna, ograniczona, uproszczona c) pełna, cykliczna, sporadyczna d) UDT, WDT, TDT 9. Decyzję zezwalającą na eksploatację urządzenia technicznego wydaje: a) konserwator po wykonaniu przeglądu z wynikiem pozytywnym b) organ właściwej jednostki dozoru technicznego lub eksploatujący urządzenie techniczne z upoważnienia organu właściwej jednostki dozoru technicznego c) organ właściwej jednostki dozoru technicznego lub organ administracji publicznej z upoważnienia organu właściwej jednostki dozoru technicznego d) organ właściwej jednostki dozoru technicznego 10. Obsługujący urządzenie techniczne może podjąć pracę gdy: a) urządzenie posiada ważną decyzję zezwalającą na eksploatację jeżeli wymagają tego odpowiednie przepisy b) posiada zaświadczenie kwalifikacyjne odpowiedniej kategorii c) urządzenie posiada aktualny pozytywny wynik przeglądu konserwacyjnego d) wszystkie powyższe warunki muszą być spełnione jednocześnie 11. Obsługujący urządzenie techniczne może podjąć pracę gdy: a) urządzenie posiada aktualny wpis w dzienniku konserwacji potwierdzający sprawność urządzenia b) przeszedł odpowiednie szkolenie stanowiskowe c) urządzenie posiada ważną decyzję zezwalającą na eksploatację d) wszystkie powyższe warunki muszą być spełnione jednocześnie 12. W przypadku nieprzestrzegania przez eksploatującego przepisów o dozorze technicznym eksploatujący: a) otrzymuje pisemne upomnienie b) otrzymuje zalecenia pokontrolne c) podlega grzywnie lub karze ograniczenia wolności d) odpowiedź a i b jest prawidłowa 13. W przypadku stwierdzenia zagrożenia dla życia lub zdrowia ludzkiego oraz mienia i środowiska inspektor: a) wydaje decyzję wstrzymującą eksploatację urządzenia technicznego b) wystawia mandat karny c) pisemnie poucza eksploatującego d) wszystkie odpowiedzi są poprawne 14. W przypadku niebezpiecznego uszkodzenia urządzenia technicznego lub nieszczęśliwego wypadku eksploatujący: a) niezwłocznie powiadamia UDT o zaistniałym zdarzeniu b) powiadamia producenta urządzenia o przyczynach powstałego zdarzenia c) niezwłocznie dokonuje naprawy urządzenia i przekazuje do dalszej eksploatacji d) zgłasza urządzenie do wykonania naprawy 15. Zaświadczenie kwalifikacyjne do obsługi może zostać cofnięte przez: a) organ właściwej jednostki dozoru technicznego b) eksploatującego urządzenie techniczne c) inspektora bhp d) Państwową Inspekcję Pracy 16. Urządzenia techniczne nieobjęte dozorem technicznym to: a) żurawie o udźwigu do 3,2 t b) wciągniki i wciągarki oraz suwnice c) wózki jezdniowe podnośnikowe oraz podesty ruchome d) zawiesia transportowe 17. Urządzenia techniczne objęte dozorem technicznym to: a) przenośniki kabinowe i krzesełkowe b) układnice magazynowe oraz urządzenia dla osób niepełnosprawnych c) wyciągi towarowe i wyciągi statków d) wszystkie odpowiedzi są poprawne 18. Niebezpieczne uszkodzenie urządzenia technicznego to: a) każda usterka UTB b) nieprzewidziane uszkodzenie, w wyniku którego urządzenie nadaje się do częściowej eksploatacji c) nieprzewidziane uszkodzenie, w wyniku którego nadaje się do eksploatacji tylko przy obniżonych d) nieprzewidziane uszkodzenie, w wyniku którego urządzenie nie nadaje się do eksploatacji lub jego dalsza eksploatacja stanowi zagrożenie 19. Nieszczęśliwy wypadek to: a) nagłe zdarzenie, które spowodowało obrażenia ciała lub śmierć b) nagłe zdarzenie, które spowodowało przerwę w pracy c) nagłe zdarzenie, które skutkuje wyłączeniem urządzenia technicznego z eksploatacji d) każda usterka UTB spowodowana przyczyną losową 20. Podnoszenie i przenoszenie osób przez urządzenie techniczne przeznaczone wyłącznie do transportu ładunków wymaga: a) uzgodnienia z organem właściwej jednostki dozoru technicznego b) uzgodnienia z przełożonym c) uzgodnienia ze służbą BHP d) jest możliwe przy zachowaniu szczególnej ostrożności i pod nadzorem inspektora 21. Odpowiedzialnym za zapewnienie właściwej obsługi i konserwacji urządzenia technicznego jest: a) eksploatujący urządzenie techniczne b) organ właściwej jednostki dozoru technicznego c) Państwowa Inspekcja Pracy d) inspektor UDT 22. Wymagane przepisami prawa przeglądy konserwacyjne wykonuje: a) osoba posiadająca zaświadczenie kwalifikacyjne do konserwacji b) pracownik autoryzowanego serwisu producenta urządzenia (pod warunkiem posiadania zaświadczeń kwalifikacyjnych do konserwacji) c) zakładowe służby utrzymania ruchu d) odpowiedź a i b jest prawidłowa 23. Dziennik konserwacji urządzenia technicznego prowadzi: a) inspektor UDT w księdze rewizyjnej urządzenia b) uprawniony operator c) zwyznaczony pracownik eksploatującego d) konserwator urządzenia technicznego 24. Badania odbiorcze przeprowadza się dla urządzeń technicznych: a) w terminach zgodnych z zapisami rozporządzenia w sprawie warunków technicznych dozoru technicznego b) przed wydaniem pierwszej decyzji zezwalającej na eksploatacje c) po naprawie urządzenia technicznego d) po każdej zmianie eksploatującego 25. Badania okresowe przeprowadza się dla urządzeń technicznych objętych dozorem: a) ograniczonym b) pełnym c) uproszczonym d) wszystkie odpowiedzi są poprawne 26. Nieobecność konserwującego na badaniu urządzenia technicznego wymaga min.: a) wcześniejszego uzgodnienia tego faktu z organem właściwej jednostki dozoru technicznego b) przedstawienia pisemnego usprawiedliwienia nieobecności konserwatora c) przedstawienia zwolnienia lekarskiego potwierdzającego niezdolność konserwatora do pracy d) wszystkie odpowiedzi są prawidłowe 27. Kandydat na obsługującego urządzenie techniczne musi: a) mieć ukończone 18 lat b) posiadać przynajmniej wykształcenie zawodowe c) posiadać przynajmniej 1 rok stażu pracy d) wszystkie odpowiedzi są prawidłowe 28. Obsługujący urządzenie techniczne ma obowiązek przerwać pracę gdy: a) jego stan fizyczny i psychiczny w dniu pracy jest nieodpowiedni b) stwierdzi, że dalsza praca urządzeniem stwarza zagrożenie c) urządzenie jest niesprawne d) wszystkie odpowiedzi są prawidłowe 29. Terminy przeglądów konserwacyjnych urządzenia mogą być określone: a) w instrukcji eksploatacji urządzenia b) w ustawie o dozorze technicznym c) w rozporządzeniu określającym warunki techniczne dozoru technicznego d) odpowiedź a i c jest prawidłowa 30. Terminy badań okresowych i doraźnych kontrolnych UTB określone są: a) w ustawie o dozorze technicznym b) w rozporządzeniu określającym warunki techniczne dozoru technicznego c) w dokumentacji konstrukcyjnej urządzenia d) w dzienniku konserwacji 31. Obowiązkiem obsługującego urządzenie techniczne jest: a) przestrzeganie instrukcji eksploatacji w zakresie obsługi urządzenia b) przestrzeganie instrukcji eksploatacji w zakresie konserwacji urządzenia c) wykonywanie napraw urządzenia d) wszystkie odpowiedzi są poprawne 32. Urządzenie techniczne można eksploatować na podstawie: a) aktualnej naklejki organu właściwej jednostki dozoru technicznego określającej termin kolejnego badania b) aktualnego wpisu konserwatora urządzenia w dzienniku konserwacji c) ważnej decyzji zezwalającej na eksploatację wydanej przez organ właściwej jednostki dozoru technicznego d) pozytywnego protokołu z badania okresowego lub odbiorczego 33. Po wykonanych czynnościach przy urządzeniu technicznym inspektor sporządza: a) instrukcję eksploatacji urządzenia b) decyzję i protokół z wykonanych czynności c) deklarację zgodności CE d) wszystkie odpowiedzi są poprawne 34. Naprawę i modernizację urządzenia technicznego wykonuje: a) operator w ramach posiadanych umiejętności b) konserwator c) zakład uprawniony d) eksploatujący 35. Bezpośrednio odpowiedzialnym za bezpieczną eksploatację urządzenia technicznego jest: a) obsługujący urządzenie b) producent urządzenia c) zakładowy inspektor BHP d) inspektor UDT 36. Informacje dotyczące zasad bezpiecznej obsługi urządzenia są zawarte w: a) instrukcji eksploatacji urządzenia b) ustawie o dozorze technicznym c) dzienniku konserwacji d) protokole z badania wykonanego przez inspektora UDT 37. W ramach czynności przed rozpoczęciem pracy obsługujący: a) sprawdza stan techniczny urządzenia poprzez oględziny b) wykonuje próby statyczną i dynamiczną c) wykonuje próby ruchowe urządzenia d) odpowiedź a i c jest prawidłowa 38. Zaświadczenia kwalifikacyjne do obsługi urządzeń technicznych podlegających dozorowi technicznemu wydaje: a) firma szkoleniowa po pozytywnym wyniku egzaminu sprawdzającego b) inspektor BHP na podstawie zaświadczenia o ukończeniu kursu c) pracodawca na podstawie zdanego egzaminu d) organ właściwej jednostki dozoru technicznego 39. Przeciążanie UTB w trakcie pracy: a) jest zabronione b) jest dopuszczalne c) jest dopuszczalne ale tylko do 125% udźwigu nominalnego d) jest dopuszczalne ale tylko do 110% udźwigu nominalnego 40. Badania doraźne eksploatacyjne wykonuje się m.in.: a) po każdym usunięciu usterki przez konserwatora b) po wymianie cięgien nośnych c) raz na rok d) po wypadku na urządzeniu 41. Obowiązki obsługującego określone są: a) w instrukcji eksploatacji urządzenia b) w dzienniku konserwacji c) w ustawie o dozorze technicznym d) wszystkie odpowiedzi są poprawne 42. Badania okresowe urządzenia technicznego są wykonywane przez: a) konserwatora posiadającego odpowiednie zaświadczenie kwalifikacyjne b) inspektora organu właściwej jednostki dozoru technicznego c) pracownika serwisu producenta d) operatora 43. Jednostką dozoru technicznego jest: a) Urząd Dozoru Technicznego b) Wojskowy Dozór techniczny c) Transportowy dozór Techniczny d) wszystkie odpowiedzi są prawidłowe 44. Zaświadczenia kwalifikacyjne uprawniające do obsługi urządzeń technicznych ważne są na terenie: a) Rzeczypospolitej Polskiej b) Unii Europejskiej c) nie mają określonego obszaru ważności d) krajów strefy Schengen 45. Obowiązek stosowania środków ochrony indywidualnej przez operatorów urządzeń technicznych wynika z: a) instrukcji eksploatacji producenta b) przepisów BHP c) przepisów wewnątrzzakładowych d) wszystkie odpowiedzi są poprawne 46. Zgodnie z rozporządzeniem Rady Ministrów w sprawie rodzajów urządzeń technicznych podlegających dozorowi technicznemu przepisom dozoru technicznego podlegają: a) dźwigi, żurawie, suwnice, wciągarki i wciągniki b) wózki jezdniowe podnośnikowe z mechanicznym napędem podnoszenia, podesty ruchome c) dźwignice linotorowe, przenośniki kabinowe i krzesełkowe d) wszystkie odpowiedzi są poprawne 47. Instrukcja eksploatacji może nie zawierać: a) informacji o terminach i zakresie przeglądów konserwacyjnych UTB b) podstawowych parametrów i przeznaczenia UTB c) terminów badań technicznych wykonywanych przez jednostkę inspekcyjną d) informacji o sposobie obsługi urządzenia 48. Księga rewizyjna urządzenia musi zawierać: a) zbiór protokołów z badań wykonywanych przez jednostkę inspekcyjną b) dokument, w którym odnotowywane są przeglądy konserwacyjne c) treść aktualnych aktów prawnych d) wykaz uprawnionych operatorów 49. Decyzja wydana przez UDT: a) nie podlega odwołaniu b) może zostać zmieniona przez inspektora PIP c) podlega możliwości odwołania się przez eksploatującego d) każda odpowiedź jest niepoprawna 50. Do egzaminu sprawdzającego kwalifikacje może przystąpić osoba, która: a) złożyła wniosek o sprawdzenie kwalifikacji b) ukończyła 18 lat c) nie ma przeciwwskazań zdrowotnych do obsługi urządzeń technicznych d) wszystkie odpowiedzi są poprawne 51. Po zakończonym badaniu technicznym z wynikiem pozytywnym inspektor UDT: a) przedłuża ważność świadectwa kwalifikacji operatora b) oznakowuje urządzenie naklejką, która jest zezwoleniem na użytkowanie urządzenia c) informuje użytkownika pisemnie w dzienniku konserwacji, że wyraża zgodę na eksploatację urządzenia d) sporządza protokół z wykonanych czynności i wydaje decyzję administracyjną zezwalającą na eksploatację 52. Zaświadczenia kwalifikacyjne: a) są ważne bezterminowo b) są terminowe z okresem ważności uzależnionym od ilości uzyskanych punktów na egzaminie c) są terminowe z okresem ważności zgodnym z zapisami rozporządzenia w sprawie trybu sprawdzenia kwalifikacji d) są ważne przez okres 15 lat 53. Dokonujący przeróbek urządzenia technicznego bez uzgodnienia z organem właściwej jednostki dozoru technicznego: a) podlega karze grzywny lub ograniczenia wolności b) podlega ukaraniu mandatem karnym c) nie podlega karze d) wszystkie odpowiedzi są niepoprawne 54. Kto dopuszcza do eksploatacji urządzenie techniczne bez ważnej decyzji zezwalającej na eksploatację: a) podlega karze grzywny lub ograniczenia wolności b) nie podlega karze, jeżeli nie dojdzie do wypadku c) podlega wyłącznie karze grzywny d) podlega karze więzienia 55. Instrukcja eksploatacji to: a) zbiór informacji niezbędnych do bezpiecznej eksploatacji urządzenia udostępniany przez producenta b) zbiór zaleceń wydawanych przez Urząd Dozoru Technicznego c) instrukcja, którą musi stworzyć użytkownik urządzenia d) wszystkie odpowiedzi są poprawne 56. Zaświadczeń kwalifikacyjnych do obsługi nie wymaga się: a) jeżeli urządzenie jest obsługiwane przez jego właściciela b) jeżeli wszystkie mechanizmy urządzenia mają napęd ręczny c) jeśli urządzenie jest wykorzystywane do celów prywatnych, nie zarobkowych d) od osób po 60 roku życia 57. Osoba posiadająca zaświadczenia kwalifikacyjne może obsługiwać: a) tylko urządzenia wymienione w zakresie uprawnienia b) wszystkie urządzenia podlegające dozorowi technicznemu c) inne urządzenia podlegające dozorowi technicznemu za zgoda pracodawcy d) wszystkie UTB o udźwigu do 3,2 t 58. Obowiązkiem obsługującego urządzenie techniczne jest: a) odmówić obsługi urządzenia, jeżeli wygasła decyzja zezwalająca na eksploatację tego urządzenia b) zawsze stosować się do poleceń przełożonego nakazujących eksploatację urządzenia c) stosować się do zapisów zawartych w instrukcji eksploatacji d) odpowiedź a i c jest prawidłowa 59. Zaświadczenie kwalifikacyjne do obsługi urządzeń technicznych są: a) ważne na terenie Unii Europejskiej b) ważne z dowodem tożsamości c) bezterminowe d) wszystkie odpowiedzi są poprawne 60. Obsługujący który jest świadkiem wypadku ma obowiązek: a) udzielić pomocy ofierze (lub ofiarom) wypadku b) zabezpieczyć miejsce zdarzenia c) powiadomić przełożonego d) wszystkie odpowiedzi są poprawne 61. Obsługującemu nie wolno: a) podnosić ładunków, których masy nie potrafi określić b) kontrolować stanu technicznego urządzenia c) stosować się do zapisów zawartych w instrukcji eksploatacji d) dokonywać oględzin zewnętrznych urządzenia 62. Formami dozoru technicznego są: a) dozór pełny, dozór uproszczony, dozór ograniczony b) badanie odbiorcze, badanie okresowe i badanie doraźne c) wszystkie odpowiedzi są poprawne d) dokonywać oględzin zewnętrznych urządzenia 63. Podnoszenie osób urządzeniami, które zostały zaprojektowane i wykonane wyłącznie do podnoszenia ładunków: a) jest dopuszczalne, po zapewnieniu odpowiedniego poziomu bezpieczeństwa b) jest zabronione c) jest dopuszczalne, po uzgodnieniu z organem właściwej jednostki dozoru tchnicznego szczegółowych warunków eksploatacji d) jest dopuszczalne jednorazowo na pisemne polecenie przełożonego 64. Podnoszenie ładunków za pomocą dwóch lub więcej UTB: a) jest dopuszczalne, pod warunkiem opracowania przez eksploatującego szczegółowych warunków eksploatacji, opisujących czynności organizacyjno-techniczne minimalizujące ryzyko b) jest zawsze dopuszczalne jeżeli masa ładunku nie przekracza sumy udźwigów wykorzystywanych urządzeń c) jest dopuszczalne jeżeli masa ładunku nie przekracza połowy udźwigu każdego z wykorzystanych urządzeń d) nie jest nigdy dopuszczalna 65. Przebywanie osób pod ładunkiem przenoszonym jest: a) zawsze niedozwolone b) dozwolone dla osób kontrolującej spód ładunku c) dozwolone jeżeli współczynnik bezpieczeństwa cięgien wynosi nie mniej niż 5 d) dozwolone jeżeli współczynnik bezpieczeństwa cięgien wynosi nie mniej niż 7 66. Przenoszenia ładunków nad osobami jest: a) dozwolone pod warunkiem uzyskania pisemnego zezwolenia od osoby kierującej transportem b) dozwolone, po zapewnieniu współczynników bezpieczeństwa dla cięgien i urządzeń chwytnych większych niż 10 c) dozwolone pod warunkiem powiadomienia osób i wyposażeniu ich w środki ochrony indywidualnej d) wszystkie odpowiedzi są niepoprawne 67. Zaświadczenia kwalifikacyjne do obsługi urządzeń technicznych podlegających dozorowi technicznemu wydaje: a) właściciel urządzenia b) UDT, TDT, WDT c) PIP d) wszystkie odpowiedzi są niepoprawne 68. Komisja egzaminacyjna powiadamia osobę zainteresowaną o wyniku egzaminu: a) w ciągu 7 dni po egzaminie w formie pisemnej b) bezpośrednio po egzaminie c) w ciągu 14 dni po egzaminie w formie elektronicznej d) listem poleconym lub pocztą elektroniczną po upływie 30 dni roboczych od daty egzaminu 69. Dziennik konserwacji powinien być prowadzony: a) tylko w formie papierowej b) w formie elektronicznej lub papierowej c) tylko w formie elektronicznej d) przez obsługującego 70. Instrukcja stanowiskowa: a) jest zawsze dostarczana wraz z instrukcją obsługi przez producenta urządzenia b) stanowi niepisany zbiór zwyczajów przyjętych w zakładzie pracy c) jest wydawana przez pracodawcę i zawiera szczegółowe wskazówki dotyczące bhp na stanowisku pracy d) nie dotyczy operatorów urządzeń mobilnych 71. Po upływie terminu ważności zaświadczenia kwalifikacyjnego do obsługi urządzenia obsługujący: a) może obsługiwać UTB o ile kontynuuje pracę u tego samego pracodawcy b) może obsługiwać UTB o ile złoży wniosek o wydanie kolejnego zaświadczenia c) może obsługiwać UTB dopiero po uzyskaniu nowego zaświadczenia kwalifikacyjnego d) składa wniosek o przedłużenie terminu ważności zaświadczenia kwalifikacyjnego 72. Przedłużenie ważności zaświadczenie kwalifikacyjnego następuje: a) na pisemny wniosek obsługującego b) automatycznie po upływie terminu ważności zaświadczenia c) na pisemne zgłoszenie pracodawcy obsługującego d) po wcześniejszym zgłoszeniu telefonicznym 73. Udźwig UTB to parametr urządzenia bezpośrednio związany z: a) maksymalną wysokością podnoszonego ładunku b) maksymalną objętością podnoszonego ładunku c) maksymalną masą podnoszonego ładunku d) iloczynem masy i objętości podnoszonego ładunku 74. Masa netto 1000 l wody wynosi ok: a) 800 kg b) 900 kg c) 1000 kg d) 1100 kg 75. Masa ładunku składającego się z 40 opakowań po 25 kg każdy wynosi a) 800 kg b) 1000 kg c) 1100 kg d) 900 kg 76. Masa 60 kartonów po 20 kg każdy wynosi: a) 800 kg b) 1000 kg c) 1100 kg d) 1200 kg 77. Masę podnoszonego ładunku można określić na podstawie: a) zawieszki zbiorczej znajdującej się na transportowanym ładunku b) przeliczając uwzględniając ciężar właściwy i objętość c) dokumentacji przewozowej i magazynowej d) wszystkie odpowiedzi są prawidłowe 78. Informacja dotycząca udźwigu urządzenia może być zawarta: a) w instrukcji eksploatacji b) na tabliczce znamionowej c) na urządzeniu technicznym d) wszystkie odpowiedzi są prawidłowe 79. Prawidłowe określenie jednostki udźwigu to: a) kg b) Pa c) mth d) mm 80. Do parametrów żurawia zaliczamy: a) udźwig nominalny b) wysokość podnoszenia c) prędkość ruchów roboczych d) wszystkie odpowiedzi są poprawne 81. Zamek hydrauliczny (zawór zwrotny sterowany) w układzie hydraulicznym żurawia zapewnia ochronę przed: a) nadmiernym wzrostem ciśnienia w układzie hydraulicznym b) skutkami pęknięcia przewodu hydraulicznego c) skutkami nagłego wyłączenia pompy hydraulicznej d) dzieleniem strumienia na poszczególne obwody układu hydraulicznego 82. Jaki zawór zabezpieczający znajduje się w układzie hydraulicznym podpór? a) zawór zwrotny sterowany (zamek hydrauliczny) b) zawór powrotny c) zawór upustowy d) zawór bezpieczeństwa 83. Zawory zwrotne (zamki hydrauliczne) montuje się w układach: a) mechanizmu podpór b) mechanizmu podnoszenia c) mechanizmu zmiany wysięgu d) wszystkie odpowiedzi są prawidłowe 84. Elementem wytwarzającym ciśnienie w układzie hydraulicznym żurawia jest: a) silnik hydrauliczny b) pompa hydrauliczna c) kompresor d) sprężarka 85. Zawór przelewowy instalowany w układzie hydraulicznym żurawi ma za zadanie: a) utrzymanie stałego ciśnienia w układzie hydraulicznym b) utrzymanie siłownika w stałej pozycji c) zabezpieczanie układu podnoszenia przed opadaniem d) zasilać układ hydrauliczny 86. Hydrauliczne elementy bezpieczeństwa to: a) zawór przelewowy, zawory zwrotno - dławiące b) pompa, rozdzielacz, siłownik teleskopowania c) silnik obrotu, blokada zerowa, zawór kulowy d) rozdzielacz, zawory kulowe, odboje 87. Zawór bezpieczeństwa w układzie hydraulicznym zabezpiecza: a) układ hydrauliczny oraz pompę przed uszkodzeniem za skutek wzrostu ciśnienia b) przed przekroczeniem udźwigu nominalnego c) przed utratą stateczności d) przed niekontrolowanym ruchem podestu 88. Zamki hydrauliczne (zawory zwrotne sterowane) instalowane w układach hydraulicznych żurawi przeładunkowych: a) zabezpieczają układ przed skutkami nadmiernego wzrostu ciśnienia oleju w obwodach hydraulicznych b) zabezpieczają przed nieuprawnioną obsługą - zamykają dostęp do rozdzielacza ruchów roboczych c) zabezpieczają siłowniki przed skutkami pęknięcia przewodu hydraulicznego d) zamykają dostęp do kabiny obsługującego żurawia samojezdnego 89. Tzw. zamki hydrauliczne (zawory zwrotne sterowane): a) są elementami roboczymi, służącymi do ograniczania niebezpiecznych ruchów roboczych żurawia b) są elementami bezpieczeństwa, których zadaniem jest ograniczenie ciśnienia w danym układzie hydraulicznym podczas przeciążenia żurawia c) są elementami roboczymi, których zadaniem jest blokować pozycję żurawia podczas przestojów żurawia z zawieszonym ładunkiem d) są elementami bezpieczeństwa, których zadaniem jest odciąć niekontrolowany wypływ oleju z siłowników, podczas uszkodzenia (rozszczelnienia) elastycznych przewodów doprowadzających olej do siłowników 90. Rozdzielacz hydrauliczny instalowany jest w układzie w celu: a) dławienia ciśnienia w poszczególnych obwodach b) zabezpieczenia układu przed nadmiernym wzrostem ciśnienia c) kierowania przepływu czynnika roboczego do poszczególnych obwodów d) wszystkie odpowiedzi są nieprawidłowe 91. Elementem wykonawczym w układzie hydraulicznym podestu jest: a) siłownik mechanizmu podnoszenia b) silnik hydrauliczny c) siłownik mechanizmu teleskopowania d) wszystkie odpowiedzi są poprawne 92. Elementem chroniącym układ hydrauliczny przed nadmiernym wzrostem ciśnienia jest: a) zamek hydrauliczny b) zawór dławiący c) rozdzielacz hydrauliczny d) zawór przelewowy 93. Sterowanie rozdzielaczem w układzie hydraulicznym podestu może być realizowane w sposób: a) pośredni b) bezpośredni c) mieszany d) wszystkie odpowiedzi są prawidłowe 94. Zawór bezpieczeństwa w układzie hydraulicznym żurawia: a) utrzymuje nurnik siłownika podnoszenia w stałym położeniu b) jest elementem ograniczającym udźwig c) zabezpiecza pompę hydrauliczną przed uszkodzeniem d) ogranicza prędkość opuszczania podniesionego ładunku, podczas pęknięcia węża hydraulicznego 95. Jaki zawór w układzie hydraulicznym żurawia może być zintegrowany z siłownikiem? a) zawór dławiący b) zamek hydrauliczny c) zawór przelewowy d) odpowiedź a i b jest prawidłowa 96. Zawór przelewowy w układzie hydraulicznym żurawia podczas nadmiernego wzrostu ciśnienia oleju kieruje go: a) z powrotem do zbiornika oleju b) na zewnątrz żurawia (jest to sytuacja awaryjna) c) do innej sekcji rozdzielacza d) odpowiedź a i b jest prawidłowa 97. Gdzie znajdują się zawory zwrotne sterowane (zamki)? a) na siłownikach b) w pulpicie sterującym c) przy pompie d) na wężach elastycznych 98. Łącznik bezpieczeństwa STOP jest: a) zabezpieczony przed przypadkowym zadziałaniem b) umieszczony blisko stanowiska obsługującego c) koloru czerwonego d) odpowiedź b i c jest prawidłowa 99. Gdzie w żurawiu przeładunkowym znajduje się łącznik bezpieczeństwa STOP? a) przy lewej podporze tylnej b) za kabiną obsługującego c) w kabinie kierowcy d) na stanowisku sterowania 100. W skład mechanizmu obrotu żurawia wchodzi: a) silnik obrotu, hamulec obrotu, zawór zwrotno dławiący, rozdzielacz sterujący mechanizmem obrotu b) wysięgnik, hamulec, koło linowe, lina c) silnik obrotu, zawór bezpieczeństwa , siłownik teleskopowania d) hamulec, rozdzielacz kierunkowy, kryza, przewody hydrauliczne 101. Moment wywracający żurawia wzrasta: a) wraz ze wzrostem masy przeciwwagi b) wraz z długością wysięgnika c) gdy masa ładunku maleje d) przy słabym wietrze 102. W przypadku gdy moment ustalający jest większy od momentu wywracającego: a) żuraw może utracić stateczność b) wzrasta wartość udźwigu żurawia c) żuraw zachowuje stateczność d) nastąpi obrót wysięgnika żurawia 103. Wysięg żurawia przeładunkowego: a) jest stały b) zależy od rozstawienia podpór c) maleje wraz ze wzrostem masy ładunku d) odpowiedź b i c jest prawidłowa 104. Rozstawione podpory żurawia przeładunkowego: a) zwiększają jego stateczność b) znacznie zwiększają wysokość podnoszenia c) uniemożliwiają pracę w pobliżu wykopów d) zmniejszają stateczność 105. Wysięg żurawia jest to odległość pozioma pomiędzy punktem mocowania urządzenia chwytającego na wysięgniku a: a) podporą żurawia b) zewnętrznym obrysem pojazdu c) osią obrotu kolumny żurawia d) odpowiedz b i c jest prawidłowa 106. Jaka jest różnica pomiędzy wysięgiem a wysięgnikiem? a) Wysięg to parametr techniczny a wysięgnik to element konstrukcji b) Wysięg i wysięgnik określają to samo c) Wysięg to element bezpieczeństwa a wysięgnik to element konstrukcji d) Wysięgnik jest blachownicowy a wysięg kratownicowy 107. Zwiększenie wysięgu może być realizowane przez: a) mechanizm podnoszenia i opuszczania wysięgnika b) mechanizm obrotu c) mechanizm teleskopowania d) odpowiedzi a i c są prawidłowe 108. Wysięgnik teleskopowy żurawia: a) posiada mechaniczny układ zmiany wysięgu b) składa się z kilku członów c) umożliwia bezpieczną pracę przy liniach elektroenergetycznych d) odpowiedź a i b jest prawidłowa 109. Wykres udźwigów żurawia przedstawia zależność: a) masy podnoszonego ładunku i prędkości wiatru b) masy podnoszonego ładunku, wysięgu i wysokości podnoszenia c) wysokości podnoszenia ładunku i wysięgu d) wysięgu i prędkości wiatru 110. Wysięgnik pomocniczy żurawia przeładunkowego: a) zwiększa udźwig żurawia b) umożliwia pracę przy silnym wietrze c) zwiększa wysięg żurawia d) żadna z powyższych odpowiedzi nie jest poprawna 111. Na stateczność żurawia przeładunkowego ma wpływ: a) rodzaj i pochylenie podłoża b) sposób rozstawienia podpór c) ciężar ładunku d) wszystkie odpowiedzi są prawidłowe 112. Z przeciążeniem konstrukcji nośnej żurawia mamy do czynienia w przypadku: a) przekroczenia dopuszczalnego udźwigu dla danego wysięgu b) zmniejszenie wysięgu poza wysięg dopuszczalny dla danego udźwigu c) przekroczenie dopuszczalnego kąta obrotu żurawia d) przekroczenia dopuszczalnego kąta pochylenia wysięgnika 113. Przedstawiony rysunek pokazuje: a) stan poziomu paliwa w zbiorniku b) prędkość obrotową silnika c) wskazania ogranicznika obciążenia d) wielkość podnoszonego ciężaru 114. Przedstawiony rysunek określa wskazania dla: a) wysięgnika żurawia z ręcznym układem teleskopowania b) wysokości podnoszenia c) wartości osiągniętego wysięgu d) Odpowiedź a i c jest prawidłowa 115. Przedstawiony rysunek określa wskazania: a) określające długość wysięgnika b) wartość osiągniętego wysięgu c) minimalnej odległości wysięgnika od linii elektroenergetycznych d) wartości wysunięcia podpór 116. Przedstawiony rysunek informuje obsługującego o: a) 2 pozycji wychylenia dźwigni sterującej z 4 stopniowej skali b) ilość pasm lin zblocza hakowego c) średniej prędkości wiatru d) aktualnej prędkości wiatru 117. Przedstawiony symbol graficzny dotyczy: a) zewnętrznej temperatury powietrza b) wartości obciążenia przeciwwagi żurawia c) wartość maksymalnego udźwigu d) temperatury oleju hydraulicznego 118. Wychylenie dźwigni w kierunku C (zgodnie z rysunkiem) powoduje: a) załączenie mechanizmu podnoszenia wysięgnika b) załączenie mechanizmu teleskopowania w kierunku "zwiększenia wysięgu" c) załączenie mechanizmu obrotu w kierunku "prawo" d) załączenie mechanizmu podnoszenia haka 119. Wychylenie dźwigni w kierunku B (zgodnie z rysunkiem) powoduje: a) załączenie mechanizmu podnoszenia wysięgnika teleskopowego b) załączenie mechanizmu teleskopowania w kierunku "zwiększenia wysięgu" c) załączenie mechanizmu obrotu w kierunku "prawo" d) załączenie mechanizmu opuszczenia wysięgnika głównego 120. Wychylenie dźwigni w kierunku C (zgodnie z rysunkiem) powoduje: a) załączenie mechanizmu podnoszenia w kierunku "góra" b) załączenie mechanizmu obrotu w kierunku "w prawo" c) zamknięcie chwytaka d) załączenie mechanizmu opuszczenia wysięgnika głównego 121. Przedstawiony symbol graficzny dotyczy: a) opisu dźwigni sterującej mechanizmu podnoszenia wysięgnika teleskopowego b) opisu dźwigni sterującej mechanizmu obrotu c) opisu dźwigni sterującej mechanizmu podnoszenia wysięgnika głównego d) załączenie mechanizmu opuszczania podpór 122. Przedstawiony symbol graficzny dotyczy: a) opisu dźwigni sterującej mechanizmu podnoszenia wysięgnika teleskopowego b) opisu dźwigni sterującej mechanizmu teleskopowania c) opisu dźwigni sterującej mechanizmu podnoszenia wysięgnika głównego d) załączenie mechanizmu opuszczania podpór 123. Przedstawiony rysunek informuje obsługującego o: a) aktualnym wypoziomowaniu żurawia b) dokładności odkładania ładunku c) stopniu wychylenia dźwigni sterujących d) stopniu wychylenia dźwigni sterującej 124. Praca żurawiem przenośnym z pękniętą podporą jest: a) zabroniona, w przypadku wykrycia pęknięcia należy niezwłocznie przerwać pracę b) dozwolona, do momentu przyjazdu konserwatora i stwierdzeniu pęknięcia c) dozwolona dla pęknięć nie dłuższych niż 3 mm d) można pracować z jedną pękniętą podporą 125. Jakie dane odczytuje ogranicznik udźwigu? a) ilość wysuniętych sekcji wysięgnika, ciężar przeciwwagi, prędkość wiatru b) ciśnienie w układzie hydraulicznym, ciśnienie w oponach c) ilość paliwa w zbiorniku, ilość oleju w układzie hydraulicznym d) kąt wychylenia oraz długość wysięgnika, ciężar ładunku, rozstawienie podpór 126. Blokada transportowa podpór żurawi służy do: a) zabezpieczenia przed nadmiernym rozłożeniem się podpór b) zabezpieczenia przed jazdą z niezłożonymi elementami żurawia c) zabezpieczenia przed wysunięciem podpór podczas jazdy żurawiem d) zabezpieczenia przed nieupoważnionym dostępem 127. Sterowanie bezpośrednie to: a) sterowanie w którym obsługujący widzi bezpośrednio całą drogę przenoszonego ładunku b) sterowanie które odbywa się za pomocą przycisków c) gdy żuraw jest sterowany zdalnie (bezprzewodowo) d) sterowanie gdzie obsługujący steruje dźwigniami połączonymi mechanicznie bezpośrednio z rozdzielaczem 128. Sterowanie pośrednie to: a) sterowanie gdy obsługujący nie widzi podnoszonego ładunku i korzysta z współpracy sygnalisty b) sterowanie odbywa się za pomocą dźwigni połączonych mechanicznie za pośrednictwem cięgien z rozdzielaczem c) sterowanie z kabiny żurawia d) sterowanie w którym obsługujący steruje joystickami lub przyciskami oddziałowującymi na rozdzielacz za pośrednictwem elektrycznego lub hudraulicznego obwodu sterowania 129. Synchroniczny układ teleskopowania wysięgnika oznacza: a) wszystkie segmenty teleskopu wysuwają się jednocześnie i równomiernie b) wysięgnik teleskopowany jest przy pomocy dodatkowej pompy hydraulicznej zsynchronizowanej z pompą główną c) elementy teleskopu wysuwają się kolejno i pojedynczo d) odpowiedź a i b jest prawidłowa 130. Asynchroniczny układ teleskopowania wysięgnika oznacza: a) wysuw poszczególnych sekcji sterowany jest przez obsługującego b) żuraw może pracować na różnym poziomie wysunięcia poszczególnych sekcji c) wszystkie segmenty teleskopu wysuwają się jednocześnie d) odpowiedź a i b jest prawidłowa 131. Zabezpieczenia stosowane w hakach żurawi to: a) ogranicznik udźwigu, łącznik krańcowy wysokości podnoszenia, zabezpieczenie nakrętki haka b) zamki hydrauliczne, łączniki krańcowe mechanizmu podnoszenia c) zapadka haka, zabezpieczenie nakrętki haka przed odkręceniem d) wszystkie odpowiedzi sa prawidłowe 132. Graniczne parametry zużycia haka określa: a) konserwator b) eksploatujący c) obsługujący d) producent żurawia 133. O ile wytwórca nie określi inaczej dopuszczalne wytarcie gardzieli haka żurawia wynosi: a) 5% b) 3% c) 10% d) wszystkie odpowiedzi sa niepoprawne 134. O ile wytwórca nie określi inaczej dopuszczalne rozwarcie gardzieli haka wynosi: a) 5% b) 3% c) 10% d) 15% 135. Stan techniczny haka określa się na podstawie: a) daty produkcji b) ilość karbów c) oględzin i pomiarów d) ilości przepracowanych cykli 136. W celu regeneracji haka możemy: a) spawać pęknięte fragmenty b) napawać drobne ubytki c) podgrzewać i prostować d) zeszlifować łagodne zadziory 137. Karta haka jest to: a) dokument potwierdzający zgodność ze wzorcem b) dokument wypełniany przez Inspektora UDT c) dokument kontroli zużycia haka d) dokument wypełniany przez producenta 138. Wysięgnik pomocniczy montowany w niektórych żurawiach to: a) dodatkowy wysięgnik zwiększający stateczność żurawia b) dodatkowy wysięgnik służący do stabilizacji ładunków o dużych gabarytach c) element konstrukcji służący do zwiększenia rozpiętości podpór d) dodatkowy element wysięgnika montowany mechanicznie w celu zwiększenia długości wysięgnika 139. Podpora żurawia to: a) konstrukcja służąca do podniesienia pojazdu podczas poziomowania b) element służący do podparcia wysięgnika żurawia c) element umożliwiający pracę żurawia na grząskim gruncie d) konstrukcja pomocnicza, połączona z podstawą żurawia lub pojazdem, która zapewnia jego stateczność 140. Ogranicznik udźwigu nie zabezpiecza przed: a) przeciążeniem konstrukcji b) rozkołysaniem ładunku c) ryzykiem utraty stateczności d) niebezpiecznym ruchem ładunku 141. Urządzenia sterownicze po zwolnieniu nacisku powinny: a) powracać do pozycji wyjściowej tylko po przesterowaniu przez obsługującego b) samoczynnie powrócić do pozycji wyjściowej c) pozostać w pozycji zasterowanej d) umożliwić dokończenie zasterowanego ruchu 142. Kryteria zużycia lin to między innymi: a) zmniejszenie średnicy zewnętrznej b) korozja c) ilość pęknietych drutów d) wszystkie odpowiedzi sa prawidłowe 143. Zmniejszenie średnicy zewnętrznej liny nośnej może być spowodowane: a) uszkodzeniem rdzenia liny b) wytarciem powierzchni zewnętrznej c) wyciśnięciem splotki d) wszystkie odpowiedzi są prawidłowe 144. Żurawie przeładunkowe mogą być instalowane na podwoziu: a) kołowym b) gąsienicowym c) samochodowym d) wszystkie odpowiedzi są prawidłowe 145. Zgodnie z przedstawionym diagramem wysięgnik teleskopowy żurawia składa się z: a) 2 sekcji b) 3 sekcji c) 4 sekcji d) 5 sekcji 146. Elementy budowy haka to: a) chwytnia oraz pazur b) podstawa oraz ucho c) pręt oraz ucho d) trzon oraz gardziel 147. Obsługującemu żuraw z koszem do podnoszenia ludzi montowanym bezpośrednio do wysiegnika (zgodnie z wytycznymi zawartymi w instrukcji eksploatacji) może być osoba która: a) posiada uprawnienia do obsługi podestów ruchomych b) posiada uprawnienia do obsługi żurawi przenośnych c) posiada uprawnienia do obsługi wózków z operatorem podnoszonym wraz z ładunkiemo d) posiada uprawnienia do obsługi dźwigów osobowych 148. W oparciu o przedstawiony rysunek określ jakie ruchy niebezpieczne zostaną odłączone w przypadku zadziałania ogranicznika obciążenia: a) E, F b) A, D c) C, B d) F, D 149. W oparciu o przedstawiony rysunek określ jakie ruchy niebezpieczne zostaną odłączone w przypadku zadziałania ogranicznika obciążenia: a) F, D, B b) A, B, C c) E, C, B d) wszystkie ruchy wysięgnika 150. Sterowanie ruchem podpór żurawia z ładunkiem zawieszonym na haku żurawia jest: a) dozwolone w ramach niewielkiej korekty pochylenia podwozia b) bezwzględnie zabronione c) zabronione ale tylko dla podpór "wychylnych" d) zawsze dozwolone ponieważ podpory posiadają zamki hydrauliczne 151. W jaki sposób realizowana jest kontrola obciążenia w żurawiach przenośnych: a) wyłącznie poprzez zawór przelewowy b) wyłącznie poprzez system elektroniczny c) wyłącznie poprzez blokowanie dźwigni sterujących d) zgodnie z instrukcją producenta żurawia 152. O ile wytwórca nie określi inaczej ogranicznik udźwigu powinien zadziałać gdy masa ładunku przekroczy: a) 100% udźwigu przy danych parametrach pracy b) 90% udźwigu przy danych parametrach pracy c) 80% udźwigu przy danych parametrach pracy d) żadna z powyższych odpowiedzi nie jest prawidłowa 153. Prędkość wiatru, po przekroczeniu której praca żurawiem przenośnym jest zabroniona: a) wynosi 14,8 m/s b) wynosi 12,5 m/s c) określa to instrukcja eksploatacji d) prędkość wiatru nie wpływa na pracę żurawia przeładunkowego 154. Maksymalne nachylenie podłoża na którym rozstawiany jest żuraw nie może przekraczać: a) wartości 3° b) wartości 3% c) wartości określonej w instrukcji obsługi d) brak jednoznacznych wytycznych 155. Przed rozstawieniem żurawia w nowym miejscu pracy obsługujący powinien: a) zapoznać się rodzajem podłoża na którym ma pracować żuraw b) sprawdzić nośność podłoża c) sprawdzić miejsce pracy pod kątem możliwości wystąpienia studzienek i kanałów ściekowych d) wszystkie odpowiedzi są prawidłowe 156. Bezpieczna odległość rozstawienia żurawia od krawędzi wykopu zależy od: a) głębokości wykopu b) siły wiatru c) odpowiedniej widoczności d) wszystkie odpowiedzi są prawidłowe 157. Przed podjęciem prac rozładunkowych obsługujący żurawia ma obowiązek: a) zapoznać się z wielkością podejmowanych mas ładunków b) sprawdzić, czy wykorzystywany osprzęt dodatkowy jest odpowiedni do przenoszonych ładunków c) sprawdzić uprawnienia kierowcy dostarczającego ładunki d) odpowiedź a i b jest prawidłowa 158. Podczas oceny stanu technicznego żurawia przed rozpoczęciem pracy obsługujący: a) dokonuje oceny stanu w zakresie zgodnym z zapisami instrukcji eksploatacji b) wykonuje próby z przeciążeniem c) w przypadku negatywnej oceny stanu technicznego odmawia rozpoczęcia pracy d) odpowiedź a i c jest prawidłowa 159. Podczas oceny stanu technicznego żurawia przed rozpoczęciem pracy obsługujący: a) sprawdza stan wyposażenia żurawia b) dokonuje oceny wizualnej stanu technicznego żurawia c) wykonuje próby ruchowe bez obciążenia i z obciążeniem d) wszystkie odpowiedzi są poprawne 160. Podczas oceny stanu technicznego układu hydraulicznego obsługujący: a) sprawdza poziom oleju hydraulicznego b) sprawdza stan lepkości oleju hydraulicznego c) sprawdza szczelność wewnętrzną i zewnętrzną układu d) odpowiedź a i c jest prawidłowa 161. Nieszczelność w układzie hydraulicznym żurawi może się objawiać: a) wyciekiem zewnętrznym b) niekontrolowanym opadaniem ładunku c) brak jednoznacznych kryteriów szczelności d) odpowiedz a i b jest prawidłowa 162. Stan poziomu oleju w układzie hydraulicznym obsługujący sprawdza: a) zawsze przed rozpoczęciem pracy b) 1 raz w miesiącu c) zgodnie z zaleceniami zawartymi w instrukcji eksploatacji d) zgodnie z zaleceniami zawartymi w protokole z badań okresowych 163. O ile wytwórca nie określi inaczej próbę szczelności wewnętrznej układu hydraulicznego wykonujemy: a) zawsze z obciążeniem 1000 kg b) na wysięgu nie mniejszym niż 3 m c) ciężar ładunku oraz jego odległość ustalamy w oparciu o diagram udźwigu d) na wysokości min 4 m 164. Teleskopowanie układu wysięgnikowego wraz z podwieszonym ładunkiem jest: a) dozwolone o ile taką sytuację przewidział producent urządzenia b) zabronione c) jest dozwolone ale z ładunkiem nieprzekraczajacym 50% udźwigu nominalnego d) odpowiedź a i c jest prawidłowa 165. Podczas pracy mechanizmem obrotu stateczność żurawia: a) jest niezmienna ponieważ stateczność żurawia zależy wyłącznie od masy podnoszonego ładunku b) jest niezmienna ponieważ współczynnik stateczności zależy wyłącznie od wysięgu żurawia c) jest zmienia ponieważ zmienia się odległość usytuowania układu wysięgnikowego i ładunku od krawędzi wywrotu d) jest niezmienna ponieważ stateczność żurawia zależy wyłącznie od masy pojazdu i żurawia 166. O ile producent nie określa inaczej skuteczność działania zaworów zwrotnych sterowanych (zamków hydraulicznych) żurawia należy sprawdzić: a) bez obciążenia b) z przeciążeniem 125% c) z obciążeniem nominalnym d) z przeciążeniem 110% 167. Do parametrów żurawia zaliczamy: a) udźwig nominalny b) wysokość podnoszenia c) prędkość ruchów roboczych d) wszystkie odpowiedzi są poprawne 168. Bezpośrednio po zakończeniu pracy, obsługujący żurawia ma obowiązek: a) sprawdzić stan oleju w silniku b) sprawdzić temperaturę rozdzielaczy c) zakonserwować żuraw d) wyjąć kluczyk i zabezpieczyć przed jego eksploatacją przez osoby postronne 169. Nadmiernie rozbujany ładunek może spowodować: a) uwolnienie sią ładunku z zawiesi b) utratę stateczności, ponieważ wzrasta moment wywracający wywołany siłą boczną rozkołysanego ładunku c) uszkodzenie wysięgnika d) wszystkie odpowiedzi są poprawne 170. Bezpieczny sposób sprawdzenia działania zaworu przelewowego w żurawiach przeładunkowych ze sterowaniem bezpośrednim przeprowadza się: a) z ładunkiem nominalnym na wysokości ok 1/2 wysokości podnoszenia b) z włączonym silnikiem bez ładunku c) wychylając i przytrzymując dźwignię danego mechanizmu aż do momentu uzyskania przez element wykonawczy położenia skrajnego d) odpowiedz b i c jest prawidłowa 171. Kryteria i warunki poprawnego wykonania prób układu hydraulicznego ustala: a) wytwórca urządzenia b) konserwator c) obsługujący d) brak jednoznacznych wytycznych 172. W oparciu o przedstawiony diagram określ po przekroczeniu jakiego wysięgu zadziała ogranicznik udźwigu żurawia o oznaczeniu 600 T z podwieszonym ładunkiem o masie 700 kg: a) 8 m b) 9 m c) 7 m d) 11 m 173. W oparciu o przedstawiony diagram określ na jakim wysięgu zadziała ogranicznik udźwigu żurawia z podwieszonym ładunkiem o masie 3320 kg: a) 8,5 m b) 9,5 m c) 10 m d) 7 m 174. Czy obsługujący może sprawdzić ogranicznik udźwigu w żurawiu przenośnym? a) nie, bo wiąże się to z przeciążaniem urządzenia b) tak, ale tylko w obecności inspektora BHP c) tak, zgodnie z instrukcją eksploatacji d) tak, ale tylko w obecności przełożonego 175. Praca żurawia bez podpór: a) jest zabroniona w każdym wypadku b) jest dopuszczalna o ile producent przewidział taką sytuację c) jest uzależniona od stopnia załadowania skrzyni ładunkowej d) odpowiedź b i c jest prawidłowa 176. Praca żurawiem podczas burzy z wyładowaniami atmosferycznymi jest: a) dopuszczalna, pod warunkiem opadów nie ograniczających widoczność b) niedopuszczalna c) dopuszczalna, pod warunkiem pisemnej zgody udzielonej od eksploatującego d) dopuszczalna na wyłączną odpowiedzialność obsługującego 177. Minimalna temperatura po przekroczeniu której żurawiem nie można pracować: a) jest uzależniona od masy przenoszonych ładunków b) wynosi -15 °C c) jest określona w parametrach technicznych pracy żurawia i jest wskazana w instrukcji eksploatacji d) zależy od rodzaju (lepkości) oleju hydraulicznego 178. Dopuszczalna maksymalana prędkość wiatru przy której można bezpiecznie pracować żurawiem: a) wynosi 14 m/s b) wynosi 12,5 m/s c) jest określona w instrukcji eksploatacji d) jest uzależniona jest od umiejętności obsługującego 179. Na wybór odpowiedniego programu pracy ogranicznika obciążenia w żurawiu może mieć wpływ: a) rodzaj zainstalowanego wysięgnika dodatkowego b) prędkość obrotowa silnika zasilającego c) stopień wysunięcia podpór żurawia d) odpowiedź a i c jest prawidłowa 180. Układanie podkładów pod podpory żurawia: a) zwiększa bezpieczeństwo pracy żurawia b) nie ma wpływu na bezpieczeństwo pracy żurawia c) zwiększa powierzchnię nacisku wywieranego przez podpory na podłoże d) odpowiedź a i c jest prawidłowa 181. Podkładów pod podpory nie stosuje się: a) na miękkim podłożu b) przy pracy żurawiem na kołach c) na twardym podłożu d) żadna z powyższych odpowiedzi nie jest prawidłowa 182. Z uwagi na brak wystarczającego miejsca na rozłożenie podpór obsługujący żurawia może: a) rozłożyć podpory tylko po stronie pobieranego ładunku b) podjąć pracę z zachowaniem szczególnej ostrożności c) ograniczyć masę podnoszonego ładunku d) wszystkie odpowiedzi są niepoprawne 183. Podpory żurawia należy rozstawiać: a) tylko wtedy, gdy żuraw będzie przenosił ładunki na maksymalnym wysięgu lub gdy podłoże pod żurawiem jest niestabilne b) tylko, gdy podłoże pod żurawiem jest niestabilne a żuraw będzie pracował z wysięgnikiem pomocniczym (dodatkowym) c) zgodnie z posiadanymi kompetencjami z możliwością regulacji stopnia ich wysunięcia wraz ze wzrostem lub spadkiem obciążenia wysięgnika d) zgodnie z wytycznymi zawartymi w instrukcji eksploatacji żurawia bez możliwości ich regulacji w trakcie trwających prac przeładunkowych 184. W oparciu o przedstawiony rysunek wskaż prawidłowy pomiar minimalnej odległości od wykopu: a) A b) B c) C d) D 185. Bezpieczna odległość rozstawienia żurawia od krawędzi wykopu zależy od: a) kąta nachylenia wysięgnika żurawia b) siły wiatru c) warunków atmosferycznych d) głębokości wykopu 186. Rozstawienie żurawia przy krawędzi niezabezpieczonego wykopu: a) jest możliwe za zgodą kierownika budowy b) jest możliwe przy słabym wietrze c) nie wpływa na bezpieczną pracę żurawia d) jest dopuszczalne pod warunkiem zachowania bezpiecznej odległości 187. Bezpieczna odległość żurawia od linii elektroenergetycznej: a) jest stała i wynosi 20 m b) zależy od napięcia linii c) maleje przy wysokich słupach d) zależy od wilgotności powietrza 188. Obowiązujące minimalne odległości od linii elektroenergetycznych wynikają z: a) instrukcji eksploatacji urządzenia b) przepisów DT c) przepisów wewnątrzzakładowych d) odrębnych przepisów krajowych 189. Jaka jest bezpieczna odległość żurawia lub ładunku od skrajnych przewodów linii elektroenergetycznych o napięciu znamionowym od 1kV do 15kV: a) 3 m b) 15 m c) 5 m d) 20 m 190. Jaka jest bezpieczna odległość żurawia lub ładunku od skrajnych przewodów linii elektroenergetycznych o napięciu znamionowym powyżej 110 kV: a) 10 m b) 15 m c) 5 m d) 30 m 191. W oparciu o przedstawiony rysunek wskaż prawidłowy pomiar minimalnej odległości od linii elektroenergetycznych: a) A b) B c) C d) D 192. Praca żurawia w pobliżu linii elektroenergetycznej w odległości mniejszej od wartości dopuszczalnej jest: a) zawsze zabroniona b) dozwolona pod warunkiem uzgodnienia jej szczegółowych warunków pracy z operatorem linii przesyłowej c) dozwolona pod warunkiem uzgodnienia jej szczegółowych warunków pracy z UDT d) dozwolona pod warunkiem operowaniem żurawia ze zmniejszonymi prędkościami pracy i w ograniczonym zasięgu 193. Dopuszczalną odległość pracy żurawia od napowietrznej linii elektroenergetycznej mierzy się: a) od linii w poziomie do osi obrotu żurawia b) od linii w poziomie do całkowicie wysuniętego wysięgnika wraz z zawieszonym ładunkiem c) od linii w poziomie do kabiny obsługującego żurawia d) od linii po skosie do całkowicie wysuniętego wysięgnika wraz z zawieszonym ładunkiem 194. Podczas podnoszenia i przemieszczania ładunków niedopuszczalne jest: a) przemieszczanie ładunków nad pojazdami b) przemieszczanie ładunku nad obiektami budowlanymi c) przemieszczanie ładunków nad maszynami d) przemieszczanie ładunków nad osobami 195. Podnoszenie ładunków o masie większej niż udźwig dopuszczalny jest: a) dozwolone gdy masa ładunku jest większa od udźwigu nominalnego o nie więcej niż 10% b) dozwolone gdy nie ma możliwości przeniesienia ładunku dzieląc go na mniejsze części c) gdy czas podnoszenia jest krótszy od czasu cyklu roboczego d) zabronione 196. O ile wytwórca nie określi inaczej próbę zamków hydraulicznych w żurawiach ze sterowaniem bezpośrednim wykonujemy: a) przy obciążonym siłowniku i wyłączonej pompie hydraulicznej po wysterowaniu rozdzielacza siłownik nie powinien się składać b) podczas pracy siłownika obserwujemy pracę zaworu zwrotnego sterowanego (zamka) c) sprawdzamy czy przy maksymalnym wysunięciu siłownika możemy sterować podnoszeniem i opuszczaniem ładunku d) obserwujemy, czy podczas opuszczania i podnoszenia ciśnienie w układzie hydraulicznym jest jednakowe 197. Podczas rozładunku materiałów z mobilnych środków transportowych obsługujący ma obowiązek upewnić się: a) że masa podnoszonych ładunków nie przekracza wartości dopuszczalnych wynikających z diagramu udźwigu b) pasy zabezpieczające ładunek na czas transportu są odczepione c) środek transportu z którego podejmowany jest ładunek jest zabezpieczony przed przemieszczeniem d) wszystkie odpowiedzi są poprawne 198. W których miejscach przebywanie hakowych jest niedozwolone lub niewłaściwe? a) pod uniesionym/wiszącym/podnoszonym ładunkiem b) w kabinie obsługującego podczas procesu transportu ładunków c) na wiszącym/ podnoszonym ładunku d) wszystkie odpowiedzi są prawidłowe 199. Podczas operacji podnoszenia obsługujący żurawia: a) nie może przeciągać ładunków b) nie może przeciążać żurawia c) musi stosować się do poleceń przełożonego, z pominięciem zapisów instrukcji eksploatacji d) odpowiedź a i b jest prawidłowa 200. Eksploatacja żurawia z hakiem pozbawionym fabrycznego zabezpieczenia gardzieli haka jest: a) zabroniona b) dopuszczalna na odpowiedzialność obsługującego c) dopuszczalna pod warunkiem pracy ze zmniejszonymi prędkościami d) dopuszczalna na odpowiedzialność konserwującego 201. Podczas oceny stanu technicznego żurawia przed rozpoczęciem pracy obsługujący: a) dokonuje oceny stanu w zakresie zgodnym z zapisami instrukcji eksploatacji b) wykonuje próby z przeciążeniem c) w przypadku negatywnej oceny stanu technicznego odmawia rozpoczęcia pracy d) odpowiedź a i c jest prawidłowa 202. Korzystając z przedstawionego diagramu wskaż odpowiednią wartość wysięgu i ładunku próbnego podczas przeprowadzenia próby szczelności wewnętrznej żurawia: a) 6600 kg i 9,1 m b) 6600 kg i 5,2 m c) 2090 kg i 9,1 m d) 2090 kg i 3,3 m 203. O ile wytwórca nie określi inaczej maksymalna dopuszczalna wartość opadania ładunku żurawi przenośnych budowlanych (o wysięgu poniżej 12m) podczas próby szczelności wynosi: a) 10 mm b) 0,5% długości wysięgu realizowanego hydraulicznie c) 2% maksymalnego wysięgu żurawia d) 4% udźwigu nominalnego wyrażone w mm 204. O ile wytwórca nie określi inaczej maksymalna dopuszczalna wartość opadania ładunku żurawi przeładunkowych do drewna podczas próby szczelności wynosi: a) 10 mm b) 2% danego wysięgu c) 2% maksymalnego wysięgu żurawia realizowanego hydraulicznie d) 4% udźwigu nominalnego wyrażone w mm 205. Podczas oceny stanu technicznego pulpitu sterującego żurawia obsługujący sprawdza: a) poprawność oznaczeń dźwigni i przycisków sterujących b) wielkość nastaw sprężyn dźwigni sterujących c) wartość natężenia oświetlenia zewnętrznego d) odpowiedź a i b jest prawidłowa 206. Podczas obsługi codziennej obsługujący żurawia ma obowiązek: a) sprawdzić momenty dokręcenie śrub mocujących żurawia do ramy podwozia b) przesmarować zawory przelewowe c) wykonać próby ruchowe z przeciążeniem d) wykonać czynności określone przez producenta w instrukcji obsługi 207. W przypadku braku możliwości obserwacji przez obsługującego całej drogi jaką pokonuje ładunek: a) obsługujący wykonuje czynności przemieszczania ładunku z prędkością równą połowie prędkości maksymalnej danego mechanizmu b) brak jest możliwości wykonania pracy c) obsługujący wykonuje czynności przemieszczania ładunku przy współpracy osoby przeszkolonej zwanej sygnalistą d) do eksploatacji żurawia wyznacza się osoby posiadające udokumentowaną praktykę wykonywania tego typu prac 208. Przy eksploatacji żurawia przeładunkowego do drewna: a) istnieje zakaz pracy hakiem b) obsługujący musi posiadać dodatkowe specjalne uprawnienia UDT c) obsługujący nie musi posiadać żadnych uprawnień, ponieważ najczęściej pracuje w lesie d) nie są wymagane przeglądy wykonywane przez uprawnionego konserwatora ze względu na prostą konstrukcję urządzenia 209. Nadmiernie rozbujany ładunek może spowodować: a) uszkodzenie haka żurawia b) utratę stateczności, ponieważ wzrasta moment wywracający wywołany siłą boczną rozkołysanego ładunku c) zerwanie liny nośnej d) wszystkie odpowiedzi są niepoprawne 210. W oparciu o przedstawiony diagram określ na jaką maksymalną wysokość można bezpiecznie podnieść ładunek o masie 3,4t: a) 7 m b) 24,5 m c) 18,6 m d) 22 m 211. W oparciu o przedstawiony diagram określ na jaką maksymalną odległość można bezpiecznie podać ładunek o masie 3,4t: a) 17 m b) 14 m c) 18,6 m d) 10,2 m 212. W oparciu o przedstawiony diagram wskaż poprawne parametry pracy żurawia: a) maksymalny udźwig 13000 kg b) maksymalny wysięg 23 m c) maksymalny udźwig na wysięgu 18,5 m wynosi 2,4 t d) odpowiedź b i c jest prawidłowa 213. W oparciu o przedstawiony diagram wskaż poprawne parametry pracy żurawia: a) maksymalny udźwig 17,5 t b) maksymalny wysięg 26 m c) maksymalny udźwig na wysięgu 14 m wynosi 2,4 t d) odpowiedź b i c jest prawidłowa 214. W oparciu o przedstawiony diagram wskaż maksymalną masę ładunku, jaką można podać na odległość 10 m: a) 4100 kg b) 6900 kg c) 3260 kg d) 5200 kg 215. W oparciu o przedstawiony diagram wskaż maksymalną masę ładunku, jaką można podać na odległość 20 m: a) 5,2 t b) 2,8 t c) 2,1 t d) 4,1 t 216. W oparciu o przedstawiony diagram określ na jaką maksymalną wysokość można bezpiecznie podać ładunek o masie 3,32 t: a) 17 m b) 24,5 m c) 15 m d) 22 m 217. W oparciu o przedstawiony diagram określ na jaką maksymalną odległość można bezpiecznie podać ładunek o masie 3,32 t: a) 7,0 m b) 10,2 m c) 8,6 m d) 12,0 m 218. W oparciu o przedstawiony diagram wskaż poprawne parametry pracy żurawia: a) maksymalny udźwig 6200 kg b) maksymalny wysięg 15 m c) maksymalny udźwig na wysięgu 10,5 m wynosi 2,61 t d) odpowiedź a i c jest prawidłowa 219. W oparciu o przedstawiony diagram wskaż poprawne parametry pracy żurawia: a) maksymalna wysokość podnoszenia 13 m b) maksymalny wysięg 15 m c) maksymalny udźwig na wysięgu 14 m wynosi 2,4 t d) maksymalny udźwig na wysięgu 6,8 m wynosi 4,3 t 220. W oparciu o przedstawiony diagram wskaż maksymalną masę ładunku, jaką można podać na odległość 4 m: a) 4100 kg b) 6200 kg c) 3260 kg d) 5200 kg 221. W oparciu o przedstawiony diagram wskaż maksymalną masę ładunku, jaką można podać na odległość 13 m: a) 2,1 t b) 2,8 t c) 2,4 t d) wszystkie odpowiedzi są niepoprawne 222. W oparciu o przedstawiony diagram określ na jaką maksymalną wysokość można bezpiecznie podać ładunek o masie 890 kg: a) 7 m b) 5,5 m c) 4,4 m d) 6 m 223. W oparciu o przedstawiony diagram określ na jaką maksymalną odległość można bezpiecznie podać ładunek o masie 620 kg: a) 5,5 m b) 4,5 m c) 3,5 m d) 6 m 224. W oparciu o przedstawiony diagram wskaż poprawne parametry pracy żurawia: a) maksymalny udźwig 620 kg b) maksymalny wysięg 6,1 m c) maksymalny udźwig na wysięgu 6,1 m wynosi 4,5 t d) odpowiedź b i c jest prawidłowa 225. W oparciu o przedstawiony diagram wskaż poprawne parametry pracy żurawia: a) maksymalna wysokość podnoszenia 7 m b) maksymalny wysięg 7 m c) maksymalny udźwig na wysięgu 6,1 m wynosi 450 kg d) odpowiedź a i c jest prawidłowa 226. W oparciu o przedstawiony diagram wskaż maksymalną masę ładunku, jaką można podać na odległość 4 m, przy wysokośći 5,8 m: a) 620 kg b) 450 kg c) 720 kg d) wszystkie odpowiedzi są niepoprawne 227. W oparciu o przedstawiony diagram wskaż maksymalną masę ładunku, jaką można podać na odległość 1,8 m, przy wysokośći 4 m: a) 0,45 t b) 0,62 t c) 0,89 t d) wszystkie odpowiedzi są niepoprawne 228. W oparciu o przedstawiony diagram określ na jaką maksymalną odległość można bezpiecznie podać ładunek o masie 3980 kg: a) 5,3 m b) 4,5 m c) 3,5 m d) 6 m 229. W oparciu o przedstawiony diagram wskaż poprawne parametry pracy żurawia: a) maksymalny udźwig 3,98 t b) maksymalny wysięg 11,1 m c) maksymalny udźwig na wysięgu 6 m to 4,5 t d) odpowiedź a i c jest prawidłowa 230. W oparciu o przedstawiony diagram wskaż poprawne parametry pracy żurawia: a) maksymalna wysokość podnoszenia 11,1 m b) maksymalny wysięg żurawia z ładunkiem 2,82 t to 7,2 m c) maksymalny udźwig na wysięgu 3,4 m wynosi 6390 kg d) odpowiedź b i c jest prawidłowa 231. W oparciu o przedstawiony diagram wskaż maksymalną masę ładunku, jaką można podać na odległość 7,2 m: a) 5,20 t b) 2,82 t c) 4,32 t d) wszystkie odpowiedzi są niepoprawne 232. W oparciu o przedstawiony diagram określ na jaką maksymalną odległość można bezpiecznie podać ładunek o masie 3790 kg: a) 7 m b) 5,5 m c) 4,4 m d) 6,25 m 233. W oparciu o przedstawiony diagram określ na jaką maksymalną wysokość można bezpiecznie podać ładunek o masie 3790 kg: a) 18,5 m b) 16 m c) 10 m d) 8 m 234. W oparciu o przedstawiony diagram wskaż poprawne parametry pracy żurawia: a) maksymalny udźwig wynosi 9200 kg b) maksymalny wysięg żurawia z wysięgnikiem o ręcznym wysuwie wynosi 18,65 m c) maksymalny udźwig na wysięgu 6 m to 2,81 t d) odpowiedź a i b jest prawidłowa 235. W oparciu o przedstawiony diagram wskaż poprawne parametry pracy żurawia: a) praca z wysuniętymi podporami b) maksymalny wysięg 16 m c) maksymalny udźwig 9,2 t d) odpowiedź a i c jest prawidłowa 236. W oparciu o przedstawiony diagram wskaż maksymalną masę ładunku, jaką można podać na odległość 12,25 m: a) 6,34 t b) 1,76 t c) 3,80 t d) wszystkie odpowiedzi są niepoprawne 237. W oparciu o przedstawiony diagram wskaż maksymalną masę ładunku, jaką można podać na odległość 17 m: a) 1350 kg b) 1050 kg c) 880 kg d) wszystkie odpowiedzi są niepoprawne 238. W oparciu o przedstawiony diagram wskaż poprawne parametry pracy żurawia: a) maksymalny udźwig żurawia 510 kg b) maksymalny udźwig żurawia 610 kg c) maksymalny udźwig żurawia 1000 kg d) maksymalny udźwig żurawia 440 kg 239. W oparciu o przedstawiony diagram określ na jaką maksymalną odległość można bezpiecznie podać ładunek o masie 1300 kg żurawiem oznaczonym symbolem 700T: a) 7 m b) 6 m c) 4,4 m d) 5 m 240. W oparciu o przedstawiony diagram określ na jaką maksymalną odległość można bezpiecznie podać ładunek o masie 1350 kg żurawiem oznaczonym symbolem 600T: a) 2 m b) 4 m c) 5 m d) 7 m 241. W oparciu o przedstawiony diagram wskaż poprawne parametry pracy żurawi: a) maksymalny udźwig żurawia 700 t b) maksymalny wysięg żurawia z wysięgnikiem o ręcznym wysuwie 14,35 m c) maksymalny udźwig żurawia 700T na wysięgu 6 m wynosi 1,03 t d) odpowiedź a i c jest prawidłowa 242. W oparciu o przedstawiony diagram wskaż poprawne parametry pracy żurawia: a) diagram dotyczy dwóch rodzajów żurawi b) maksymalny wysięg wynosi 10 m c) maksymalny udźwig żurawia żurawia 700T to 2,02 t d) wszystkie odpowiedzi są prawidłowe 243. W oparciu o przedstawiony diagram wskaż maksymalną masę ładunku, jaką można podać na odległość 10 m, żurawiem oznaczonym symbolem 600T: a) 630 kg b) 450 kg c) 550 kg d) wszystkie odpowiedzi są niepoprawne 244. W oparciu o przedstawiony diagram wskaż maksymalną masę ładunku, jaką można podać na odległość 8 m żurawiem oznaczonym symbolem 600T: a) 700 kg b) 800 kg c) 1030 kg d) wszystkie odpowiedzi są niepoprawne 245. W oparciu o przedstawiony diagram określ na jaką maksymalną odległość można bezpiecznie podać ładunek o masie 1290 kg: a) 7 m b) 5,5 m c) 10,3 m d) 6,25 m 246. W oparciu o przedstawiony diagram określ na jaką maksymalną wysokość można bezpiecznie podać ładunek o masie 1290 kg: a) 14,5 m b) 20,7 m c) 10 m d) 17,9 m 247. W oparciu o przedstawiony diagram wskaż poprawne parametry pracy żurawia: a) maksymalny udźwig 2000 kg b) maksymalny wysięg żurawia realizowany mechanicznie wynosi 14,35 m c) maksymalny udźwig na wysięgu 6 m wynosi 3,81 t d) odpowiedź a i c jest prawidłowa 248. W oparciu o przedstawiony diagram wskaż poprawne parametry pracy żurawia: a) praca na maksymalnym wysuwie podpór b) maksymalny wysięg 22 m c) maksymalny udźwig 8065 kg d) odpowiedź a i c jest prawidłowa 249. W oparciu o przedstawiony diagram wskaż maksymalną masę ładunku, jaką można podać na odległość 12,35 m: a) 0,995 t b) 2,23 t c) 1,240 t d) wszystkie odpowiedzi są niepoprawne 250. W oparciu o przedstawiony diagram wskaż maksymalną masę ładunku, jaką można podać na odległość 6,35 m: a) 1350 kg b) 1050 kg c) 2350 kg d) wszystkie odpowiedzi są niepoprawne 251. W oparciu o przedstawiony diagram określ na jaką maksymalną odległość można bezpiecznie podać ładunek o masie 6470 kg: a) 7 m b) 9,65 m c) 10,3 m d) 6,25 m 252. W oparciu o przedstawiony diagram określ na jaką maksymalną wysokość można bezpiecznie podać ładunek o masie 6470 kg: a) 14,5 m b) 20,0 m c) 16 m d) 17,5 m 253. W oparciu o przedstawiony diagram wskaż poprawne parametry pracy żurawia: a) maksymalny udźwig 21500 kg b) maksymalny wysięg żurawia z wysięgnikiem o mechanicznym wysuwie 23,55 m c) maksymalny udźwig na wysięgu 11,75 m to 5,22 t d) odpowiedź a i c jest prawidłowa 254. W oparciu o przedstawiony diagram wskaż poprawne parametry pracy żurawia: a) praca na minimalnym wysuwie podpór b) maksymalny wysięg wysięgnika z mechanicznym wysuwem 16,15 m c) maksymalny udźwig 25,1 t d) odpowiedź a i c jest prawidłowa 255. W oparciu o przedstawiony diagram wskaż maksymalną masę ładunku, jaką można podać na odległość 13,9 m: a) 5,520 t b) 3,655 t c) 4,350 t d) wszystkie odpowiedzi są niepoprawne 256. W oparciu o przedstawiony diagram wskaż maksymalną masę ładunku, jaką można podać na odległość 6,95 m: a) 8255 kg b) 10050 kg c) 10940 kg d) wszystkie odpowiedzi są niepoprawne 257. Poniższy rysunek przedstawia cechę: a) zawiesia łańcuchowego b) zawiesia linowego c) zawiesia pasowego d) trawersy specjalistycznej 258. Poniższy rysunek przedstawia cechę: a) zawiesia łańcuchowego b) zawiesia linowego c) zawiesia pasowego d) trawersy specjalistycznej 259. Poniższy rysunek przedstawia cechę: a) zawiesia łańcuchowego b) zawiesia linowego c) zawiesia pasowego d) trawersy specjalistycznej 260. Trawersa służy do: a) podnoszenia ładunków specjalnych np. arkuszy blachy b) podnoszenia długich ładunków, przy których użycie zwykłych zawiesi jest niemożliwe lub utrudnione c) podnoszenia ładunków przekraczających udźwig nominalny urządzenia d) wszystkie odpowiedzi są poprawne 261. Minimalny udźwig urządzenia dźwignicowego podnoszącego ładunek o masie 24 t przy użyciu przedstawionej trawersy wynosi: a) 20,0 t b) 25,2 t c) 30,0 t d) wszystkie odpowiedzi są niepoprawne 262. Skrót DOR oznacza: a) dopuszczalne obciążenie robocze b) dopuszczalne obciążenie robocze cięgna przy kącie wierzchołkowym alfa 120° c) dozwolona obsługa ręczna d) dokumentacja techniczno-ruchowa 263. Ładunek na haku dwurożnym należy zawiesić: a) tak, aby oba rogi były jednakowo obciążone b) tak, aby różnica w obciążeniu poszczególnych rogów haka nie była większa niż 30% c) wyłącznie przy użyciu specjalnego zawiesia do haka dwurożnego d) tylko przy użyciu zawiesi łańcuchowych 264. Na redukcję DOR zawiesia wielocięgnowego wpływa: a) ilość wykorzystanych cięgien b) dodatkowe obostrzenia eksploatacyjne zawarte w instrukcji zawiesia c) kąt rozwarcia cięgien d) wszystkie odpowiedzi są poprawne 265. W oparciu o przedstawiony rysunek wskaż wartość A dla zawiesia linowego: a) 6,0 t b) 5,0 t c) 7,0 t d) 3,5 t 266. W oparciu o przedstawiony rysunek wskaż wartość A dla zawiesia linowego: a) 2,0 t b) 5,0 t c) 7,0 t d) 10,0 t 267. Na rysunku pokazana jest: a) tabliczka znamionowa zawiesia łańcuchowego dwucięgnowego b) tabliczka znamionowa zawiesia łańcuchowego, o udźwigu maksymalnym 2 500 kg c) tabliczka znamionowa zawiesia łańcuchowego, o udźwigu maksymalnym 3 550 kg d) odpowiedź a i c jest prawidłowa 268. W oparciu o przedstawiony rysunek wskaż wartość A (kąt α) dla zawiesia dwucięgnowego: a) 100° b) 90° c) 70° d) 50° 269. W oparciu o przedstawiony rysunek wskaż wartość A (kąt α) dla zawiesia dwucięgnowego: a) 120° b) 90° c) 70° d) 50° 270. W oparciu o przedstawiony rysunek wskaż wartość A (DOR w oparciu o kąt α) dla zawiesia dwucięgnowego: a) 70% b) 90% c) 110% d) 50% 271. W oparciu o przedstawiony rysunek wskaż wartość A (DOR w oparciu o kąt α) dla zawiesia dwucięgnowego: a) 70% b) 90% c) 110% d) 50% 272. W oparciu o przedstawiony rysunek wskaż wartość A (DOR w oparciu o sposób zawieszenia) dla zawiesia pasowego: a) 1 b) 1,4 c) 0,8 d) 2 273. W oparciu o przedstawiony rysunek wskaż wartość A (DOR w oparciu o sposób zawieszenia) dla zawiesia pasowego: a) 1 b) 1,4 c) 0,8 d) 2 274. W oparciu o przedstawiony rysunek wskaż wartość A (DOR w oparciu o sposób zawieszenia) dla zawiesia pasowego: a) 1 b) 1,4 c) 0,8 d) 2 275. Wskaż, który ze sposobów podwieszenia ładunku jest prawidłowy: a) Rys A b) Rys B c) obydwa sposoby są poprawne d) obydwa sposoby są niepoprawne 276. Wskaż, który ze sposobów podwieszenia ładunku przy pomocy zawiesia linowego jest prawidłowy: a) Rys A b) Rys B c) obydwa sposoby są poprawne d) obydwa sposoby są niepoprawne 277. Poniższy rysunek przedstawia: a) osprzęt wymienny montowany do głowic urządzeń dźwignicowych b) element układu podnoszenia wózków jezdniowych podnośnikowych c) zawiesie specjalistyczne do transportu ładunków umieszczonych na paletach transportowych d) wszystkie odpowiedzi są niepoprawne 278. Poniższy rysunek przedstawia: a) zawiesie specjalistyczne do transportu rur stalowych i betonowych b) chwytak kleszczowy do przeładunku złomu c) zawiesie specjalistyczne do transportu ładunków umieszczonych na paletach transportowych d) element kleszczy szynowych 279. Przedstawione na rysunku zawiesie specjalistyczne służy do: a) podnoszenia arkuszy blach stalowych b) podnoszenia prętów stalowych c) podnoszenia elementów betonowych d) podnoszenia elementów z tworzywa sztucznego 280. Przedstawione na rysunku zawiesie specjalistyczne służy do: a) podnoszenia elementów betonowych b) podnoszenia elementów z tworzywa sztucznego c) podnoszenia arkuszy blach stalowych d) podnoszenia prętów stalowych 281. Za prawidłowy dobór zawiesia odpowiada: a) hakowy b) obsługujący (dotyczy sytuacji, gdy obsługujący jest odpowiedzialny za podhaczenie ładunku) c) zakładowe służby BHP d) odpowiedź a i b jest prawidłowa 282. Zawiesia podlegają przeglądom okresowym w terminach: a) co 30 dni b) co 2 miesiące c) nie podlegają przeglądom okesowym d) zgodnych z zapisami instrukcji eksploatacji zawiesi 283. Wybór rodzaju zastosowanego zawiesia zależy od: a) rodzaju przenoszonego materiału b) dostępności zawiesia i odległości pomiędzy miejscem pracy, a miejscem jego składowania c) warunków środowiskowych miejsca pracy zawiesia np. temperatury, promieniowania UV, wilgotności powietrza d) odpowiedź a i c jest prawidłowa 284. Przed rozpoczęciem pracy obsługujący ma obowiązek: a) w oparciu o masę podnoszonych ładunków dobrać zawiesie z odpowiednim DOR b) w oparciu o rodzaj podnoszonych ładunków dobrać zawiesie o właściwej budowie c) dokonać oceny stanu technicznego zawiesia pod kątem jego zużycia d) wszystkie odpowiedzi są prawidłowe 285. Zawiesie to: a) element umożliwiający transportowanie ładunku b) element umieszczony pomiędzy dźwignicą a ładunkiem c) element, którego masę należy uwzględnić przy podnoszeniu ładunku d) wszystkie odpowiedzi są poprawne 286. Zawiesia możemy podzielić: a) ze względu na materiał, z którego zostały wykonane b) ze względu na ilość cięgien nośnych c) ze względu na rodzaj cięgien d) wszystkie odpowiedzi są poprawne 287. DOR zawiesia pasowego można określić: a) testując wytrzymałość ciężarem próbnym b) mierząc grubość pasa c) sprawdzając informację na identyfikatorze/etykiecie d) wszystkie odpowiedzi są poprawne 288. Praca z zawiesiem bez tabliczki znamionowej: a) jest zabroniona b) jest dopuszczalna pod warunkiem zachowania szczególnej ostrożności c) jest dopuszczalna pod warunkiem określenia udźwigu zawiesi na podstawie nr haka d) jest dopuszczalna za zgodą konserwatora 289. Zawiesia łańcuchowe: a) mogą być zakończone wyłącznie hakiem b) mogą mieć inne zakończenia niż hak, np. szeklę c) mogą być stosowane w każdej temperaturze otoczenia d) nie wymagają konserwacji 290. Maksymalny dopuszczalny kąt wierzchołkowy α stosowany w zawiesiu może wynieść: a) 120° b) 100° c) nie ma ograniczeń, ponieważ wystarczy zmniejszać dopuszczalne obciążenie robocze zawiesia d) 90° 291. Maksymalny kąt β w zawiesiu może wynieść: a) 120° b) 60° c) uwzględnia się wyłącznie kąt α d) nie ma ograniczeń, ponieważ wystarczy zmniejszać dopuszczalne obciążenie robocze zawiesia 292. Wskaż, który ze sposobów podwieszenia ładunku przy pomocy zawiesia linowego jest nieprawidłowy: a) Rys A b) Rys B c) Rys C d) Rys D 293. Wskaż, który ze sposobów zamocowania haka jest prawidłowy: a) Rys A b) Rys B c) Rys C d) Rys D 294. Wskaż, który ze sposobów zamocowania haka jest nieprawidłowy: a) Rys A, B, C b) Rys A, B, D c) Rys A, C, D d) Rys A, B, C, D 295. W oparciu o przedstawiony rysunek wskaż wartość A dla zawiesia dwucięgnowego: a) 120% b) 90% c) 70% d) 10% 296. W oparciu o przedstawiony rysunek wskaż wartość A dla zawiesia dwucięgnowego: a) 120% b) 90% c) 70% d) 50% 297. O ile wytwórca nie określi inaczej dopuszczalne kryteria zużycia haków przy zawiesiach to: a) rozwarcie o 5% i wytarcie gardzieli o 10% b) rozwarcie o 20% i wytarcie gardzieli o 10% c) rozwarcie i wytarcie gardzieli o 1% d) wymiary haka nie zmieniają się w trakcie eksploatacji 298. O ile wytwórca nie określi inaczej dopuszczalna ilość pęknięć drutów w zawiesiu linowym wynosi: a) 1% drutów w splotce na długości 6 średnic i 10% na długości 30 średnic b) 5 drutów w splotce na długości 6 średnic i 10 na długości 30 średnic c) 10% splotek d) wszystkie odpowiedzi są niepoprawne 299. Które z poniższych uszkodzeń dyskwalifikują zawiesie linowe z dalszej eksploatacji? a) pęknięcie splotki w linie b) miejscowe zmniejszenie średnicy na skutek przerwania rdzenia liny c) deformacja w kształcie koszyka d) wszystkie odpowiedzi są poprawne 300. Wraz ze wzrostem kąta wierzchołkowego α: a) dopuszczalne obciążenie robocze rośnie b) dopuszczalne obciążenie robocze maleje c) dopuszczalne obciążenie robocze pozostaje bez zmian, ponieważ kąt wpływa tylko na udźwig dźwignicy d) kąt wierzchołkowy ma tylko znaczenie przy wartości alfa=120 stopni 301. Kąty α i β w odniesieniu do zawiesi: a) są sobie zawsze równe b) kąt α stanowi połowę kąta β c) kąt β stanowi połowę kąta α d) wszystkie odpowedzi są niepoprawne 302. Podnosząc elementy posiadające ostre krawędzie za pomocą zawiesia pasowego należy: a) stosować specjalne przekładki zabezpieczające zawiesie przez ostrymi krawędziami b) nie wolno stosować zawiesi pasowych c) należy podwójnie opasać ładunek, aby nie doszło do przetarcia pasa d) stosować tylko zawiesia pasowe poliestrowe 303. Wartość DOR zawiesia wielocięgnowego jest: a) wartością zależną od udźwigu dźwignicy b) wartością zmienną i zależy od kąta pomiędzy cięgnami zawiesia c) zależna od masy transportowanego ładunku d) wartością stałą 304. Używanie zawiesi w temperaturze powyżej 100°C jest: a) dopuszczalne ale w krótkim czasie b) jest dopuszczalne o ile zezwala na to instrukcja zawiesia c) zabronione d) dopuszczalne tylko przy stosowaniu zawiesi łańcuchowych 305. Poniższy rysunek przedstawia: a) cechę zawiesia łańcuchowego czterocięgnowego b) cechę zawiesia linowego o długości cięgien 10 m c) cechę zawiesia specjalnego d) wszystkie odpowiedzi są poprawne 306. Maksymalny DOR przedstawionego zawiesia wynosi: a) 8,4 t b) 6,0 t c) 10,0 t d) 8,0 t 307. Maksymalny DOR przedstawionego zawiesia przy kącie wierzchołkowym β 60° wynosi: a) 10,0 t b) 8,4 t c) 6,0 t d) 4,0 t 308. Maksymalny DOR przedstawionego zawiesia przy kącie wierzchołkowym β 45° wynosi: a) 8,4 t b) 8,0 t c) 6,0 t d) 4,0 t 309. W oparciu o przedstawiony rysunek wskaż poprawny sposób zamocowania haka: a) A b) B c) C d) D 310. Maksymalna masa podnoszonego ładunku przy kącie β wynoszącym 55° nie może przekraczać: a) 12000 kg b) 9000 kg c) 6000 kg d) wszystkie odpowiedzi są niepoprawne 311. Maksymalna masa podnoszonego ładunku przy kącie β wynoszącym 40° nie może przekraczać: a) 12000 kg b) 9000 kg c) 6000 kg d) wszystkie odpowiedzi są niepoprawne 312. Maksymalna masa podnoszonego ładunku przy kącie β wynoszącym 50° nie może przekraczać: a) 12000 kg b) 9000 kg c) 6000 kg d) wszystkie odpowiedzi są niepoprawne 313. Maksymalna masa podnoszonego ładunku przy kącie β wynoszącym 65° nie może przekraczać: a) 12000 kg b) 9000 kg c) 6000 kg d) wszystkie odpowiedzi są niepoprawne 314. W oparciu o przedstawiony rysunek określ maksymalną masę ładunku jaką można podnieść przy pomocy zawiesia 4 cięgnowego: a) 6 t b) 8,4 t c) 12 t d) wszystkie odpowiedzi są niepoprawne 315. W oparciu o przedstawiony rysunek określ maksymalną masę ładunku jaką można podnieść przy pomocy zawiesia 4 cięgnowego: a) 6 t b) 8,4 t c) 12 t d) odpowiedź a i b jest prawidłowa 316. W oparciu o przedstawiony rysunek określ maksymalną masę ładunku jaką można podnieść przy pomocy zawiesia 4 cięgnowego: a) 7 t b) 8,4 t c) 12 t d) wszystkie odpowiedzi są niepoprawne 317. Które z przedstawionych zawiesi specjalnych można wykorzystać do podnoszenia blach w pozycji pionowej: a) RYS. 1 b) RYS. 2 c) RYS. 3 d) RYS. 4 318. Które z przedstawionego osprzętu do podnoszenia można wykorzystać do podnoszenia blach w pozycji poziomej: a) RYS. 1 b) RYS. 2 c) RYS. 3 d) RYS. 4 319. Które z przedstawionego osprzętu do podnoszenia można wykorzystać do podnoszenia dwuteowych dźwigarów stalowych: a) RYS. 1 b) RYS. 2 c) RYS. 3 d) RYS. 4 320. Które z przedstawionego osprzętu do podnoszenia można wykorzystać do podnoszenia prętów stalowych o znacznej długości: a) RYS. 1 b) RYS. 2 c) RYS. 3 d) RYS. 4 321. Które z przedstawionego osprzętu do podnoszenia można wykorzystać do podnoszenia ładunków składowanych na paletach transportowych: a) RYS. 1 b) RYS. 2 c) RYS. 3 d) RYS. 4 322. Które z przedstawionego osprzętu do podnoszenia można wykorzystać do podnoszenia arkusza blachy w pozycji poziomej: a) RYS. 1 i RYS. 2 b) RYS. 2 i RYS. 3 c) RYS. 3 i RYS 4 d) RYS. 4 i RYS 1 323. Na zdjęciu poniżej symbol α oznacza: a) kąt rozwarcia cięgien zawiesia b) maksymalny kąt wierzchołkowy c) wartość określającą udźwig zawiesia d) DOR zawiesia 324. Na zdjęciu poniżej symbol β oznacza: a) długość zawiesia b) kąt odchylenia cięgien od pionu c) zawiesie łańcuchowe dwucięgnowe d) wszystkie odpowiedzi są nieprawidłowe 325. Które z poniższych warunków musi bezwzględnie spełniać zawiesie do przemieszczania ładunku: a) udźwig zawiesia nie może być mniejszy od masy podnoszonego ładunku b) długość zawiesia musi zapewnić aby kąt rozwarcia zawiesia nie był większy niż 120° c) zawiesie musi posiadać czytelną cechę znamionową d) wszystkie odpowiedzi są prawidłowe